点上方蓝字可关注 微信号:装修33天
▲ 建筑面积125平,入户设计玄关,增加进门仪式感,不同材质地面也方便打扫卫生
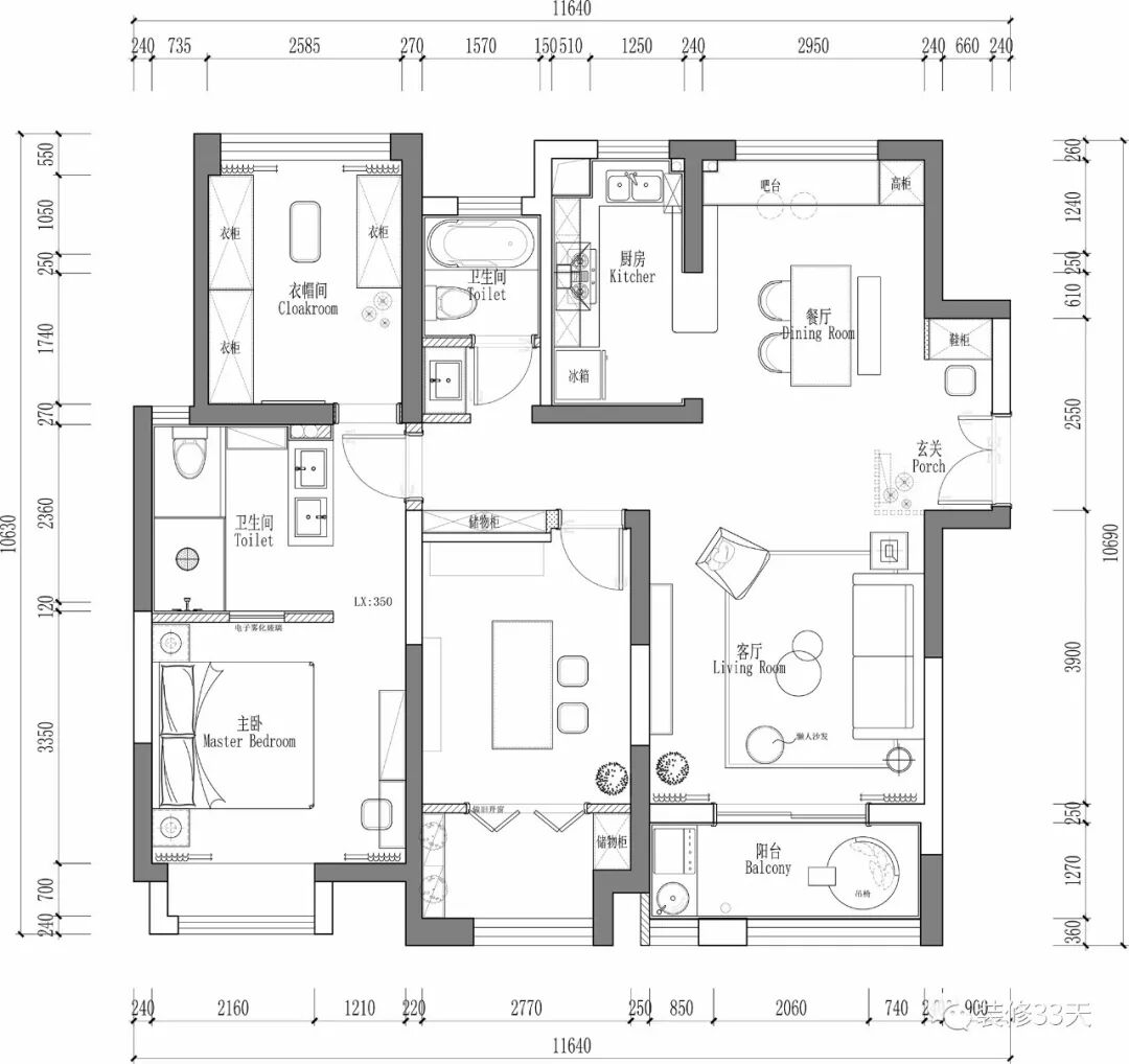
▲ 平面布置图
▲ 玄关右侧设计一组鞋柜,中部留空辅以原木框修饰,便于随手置物,也能收纳出行需要的小物件,底部留空延伸地面,放置常换鞋
▲ 客厅,地面通铺人字拼木地板,极简顶面取消主灯,拼色电视背景顶面安装投影
▲ 莫兰迪色的家具,点缀一盏兼具边几功能的金色落地灯,左侧玄关的木质栏栅规整出客厅区域
▲ 灰蓝+白的拼色背景墙通过木质层板与装饰画以及摆件来修饰,水泥盆量天尺增加北欧清新元素
▲ 客厅望向餐厨视角,南北通透,采光与动线俱佳
▲ 释放了本就不大厨房,同时也为女主烘焙、看书提供开阔的空间,增加家人互动交流的空间
▲ 厨房,灰色花砖搭配灰色橱柜门,金色拉手与墙面的金色挂杆呼应
▲ 客卫干湿分区,提高使用效率
▲ 书房延续人字铺地板与简洁的顶面,留白墙面用洞洞板装饰,又具收纳功能
▲ 复古的折叠门给书房增添了几分老上海感觉
▲ 考虑到业主喜欢养花养多肉,在书房的小阳台满足做花房的需求
▲ 主卧,打开卫生间,让套房的空间形成交流,凸显这个小空间的层次,用来增加空间感
▲ 原木家具搭配粉白拼色背景,造型主灯与床头的线性吊灯负责营造卧室氛围,大飘窗提供卧室充足采光与开阔视野
▲ 主卫采用玻璃取代部分隔墙,保持卧室的通透性
▲ 主卫延续拼色风格,在墙面铺贴肌理感黑白砖,双台盆+双挂镜设计提高使用效率
▲ 玻璃隔墙采用电子雾化玻璃
▲ 主卧中的衣帽间,两排置顶衣柜满足日常收纳
设计 | 晓安空间设计(苏州)
微信:xn1533856927
后台回复「晓安」可以看更多作品
媒体转载请注明装修33天并保留设计师联系方式
欢迎业主、设计师、装修公司免费投稿照片
装修33天商务合作微信:king194316
松爷店铺掌柜微信:yejia1702
晓安空间设计其他作品推荐,点击下图查看82平黑白灰现代二居 小户型满足中西厨功能
实用装修指南
装修33天 🏡 实用装修指南
喜欢我们的文章就随手转发到您朋友圈吧
Go to "Discover" > "Top Stories" > "Wow"