点上方蓝字可关注 微信号:装修33天
▲ 建筑面积96平,总造价28万,客户需求:实用、轻松、格调,小家大爱,满足充足的收纳,随意、随心的温馨居家
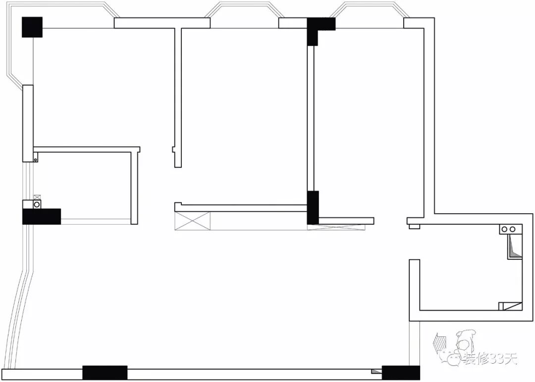
▲ 平面结构图
▲ 平面布置图
▲ 入户即是客厅,简单的湖蓝色换鞋凳,立面储物柜门上设计衣帽钩,柜门打开内置穿衣镜
▲ 屋主希望未来的小孩在客厅是快乐轻松的状态,所以配置轻便的茶几与可移动组柜,尽可能让客厅有更多活动空间
▲ 灰色现代简约的沙发配上蓝灰色靠枕,与地上的编织毯,呈现出舒适的宜家风格
▲ 沙发背景的挂画淘自某宝,与墙面色调相融合,提升时尚格调
▲ 餐椅与餐桌的色调给空间带来规整感,原木色的餐桌、收纳柜和绿植让整体寂静的空间有了生机
▲ 简约的家居让整体看着清新
▲ 厨房以木色柜门为视觉中心,搭配白色墙砖与错落台面,防溅墙用花砖点缀
▲ 书房兼具客房与休闲功能
▲ 儿童房,采用亮系拼色墙面,让室内充满活力,印第安儿童帐篷搭配地毯设计,为孩子提供玩耍的空间
▲ 一组实木+塑料储物盒,分类收纳孩子的玩具、文具
▲ 次卧的设计更注重储物机能,半开放式储物柜结合储物床,都传达出空间储物理念
▲ 主卧,白色背景下配合深色家具,皮质床头两边配置不同风格的床头柜,线性吊灯与皮质拉手,细节体现出别致
▲ 原木床头柜,以开放式层板收纳书籍,北欧极简圆球吊灯散发的光晕,映衬出小盆栽绿色生机
▲ 卫生间墙地风格与厨房保持一致,玻璃淋浴房分离干湿区域
设计 | 301设计事务所(广州海珠区)
固话:020-8944 5213
手机:13924329609
微信:ds301sheji
后台回复「301设计」可以看更多作品
媒体转载请注明装修33天并保留设计师联系方式
欢迎业主、设计师、装修公司免费投稿照片
装修33天商务合作微信:king194316
松爷店铺掌柜微信:yejia1702
301设计事务所其他作品推荐,点击下图查看130平现代简约三室 过道挤出小书房
实用装修指南
装修33天 🏡 实用装修指南
喜欢我们的文章就随手转发到您朋友圈吧
Go to "Discover" > "Top Stories" > "Wow"