点上方蓝字可关注 微信号:装修33天
▲ 建筑面积170平,总造价80万,玄关设计L型柜体留出窗户位置,满足入户收纳与采光,公领域地面通铺复古自然的水泥砖
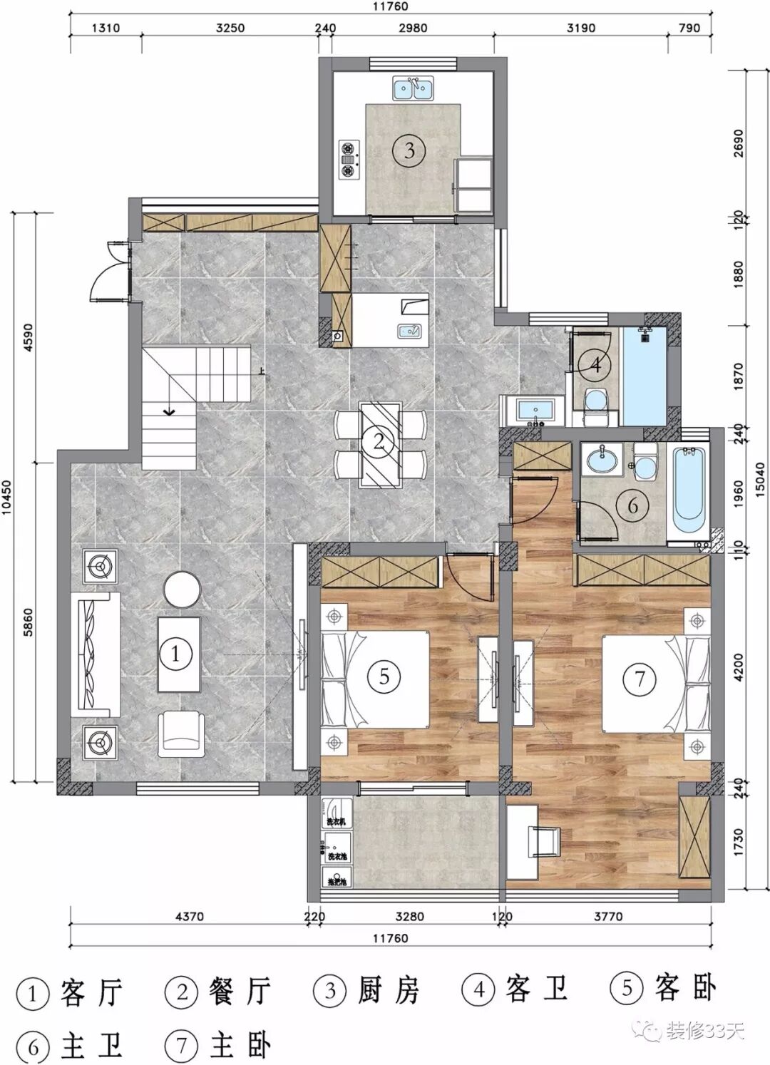
▲ 一层平面布置图
▲ 二层平面布置图
▲ 经过玄关即为餐厅,美式餐桌椅搭配简约实用的吊扇灯,四周米黄色门、门套与踢脚线穿插在灰色墙面中
▲ 重新规划厨房空间,增加出西厨料理台与餐厅相连,兼具餐边柜与吧台功能,同时解放中厨空间
▲ U型厨房,整体定制白色橱柜搭配黑色把手,洗区上方取消吊柜,整排玻璃窗增加采光,使烹饪空间更加舒适
▲ 客厅,美式经典的铆钉皮沙发搭配原木茶几,带来厚重与怀旧感
▲ 灰色背景墙勾勒同色系石膏线,修饰金属造型墙饰与装饰画,彩色抱枕提亮空间
▲ 金色边框装饰画与精致台灯增添些许轻奢感
▲ 整墙电视柜满足公领域储物需求,顶部与底部开放格设计,可作精美摆件装饰与书籍的收纳
▲ 客厅望向玄关视角,南北通透,宽敞明亮
▲ 客卫,干湿分区设计,湿区自砌半高隔墙搭配挡水条与浴帘,划分出淋浴空间
▲ 楼梯采用木色、黑色与白色的混搭
▲ 二楼地面铺贴木地板,墙面基调与一楼呼应,利用过道空间打造孩子的休闲玩耍区
▲ 二楼通三楼的楼梯下方巧妙的设计开放式阅读闲暇一角,将空间利用最大化
▲ 书房,定制L型柜体+开放格体设计,使储物机能多样化,加长书桌可供双人同时使用
▲ 儿童房,选用白色实木高背床,底部是储物抽屉,搭配衣柜满足收纳需求,黄色背景墙让空间充满活力
▲ 客卧,深色家具搭配蓝色背景墙,清新中带着稳重,拼色窗帘与背景墙呼应
▲ 床头点缀美式装饰画,边上设计小书桌替代床头柜
▲ 主卧纳入阳台扩大使用面积与采光,灰色石膏线打造层次感床背景,极简顶面平衡美式家具的厚重感
▲ 主卫,石纹防滑地砖搭配小白砖+黑色美缝,悬空式浴室柜设计打扫无死角,设置浴缸实现泡澡的需求
设计 | 一野设计(苏州)
微信:xinsiyu_8777
电话:400-002-2038
后台回复「一野」可以看更多作品
媒体转载请注明装修33天并保留设计师联系方式
欢迎业主、设计师、装修公司免费投稿照片
装修33天商务合作微信:king194316
松爷店铺掌柜微信:yejia1702
一野设计其他作品推荐,点击下图查看108平清新北欧三室 相当和谐的蓝与绿
实用装修指南
装修33天 🏡 实用装修指南
喜欢我们的文章就随手转发到您朋友圈吧
Go to "Discover" > "Top Stories" > "Wow"