点上方蓝字可关注 微信号:装修33天
▲ 使用面积120平,本案例设计偏重于原木色系,添加一些其他天然的材质修饰,打造出静谧、朴素的自然风格
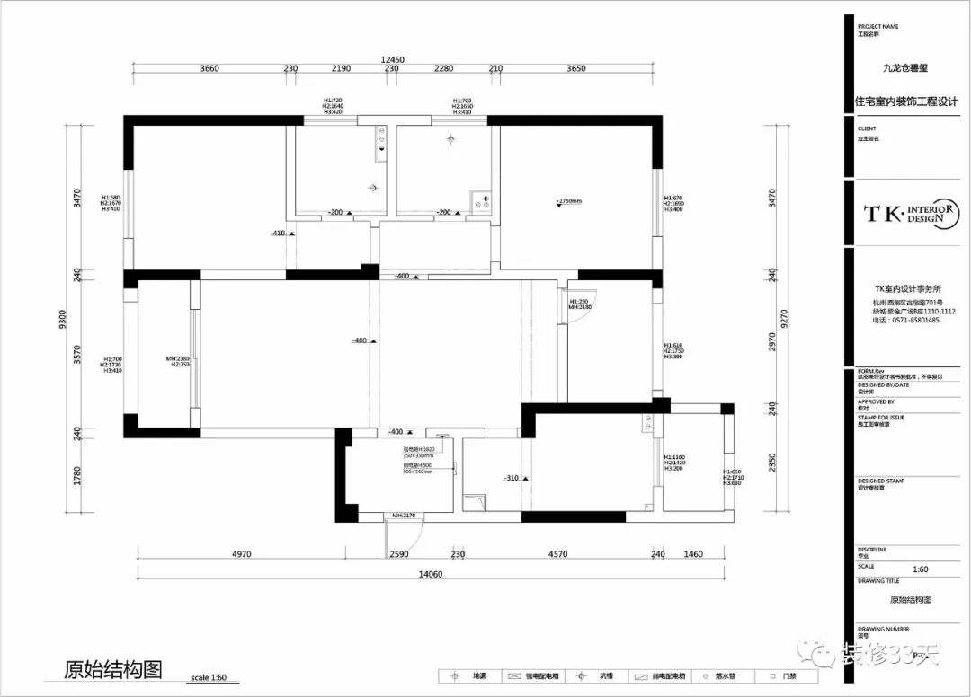
▲ 平面结构图
▲ 平面布置图
▲ 将门厅与厨房向右移动,玄关左侧设计大鞋柜,右侧挤出个实用的杂物间
▲ 客厅,整体采用白色+木色的搭配,简单干净的同时统一空间色调
▲ 留白墙面没有过多修饰,只通过家具的自然肌理与舒适触感,透出平静的居家氛围
▲ 吊顶的设计,延续原木色搭配白色的基调,很好的平衡色彩比例
▲ 电视背景墙同样保持留白的设计,整个空间节制却精致
▲ 阳台造景
▲ 客厅望向餐厅与休闲区域
▲ 客餐厅一体的设计,原木色餐桌搭配长凳餐椅,木色顶面点缀质朴吊灯,左侧用深蓝色门帘做隔断
▲ 成品餐边柜与客厅的电视柜成套,家具风格保持一致
▲ 原木与绿植搭配,整体空间彰显出平和、宁静的生活态度
▲ 舍弃一个小房间,打造多功能休闲区,将榻榻米搬进客餐厅,放大视觉空间,增加公领域采光
▲ U型厨房,水泥色地砖搭配工字铺白色墙砖,柜体同样采用白色基调,搭配黑色橱柜把手,呈现简洁视觉
▲ 一侧做满上柜,另一侧则采用木色层板取代厚重的柜体
▲ 次卫,深色地砖搭配白色小方砖墙面,辅以木色元素的台盆柜,淋浴房地面放置防腐木,防滑又方便更换
▲ 儿童房整体依然延续原木色+白色,通过粉色的布艺软装,点缀出少女心的就寝空间
▲ 主卧,通过木质家具、灰色窗帘与床品点缀,窗外的绿色是很好的装饰,根据空间结构,在床尾打造整面衣柜
▲ 自然的材质,简单的色调,营造静心的舒眠环境
▲ 日式清新风的主卫,采用白色小方砖搭配木色元素,整体基调与次卫保持一致
▲ 淋浴区与泡澡浴缸分离,满足更舒适的洗浴体验
设计 | TK原创设计(杭州)
微信:tk_design
电话:15957143882
后台回复「TK」可以看更多作品
媒体转载请注明装修33天并保留设计师联系方式
欢迎业主、设计师、装修公司免费投稿照片
装修33天商务合作微信:king194316
松爷店铺掌柜微信:yejia1702
TK原创设计其他作品推荐,点击下图查看89平孟菲斯风两室 复古又精致
实用装修指南
装修33天 🏡 实用装修指南
喜欢我们的文章就随手转发到您朋友圈吧
Go to "Discover" > "Top Stories" > "Wow"