点上方蓝字可关注 微信号:装修33天
▲ 建筑面积148平,门厅区域采用大面积木色与白色相搭,倾斜式吊顶设计显得特别
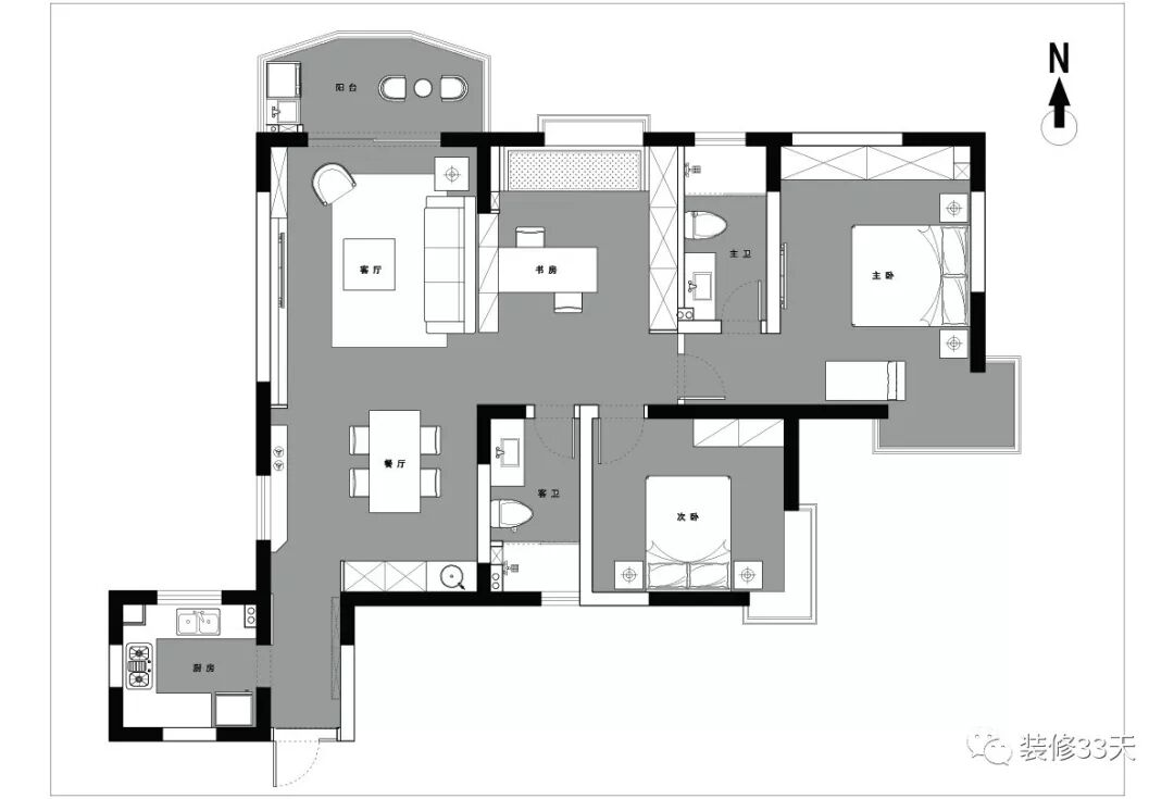
▲ 平面结构图
▲ 平面布置图
▲ 入户设置15公分厚度的鞋柜,造型上以白木交错,底部嵌入灯带,大理石拉伸墙体视觉高度
▲ 客厅以白色与原木色为基础色调,阳台打通,让整体风格显得干净明快
▲ 皮质沙发,木质茶几,多样化材质的运用让层次更加丰富
▲ 设计30公分厚度的整面储物墙取代电视背景的功能,洁白细腻的色泽与客厅环境完美融为一体
▲ 从阳台望向餐厅,整体空间色调统一
▲ 客餐厅之间毫无阻隔,背景打造60公分厚的储物柜嵌入厨电与水槽,兼作西厨功能使用
▲ 咖色皮质餐椅搭配黑色餐桌,顶面装一盏极简吊灯,留白墙面用抽象画点缀
▲ 百叶帘与原木色条板的装饰,结合三个同款式的简约吊灯悬挂,营造空间氛围
▲ 厨房,灰色石纹砖与深色原木橱柜相搭,冷暗色系呈现出更加整洁干净的视觉效果
▲ 沙发背景与书房之间采用半墙隔断设计,通透的功能区布局令主体空间显得更加通透开阔
▲ 书房延续客餐厅的原木与白色搭配,书桌结合储物隔断,窄榻设计为书房提供小憩的场所
▲ 书房通往客餐厅走廊
▲ 卧室以原木和白色为基调,低调沉稳的深灰色硬包做背景,明亮的落地窗让阳光洒满整个卧室空间
▲ 造型简约的金属台灯,纤细的线条透露出精巧的美感,金属的光泽为卧室空间增添了几分灵动
▲ 卫生间通铺灰白色石纹瓷砖,原木色系的台盆柜为卫生间带来清新的自然气息
设计 | 会筑空间设计(南京)
微信:13914784029
后台回复「会筑」可以看更多作品
媒体转载请注明装修33天并保留设计师联系方式
欢迎业主、设计师、装修公司免费投稿照片
装修33天商务合作微信:king194316
松爷店铺掌柜微信:yejia1702
会筑空间设计其他作品推荐,点击下图查看配色好看,文艺小青年清新二居
实用装修指南
装修33天 🏡 实用装修指南
喜欢我们的文章就随手转发到您朋友圈吧
前往“发现”-“看一看”浏览“朋友在看”