点上方蓝字可关注 微信号:装修33天
▲ 实用面积150平,潮流瞬息万变,难以追赶,很多时尚元素都在轮回,但无论怎么变化,复古风却是永恒不变的时尚
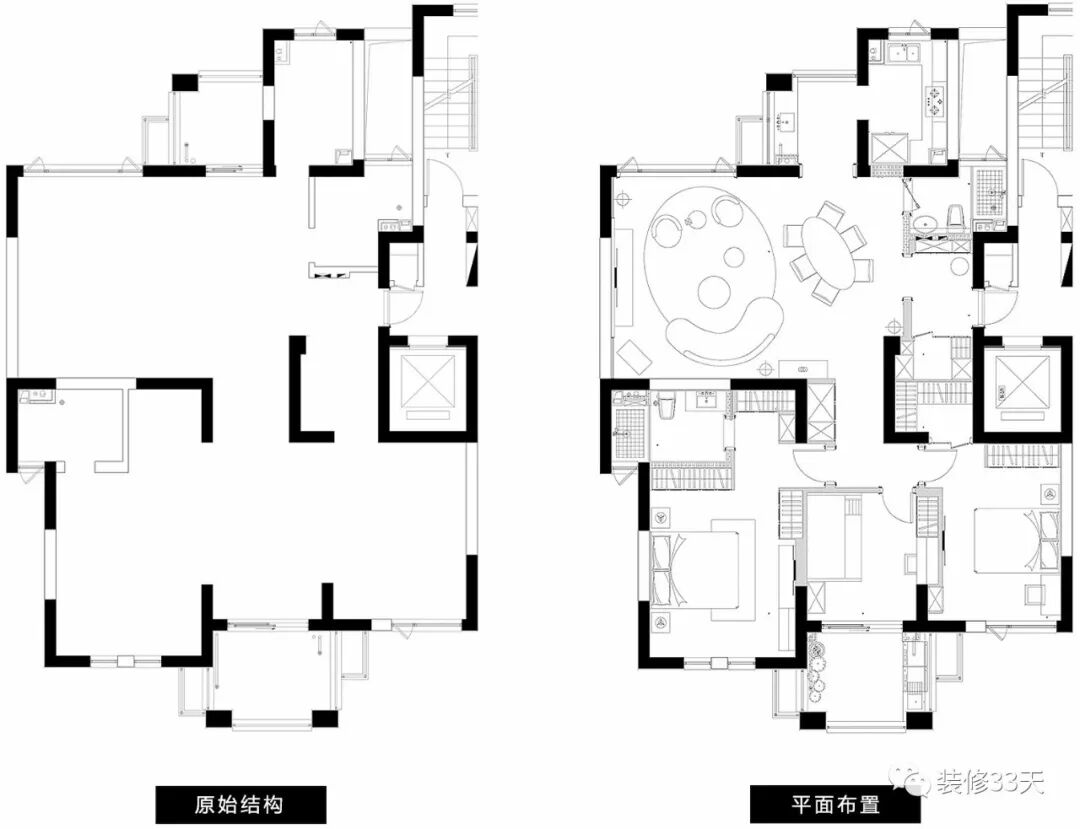
▲ 平面布置图
▲ 客厅,采用红蓝互补色,红色浪漫激情,蓝色清新冷静,冷暖的强烈对比,却呈现出意想不到的视觉享受
▲ 客厅布置不同于传统方式,以大弧度沙发、高低错落的茶几、浅色圆形单椅的组合方式进行搭配,圆形地毯起到很好的聚拢效果,将视觉提升到最佳状态
▲ 一个空间的完整性,不仅需要色彩的协调性,更讲究线条的流畅性
▲ 将自然与室内空间完美结合,光线透过百叶落地窗,折射出空间恬静,同时又像精致的滤镜,使空间里的一切如艺术品般精致
▲ 客餐厅相连,在色彩上延续主题,棉麻餐椅搭配白色的大理石餐桌,充满精致感
▲ 餐厅精致的细节
▲ 复古黄铜吊灯的运用,使氛围更加摩登,呈现出复古美与现代美两种迷人风采
▲ 将生活阳台连通厨房,增加吧台的设计,并改变厨房开门,让这两个空间串连,形成中西厨的模式
▲ 厨房,大理石纹瓷砖搭配深木色橱柜门,满满的橱柜满足厨房的储物需求,实现干净利落的料理环境
▲ 餐厨进入私领域的动线,黑白间隔的拼接地砖,搭配赋有设计感的玄关柜,让人眼前一亮
▲ 利用过道做一组大容量的收纳柜,嵌入式的设计增加储物空间的同时又不影响动线的流畅性
▲ 儿童房,在靠窗的一面背景铺贴卡通墙纸,蓝白搭配,局部黄色点缀,太空主题的高低床给孩子无限想象空间,床铺对面即是休闲学习区
▲ 次卧,不同层次的蓝色,再加上绿色的点缀,使空间不单调沉闷,充满文艺优雅,棉麻床品的柔软中,对比出一种宁静致远的闲适
▲ 床两侧采用床头柜结合梳妆台的形式,满足不同的生活需求,千鸟格的单椅点缀出时尚气息
▲ 主卧,将艺术元素融入软硬装中,给空间带来极具张力,于形与意,体现出主卧精致、雅奢、从容的生活方式
▲ 将红绿两种冲突感极强的互补色搭配出协调、高级的感觉,调节它们的饱和度,可以有效的中和并弱化对比感,反而塑造出一种轻松甜美的感觉
设计 | 辰佑设计(杭州)
微信:vi0619
QQ:6077718
后台回复「辰佑」可以看更多作品
媒体转载请注明装修33天并保留设计师联系方式
欢迎业主、设计师、装修公司免费投稿照片
装修33天商务合作微信:king194316
松爷店铺掌柜微信:yejia1702
辰佑设计其他作品推荐,点击下图查看精装修软装前后 89平清新艺术混搭三口之家
实用装修指南
装修33天 🏡 实用装修指南
喜欢我们的文章就随手转发到您朋友圈吧
Go to "Discover" > "Top Stories" > "Wow"