点上方蓝字可关注 微信号:装修33天
▲ 实际面积80平,造价23万(不含家电),本案通过糖果色的点缀,让家变得年轻有活力
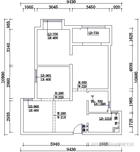
▲ 平面结构图
▲ 平面布置图
▲ 原木色地板,清浅墙面装饰艺术画做背景,冷暖撞色系家具在灯光下倍感温馨
▲ 电视背景墙采用明亮的色块分格,在色块中寻求平衡,通过少量颜色,点亮空间
▲ 客厅望向入户与餐厅,糖果色在空间中点缀出视觉冲击力,通过镜面、丝绒、金属等材质让色彩更好的融入整个场域
▲ 阳台,地面铺贴赋有视觉冲击力的花砖,搭配白色墙面与柜体,增添活跃的灵动性
▲ 餐厅与入户相融合,左侧嵌入鞋柜,底部架空,右侧规划出卡座餐厅,卡座与洞洞板缓解小餐厅的储物需求
▲ 餐厅边的多功能小房间以玻璃为隔墙与开门,解决空间的采光问题
▲ 业主对厨房的使用率较高,将厨房的一面墙向卫生间借位,扩大厨房使用面积,同时增加储物量
▲ 小巧的多功能房,通过玻璃取代部分隔墙,让餐厅与功能房在采光与视觉均得到缓解,按尺寸设计的书桌书柜,简洁好用
▲ 靠墙打造榻榻米,连接置顶衣柜,白色柜门与书架书桌显得空间更为明亮通透
▲ 次卧,采用简约清爽的风格,作为家中长辈的卧室,柜体与墙面选用传统的白色,黑色拉手与壁灯的色调呼应
▲ 主卧与客厅不同,采用柔和的蓝调系列色彩,打造轻松柔和的就寝环境
▲ 主卧柜体与次卧柜体保持同一种风格,简约的柜体搭配黑色拉手
▲ 主卧床头一侧采用粉色+原木的梳妆台来取代传统床头柜,天蓝的背景墙搭配蓝色窗帘,宝蓝色丝绒单椅丰富空间质感
▲ 卫生间,墙地面通铺同色瓷砖,采用黑白的经典配色
设计 | 田氏作坊设计事务所(武汉)
微信:17771837933
后台回复「田氏」可以看更多作品
媒体转载请注明装修33天并保留设计师联系方式
欢迎业主、设计师、装修公司免费投稿照片
装修33天商务合作微信:king194316
松爷店铺掌柜微信:yejia1702
田氏作坊设计事务所其他作品推荐
实用装修指南
装修33天 🏡 实用装修指南
喜欢我们的文章就随手转发到您朋友圈吧
Go to "Discover" > "Top Stories" > "Wow"