点上方蓝字可关注 微信号:装修33天
▲ 90平复式结构,实际使用总面积133平,整体居家以自然北欧风为主风格,简洁实用,还原生活家的味道
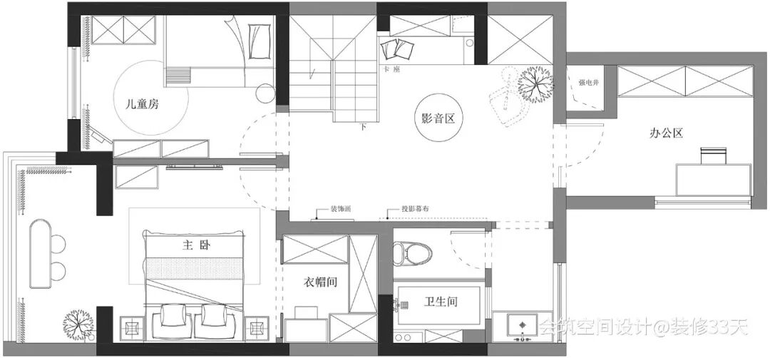
▲ 一层平面布置图
▲ 二层平面布置图
▲ 从入户动线进入室内,地面通铺原木地板,充足的采光搭配大面积的白色基调,给人舒爽的视觉体验
▲ 客厅,简洁的空间结构,采用极简吸顶灯,公共场域宽敞明亮
▲ 白色墙面点缀意境装饰画丰富背景,搭配灰木元素的沙发与茶几
▲ 白色套门与电视背景墙面保持统一色调,白色的纯洁与胡桃木的静谧、古朴相融合
▲ 客餐厅相邻,以机能性家具与顶面横梁作场域分割
▲ 餐厅延续简单的硬装风格,家具材质采用胡桃木搭配黄铜,辅以长虹玻璃,餐边柜造型通过简单的线面组合勾勒自在的居家风格
▲ 厨房位于楼梯下方,重新浇筑提高楼梯舒适性,将烤箱嵌入楼梯肚下方,黑白灰的极简色系,呈现清爽简约的料理操作空间
▲ 沿着楼梯来到二楼起居场域,整体延续一层白+胡桃木的基调,过厅休闲区打造窄榻与嵌入式书柜
▲ 次卧为长辈房,因此整体用色更加偏于简洁沉稳的调性,灰色墙面搭配静谧蓝窗帘,胡桃木的家具铺上蓝白床品,给人带来安稳的氛围
▲ 主卧连通阳台空间,打造吧台式办公休闲景观区
▲ 墨绿色墙面辅以金色元素壁灯做气质型床背景,搭配细腻的胡桃木家具,让大面积的绿色有了时尚气息
▲ 床侧设计步入式衣帽间,采用半通透的长虹玻璃为隔断,分隔空间的同时增加视觉的通透性
▲ 衣帽间兼具梳妆台的功能
▲ 卫生间干湿分离,水泥灰基调中加入木色调,在淋浴区开一个窗口引入光线
设计 | 会筑空间设计(南京)
微信:13914784029
后台回复「会筑」可以看更多作品
媒体转载请注明装修33天并保留设计师联系方式
欢迎业主、设计师、装修公司免费投稿照片
装修33天商务合作微信:king194316
松爷店铺掌柜微信:yejia1702
会筑空间设计其他作品推荐
实用装修指南
装修33天 🏡 实用装修指南
喜欢我们的文章就随手转发到您朋友圈吧
Go to "Discover" > "Top Stories" > "Wow"