点上方蓝字可关注 微信号:装修33天
▲ 测量面积115平,本案例位于台北,温馨的四口之家,在繁忙的日常里找到生活的平衡点,家的温度成为最重要的一件事
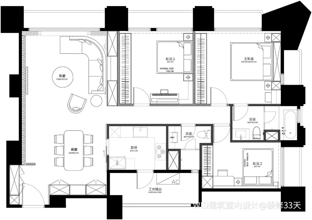
▲ 平面布置图
▲ 入户采用格栅规划出独立玄关,靠墙设计储物柜,满足进门收纳,柜体色彩和下方灯带,与电视背景墙形成一体化视觉
▲ 客厅,大面积窗户引入充足的采光,使用大理石作为主轴,地面的部分是用抛光处理,而电视墙则是呈现自然的表面
▲ 整体设计以简单的基底搭配细腻的质感,生活的艺术就在于对细节的坚持,转角沙发搭配后方半开放式储物式背景
▲ 客餐厅以过道为分界,餐厅墙地面延续客厅的格调,一组餐边柜中间嵌入茶色玻璃门酒柜,也成为餐厅的一道风景
▲ 选用优雅的仿古大理石桌面,由天花垂吊下来的灯饰,以金属光泽演绎,更为简约的空间添加亮点
▲ 厨房与餐厅相邻,灰褐色的瓷砖搭配香槟灰简约橱柜, 有序性、功能性的干净厨房让料理和烘焙变成一件简单幸福的事
▲ 走廊端景
▲ 次卧,留白的墙面内凹加入镜面造型与隐形灯光,咖啡棕色的皮质大床搭配篮紫色床品,采用软装提亮空间
▲ 次卧床侧设计架空写字台,满足休闲阅读需求
▲ 嵌入式衣柜与墙面齐平,灰色柜门结合茶色玻璃柜门,镜面的运用提亮与拉伸空间视觉
▲ 主卧,轻奢质感的格调,温润的木质纹理搭配金属顺应着光线勾勒出生活的韵律
▲ 沉稳的色系凸显主卧的优雅、恬静氛围
▲ 主卧床侧的柜体中设计出女主梳妆区
▲ 特别制作的精品展示层板,让包包一个个整齐的排列,看起来格外赏心悅目,搭配时也容易挑选,灯光下仿佛精致的珠宝盒散发着时尚美学
▲ 主卫整体通铺深色瓷砖,搭配白色卫浴与银色五金,卫生间中规划出淋浴与浴缸,以玻璃推门为隔断,确保干湿分区
▲ 研究显示,成功人士都有的特质,那就是大部分成功人士都在家中浴室中思考人生,有个舒服的浴缸是很有必要的![]()
▲ 视频
设计 | WID建筑室内设计(上海、台北)
设计师:王中丞Tommy、木木Mariana
微信:widjin
后台回复「WID」可以看更多作品
媒体转载请注明装修33天并保留设计师联系方式
欢迎业主、设计师、装修公司免费投稿照片
装修33天商务合作微信:king194316
松爷店铺掌柜微信:yejia1702
WID建筑室内设计其他作品推荐
现代简约风光感别墅 兼具艺术与实用
实用装修指南
装修33天 🏡 实用装修指南
喜欢我们的文章就随手转发到您朋友圈吧
Go to "Discover" > "Top Stories" > "Wow"