点上方蓝字可关注 微信号:装修33天
▲ 建筑面积125平,设计师采用黑白灰的经典组合,让人在深邃优雅色调空间中游走,感觉到一种贴近自然的舒服
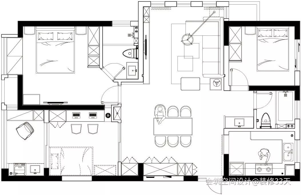
▲ 平面结构图
▲ 平面布置图
▲ 客厅以灰色为主色调,电视背景和沙发背景采用同样的艺术涂料装饰整体空间
▲ 灰色基调中加以少许的绯红点缀,视觉冲击力十足,整体大气有质感
▲ 南北通透的户型以及西向四扇接近落地的窗户,使得客厅区域采光良好
▲ 客厅休闲一角
▲ 电视墙保留少许装饰储物柜,以一种简约而不简单的布局设计实现现代风格的简洁质感,空间弥漫出一种轻松与自然感
▲ 客餐厅地面通铺水泥色瓷砖,搭配现代极简顶面,硬朗成熟的黑白灰看似简单,细节处理却颇具匠心,精挑细选的各种灯具为顶面空间增添一种超脱感
▲ 经典的黑白灰餐厅基调,简洁、干练但不失灵动,餐厅两端的厨房和书房空间同时采用玻璃移门的方式,玻璃的通透特性让自然采光最大化
▲ 厨房,白色墙面搭配灰色地面,黑色橱柜起着承上启下的作用,创造一个冷酷美感的料理空间
▲ 公领域机能空间互通布局,呈现开敞的活动空间
▲ 卫生间干湿分区,提高使用效率
▲ 书房,纯粹以黑白灰为主题的搭配,一如既往简单大方,玻璃镜面材质的柜门和长虹玻璃的嵌入,提高视觉舒适性
▲ 老人房,延续极简的黑白灰,灰色的床品、白色的顶面、黑色的床背,塑造雅致的同时又具有现代设计感
▲ 主卧,稳重的灰搭配明亮的白,淡淡的阳光透过窗户洒进室内,简约大气
▲ 卧室作为睡眠区域,它无须华丽装饰,亦无须贵重家具,简单、舒适、环保就好
▲ 卫生间,墙地一体通铺白色仿大理石瓷砖,搭配黑色台盆柜与五金件,延续黑白灰的简洁格调
文字编辑 | 深深
设计 | 会筑空间设计(南京)
微信:13914784029
后台回复「会筑」可以看更多作品
媒体转载请注明装修33天并保留设计师联系方式
欢迎业主、设计师、装修公司免费投稿照片
装修33天商务合作微信:king194316
松爷店铺掌柜微信:yejia1703
会筑空间设计其他作品推荐
实用装修指南
装修33天 🏡 实用装修指南
喜欢我们的文章就随手转发到您朋友圈吧
Go to "Discover" > "Top Stories" > "Wow"