点上方蓝字可关注 微信号:装修33天
▲ 这是一个台湾的案例,室内面积28坪(约93平米),3+1房2厅2卫,居住人数2大2小,由台湾设计机构「CONCEPT 北歐建築」出品,松爷个人觉得整体实用又美丽,质感也非常好
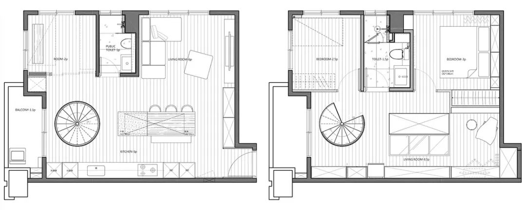
▲ 平面布置图
▲ 进门玄关,用白色门板修饰了电箱,镜面的运用除了实际的仪容镜功能,同时解决了扩大视觉和采光的功能
▲ 屋主夫妻长年旅外工作的经历让他们非常喜欢北欧风格,整体在色调上采用80%的白色基调,融入10%的木色地面,局部点缀8%的灰色,再用2%的黑色加重,一字型的橱柜用白色门板解决了收纳的同时,隐藏了冰箱(左边高柜)、油烟机(中间吊柜),蒸箱烤箱也融入右侧高柜,功能齐全
▲ 一楼以女主的梦想厨房为核心,大理石包边的中岛紧挨着原木餐桌
▲ 考虑到层高,保留了房子原来的梁体,用灰泥涂料做出水泥感,客厅浅灰色的沙发简单舒适,房子两面采光通透明亮,用百叶帘可以控制光线的射入
▲ 电视墙采用白色纹理大理石做背景,造型简单的木色电视柜,一侧是男主喜爱的 B&O 音响,另一侧是一组大型柜体,顶天立地的白色柜门让立面非常干净
▲ 中岛在白色大理石包裹的中间嵌入木色柜体,可当餐边柜使用
▲ 圆形楼梯是本案的最大亮点,设计的时候也是先考虑楼梯的位置,再围绕楼梯展开的其他设计,中间是纤细的白色立柱,扶手除了细小的铁条还加上了弧形扁铁,不影响美观同时也保障了安全性
▲ 木色的踏步精确的计算了大小以及每一阶的高度
▲ 楼上采用圆弧形的玻璃做扶手,增加了楼梯造型的艺术感
▲ 餐厅挑高部分垂吊一组意大利 Foscarini 雾白吊灯,造型美如云朵
▲ 从二楼往下看餐厅视角
▲ 楼梯这一侧也有窗户采光极佳
▲ 拾级而上
▲ 楼上有一部分是开放式公共区域
▲ 一整面墙的收纳,靠楼梯这边是有柜门的,另一边是白色铁皮格子,可以当展示柜和书柜,中间的 SMEG 非常亮眼
▲ 另一侧的折叠柜门中隐藏了男主的娱乐空间,可以和孩子一起看电视打游戏
▲ 电视对面的墙面还利用卧室的衣柜多出来的厚度设计了一面墙的隔板,公共区的收纳能力很强
▲ 二楼正对餐厅上方部分楼板换成了玻璃,不仅在视觉上增加了餐厅的挑高,让一楼和二楼空间上有更多互动
▲ 小孩和大人在楼上楼下也可以随时照看一举一动
▲ 两个卧室和卫生间的门片全部采用隐形门设计,整个立面一体化
▲ 主卧床头上方的横梁,通过柜体设计消除了压抑感,同时增加了收纳能力,侧面的衣柜也是入墙式设计,整个空间极简
▲ 卫生间整体石纹瓷砖铺贴,玻璃隔出淋浴区,淋浴地面高低差1cm更方便排水,利用马桶侧面的犄角空间设计置物隔板
设计 | CONCEPT 北歐建築(台北)
邮箱:service@twcreative.net
官网:dna-concept-design.com
欢迎业主、设计师、装修公司免费投稿照片
装修33天商务合作微信:king194316
松爷店铺掌柜微信:yejia1703
实用装修指南
装修33天 🏡 实用装修指南
喜欢我们的文章就随手转发到您朋友圈吧
Go to "Discover" > "Top Stories" > "Wow"