▲ 使用面积240平,男主从事房产相关工作,性格干脆,对于自己的家清楚地知道自己想要什么,设计师在空间上没有做多余的改动,只是做了局部优化
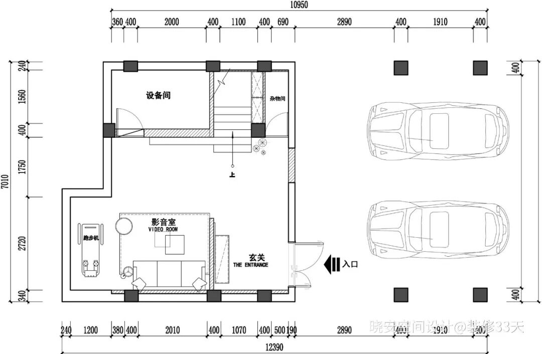
▲ 地下平面布置图
▲ 入户玄关在地下室,经过玄关是影音室,水泥墙与水泥地砖融合,给人粗犷原始的质感,改变了楼梯方向,增加了储物间
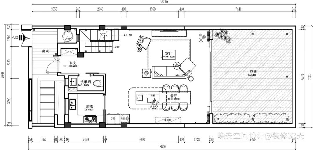
▲ 一层平面布置图
▲ 一楼为客餐厨空间,采取四扇落地移门,将整个室外花园与室内空间融为一体
▲ 开放式客餐厅布局,把沙发当做隔断使用,过渡自然,简单又实用
▲ 极简顶面无主灯设计,选用低矮的家具,拉伸视觉层高
▲ 角落摆放B&O音响为空间增添艺术性
▲ 餐桌连接岛台,岛台兼做西厨操作台与吧台功能,中厨门口打造高柜纳入大型厨电
▲ 花园,防腐木地板搭配户外家具,适合朋友家人一起开party
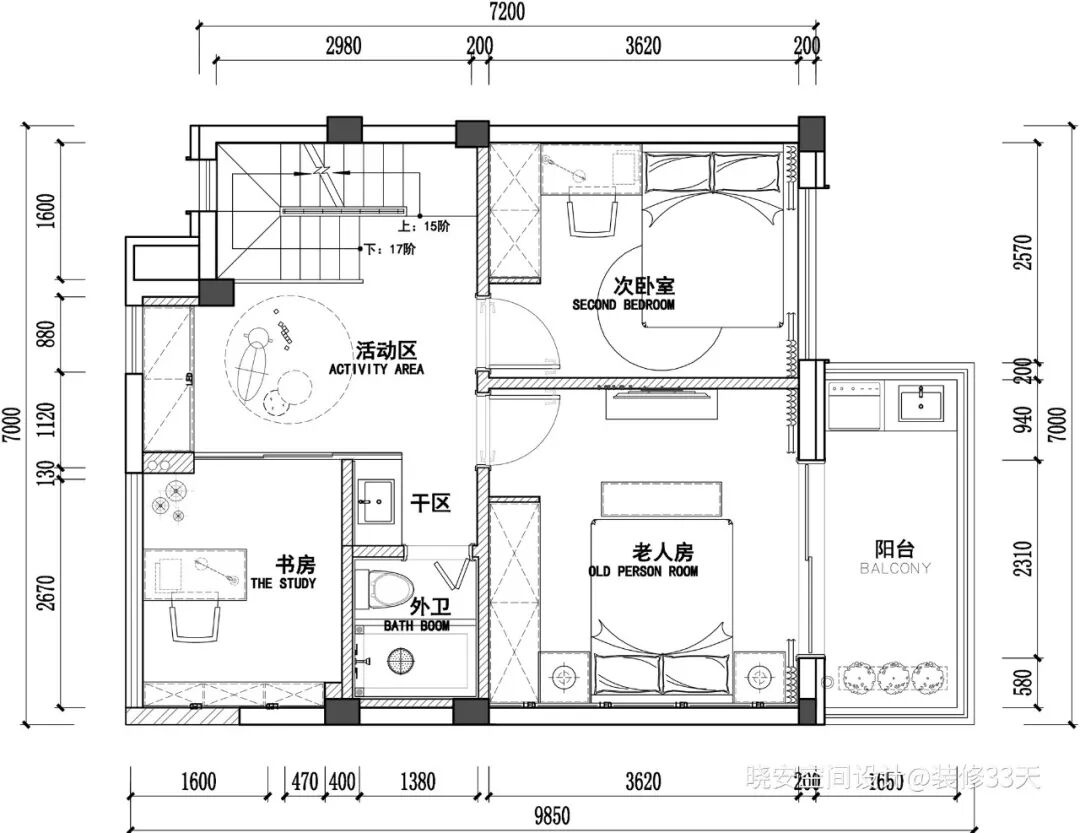
▲ 二层平面布置图
▲ 公共区域打造一个开放式活动区,与楼梯做镂空隔断
▲ 书房与卫生间采用玻璃移门隔断,保证空间通透和采光
▲ 儿童房,房屋造型的小床增添卧室趣味性
▲ 靠墙打造小书桌造型也很可爱,提高孩子的学习兴趣
▲ 次卧简约实用为主,明黄色床品提亮空间
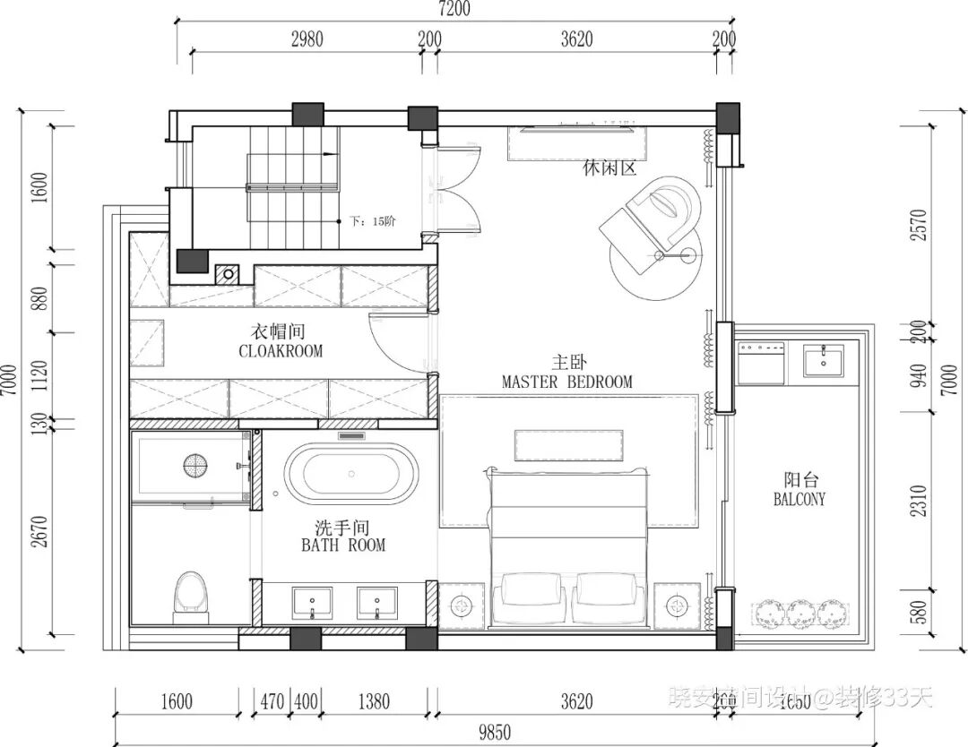
▲ 三层平面布置图
▲ 设计师将三楼整层设计成酒店式的套间,房间里面有休闲区、睡眠区、衣帽间、卫浴间,整体采用黑白灰色系
▲ 衣帽间,打造开放式储物柜,满足不同的储物需求
▲ 主卫,双台盆设计提高使用效率,浴缸放在对面,坐便区与淋浴区设置在内部
文字编辑 | 东东
设计 | 晓安空间设计(苏州)
微信:xn1533856927
后台回复「晓安」可以看更多作品
媒体转载请注明装修33天并保留设计师联系方式
欢迎业主、设计师、装修公司免费投稿照片
装修33天商务合作微信:king194316
松爷店铺掌柜微信:yejia1703
晓安空间设计其他作品推荐
实用装修指南
装修33天 🏡 实用装修指南
你点的每个赞,都是对我们的支持
Go to "Discover" > "Top Stories" > "Wow"