▲ 建筑面积260,总造价150万,屋主喜欢西方文化。玄关,换鞋凳加鞋柜一体的设计使生活更加便利
▲ 原始结构图
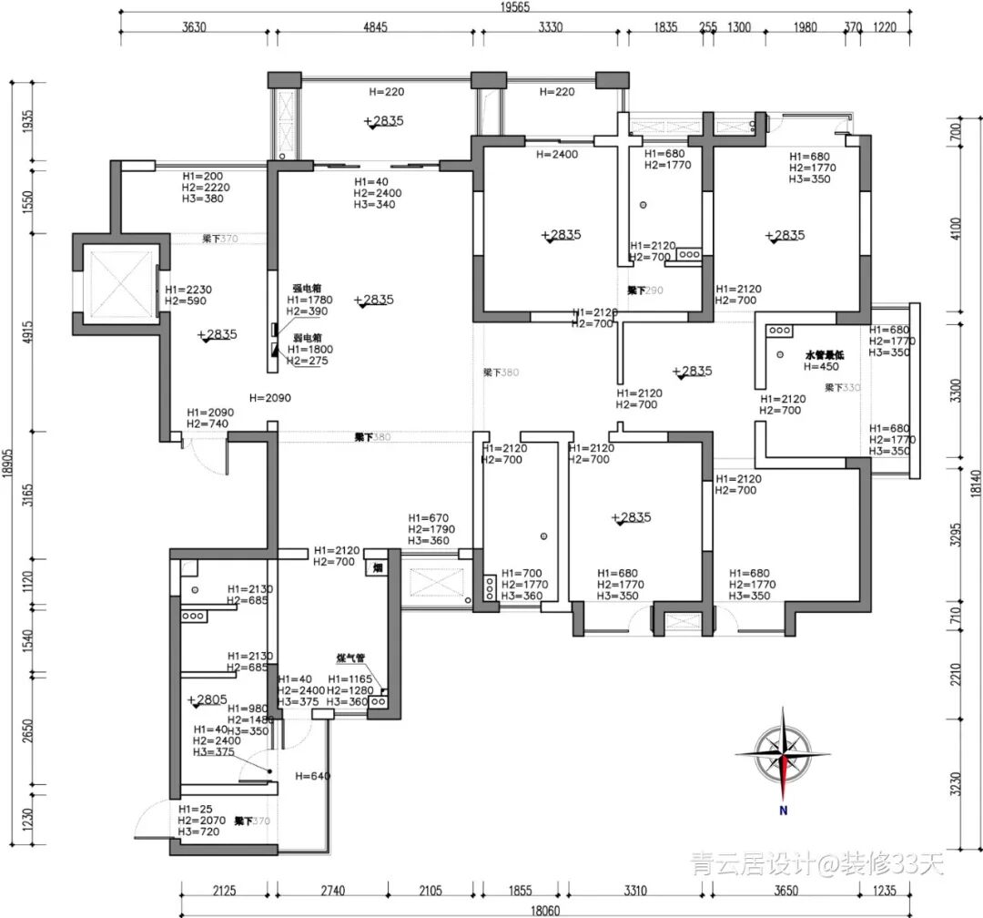
▲ 平面布置图
▲ 客厅,沙发等家具品质与艺术感并存,孔雀蓝的天鹅绒单人沙发与朱砂红窗帘成为视线范围内最抢眼的撞色,整体搭配塑造出时尚优雅的氛围
▲ 黑金轻奢的沙发与装饰柜,搭配高贵典雅的大茶几,经典大气的花色地毯、抱枕和单椅呼应
▲ 打造壁炉造型电视墙,勾勒精致石膏线条,搭配金色灯饰营造出复古华丽的空间氛围
▲ 客餐厅相连,用孔雀蓝进行延伸,打造大面积灰色餐边柜,中部预留电视位置,满足就餐时的观影需求
▲ 与厨房采用清玻移门隔断,不影响采光,还能隔绝油烟
▲ 厨房,U型橱柜延伸设计中岛吧台,同时增加了操作台面,黑白色的空间加入红色点缀,营造出丰富的视觉感受
▲ 岛台对面规划为西厨区,复古小家电为厨房增添活力与颜值
▲ 客卫,木纹砖地面搭配肌理感丰富的墙砖,黑色浴室柜结合金色五金,简约而经典
▲ 书房,精致的书桌椅散发着复古时尚的气质,利用墙面设计了开放式置物格
▲ 展示柜里装满了屋主多年从各地收集来的娃娃,室内每一角落都做到完美与精致
▲ 次卧,采用不同深浅的蓝绿两色通过窗帘、灯具、柜子和床头尾花纹来表达,营造出安静舒适的睡眠空间
▲ 床尾设置精致的梳妆区
▲ 简约典雅的走廊, 精致的石膏线条搭配华丽的家具, 有着轻奢而不浓重,华丽却不浮夸的美感
▲ 主卧,大面积落地窗让自然光线毫无保留的倾斜入室,空间通过粉色与绿色的装点,显得温馨且清爽,可爱又活跃
▲ 绿色护墙板结合粉色硬包打造层次感背景墙,纯色床品与花色地毯为空间注入一点柔美
▲ 衣帽间选用了房主喜爱的绿色为主色,点缀金色和粉色
▲ 主卫,颇具设计感的地砖搭配大理石小瓷砖半墙,多出的瓷砖摆成雪花的形状贴在背景墙上,更具层次感
文字编辑 | 东东
设计 | 青云居设计(杭州)
电话:0571-87655093
微信:18106530545
后台回复「青云居」可以看更多作品
媒体转载请注明装修33天并保留设计师联系方式
欢迎业主、设计师、装修公司免费投稿照片
装修33天商务合作微信:king194316
松爷店铺掌柜微信:yejia1703
青云居设计其他作品推荐
实用装修指南
装修33天 🏡 实用装修指南
你每次点赞和转朋友圈,都是对我们的支持
Go to "Discover" > "Top Stories" > "Wow"