▲ 项目面积270平,造价70万,本案为精装修改造,重装80%的吊顶和基础,利用原先建筑空间的宽敞优势,把每个功能做的更有特点更细腻
▲ 一层平面布置图
▲ 客厅打破传统沙发正对电视的常规,采用围合式布局,同时留出了通往卧室与阳台的过道空间
▲ 极简顶面点缀一盏造型吊灯,布置黑色皮沙发与白色大理石茶几,搭配黑白拼色毛绒地毯,丰富层次与质感
▲ 背景墙勾勒pu线条,新建大理石壁炉营造出温馨的室内氛围
▲ 客餐厅之间是楼梯区域,设计超白钢化玻璃扶手替换了原本的铁艺扶手,使空间南北通透
▲ 利用原本就狭长的餐厅空间,打造餐桌结合中岛的设计
▲ 餐厅一侧打造分体式收纳柜,解决餐边收纳的同时兼作餐厅背景,左侧的双开门背后是主卧套房
▲ 岛台下方嵌入烤箱设备,使空间兼具西厨功能,满足了业主烘焙需求
▲ 书房陈设简洁干练,搭配大面采光窗,打造出舒适惬意的阅读空间
▲ 主卧,灰色皮质高背床搭配简约的床品,浅色系背景点缀多彩造型墙饰,整体营造出自然安静的睡眠氛围
▲ 主卧衣帽间,设计了整面到顶的衣柜,为了保证门片不变形,采用了一体式铝合金边框拉手柜门,靠窗的区域规划为梳妆空间
▲ 楼梯,白色大理石台阶搭配玻璃扶手的设计,通透明亮
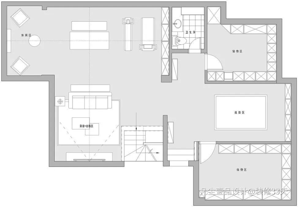
▲ 地下平面布置图
▲ 地下室大面积留白设计,透明的玻璃天井将阳光完全引入进来,给人宽敞的空间感
▲ 影音+会客区,留白电视墙搭配胡桃木电视柜,配合激光电视,打造出高品质观影空间
▲ 办公区,木饰面吊顶嵌入线条灯带,制造层次与氛围
▲ 将休憩区设置在采光最好的天井处,大理石壁炉搭配咖色单人沙发,点缀造型壁灯与装饰画,自然又舒适
文字编辑 | 东东
设计 | 凡尘壹品设计(杭州)
微信:13857193935
后台回复「凡尘」可以看更多作品
媒体转载请注明装修33天并保留设计师联系方式
欢迎业主、设计师、装修公司免费投稿照片
装修33天商务合作微信:king194316
松爷店铺掌柜微信:yejia1703
凡尘壹品设计其他作品推荐
89平轻奢混搭三室,2020年流行色Classic Blue
实用装修指南
装修33天 🏡 实用装修指南
你每次点赞和转朋友圈,都是对我们的支持
Go to "Discover" > "Top Stories" > "Wow"