▲ 使用面积110平,地址:深圳,2020年完工,屋主是一位气质的知性优雅单身女性,由于平时不需要那么多房间使用,所以三房改两房让空间扩容,为此还多了一个宽大的衣帽间
▲ 原始结构图
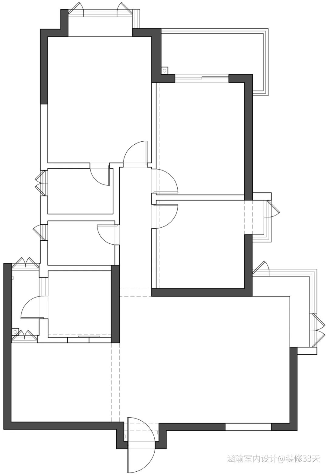
▲ 平面布置图:
1.将次卧设计成衣帽间,与主卧打通做了玻璃推拉门隔断;
2.打通餐厨之间的隔墙,设计成半开放式厨房,将狭小的生活阳台封窗处理;
3.将公卫与主卫的墙面向主卧方向移动,扩大公卫;
▲ 打破传统客厅布局,围合式沙发摆放,取消电视以投影幕布代替,L型飘窗提供采光与座位
▲ 选用方便移动的小体量家具,可随时切换空间模式,半开半合的柜体设计,收纳与展示功能并存
▲ 落地摆放的装饰画与空间色调协调呼应
▲ 无把手柜门简约又高级
▲ 巧妙的将开放式厨房与西厨和餐厅融合在一起,U型柜体大大增加收纳空间
▲ 餐厅,简约风餐桌椅与中岛相连,形成环形动线,背景柜体嵌入大型厨电,同时具备酒柜功能
▲ 另一侧打造分体式柜体,吊柜局部留空设计隔板,白+木的柜门搭配,轻盈耐看
▲ 公领域鱼骨拼木地板延伸至卧室
▲ 扩大客卫,白色一体盆简约实用易打理
▲ 次卧将原先的隔墙向主卧衣帽间推移,打造出整墙电视储物柜,同时不影响走道空间
▲ 藏青色床头背景,点缀金色小物
▲ 主卧延续简约风格,纯白搭配原木打造宁静雅致的休憩空间,床尾的玻璃推拉门后是衣帽间
▲ 床头一侧用一张小桌替代床头柜
▲ 衣帽间,L型置顶柜体搭配极简线条的柜门把手,专门设计层板来放包包,用玻璃柜门更一目了然
▲ 改变主卫开门方向,与主卧之间的隔墙用玻璃取代,让空间采光更佳
文字编辑 | 东东
设计 | 涵瑜室内设计(深圳)
QQ:2263471
Tel/微信:18603065125
网址:www.hydsign.com
公众号:HY-DESIGNS
后台回复「涵瑜」可以看更多作品
媒体转载请注明装修33天并保留设计师联系方式
欢迎业主、设计师、装修公司免费投稿照片
装修33天商务合作微信:king194316
松爷店铺掌柜微信:yejia1703
涵瑜室内设计其他作品推荐
145平现代简约四室 色调和谐质感高级
实用装修指南
装修33天 🏡 实用装修指南
你每次点赞和转朋友圈,都是对我们的支持
Go to "Discover" > "Top Stories" > "Wow"