▲ 使用面积70平,造价25万(不含电器),地址:深圳,2020年完工,本案是二手房改造,常住人口:两夫妻及一位长辈,两口子喜欢日式+北欧风
▲ 原始结构图
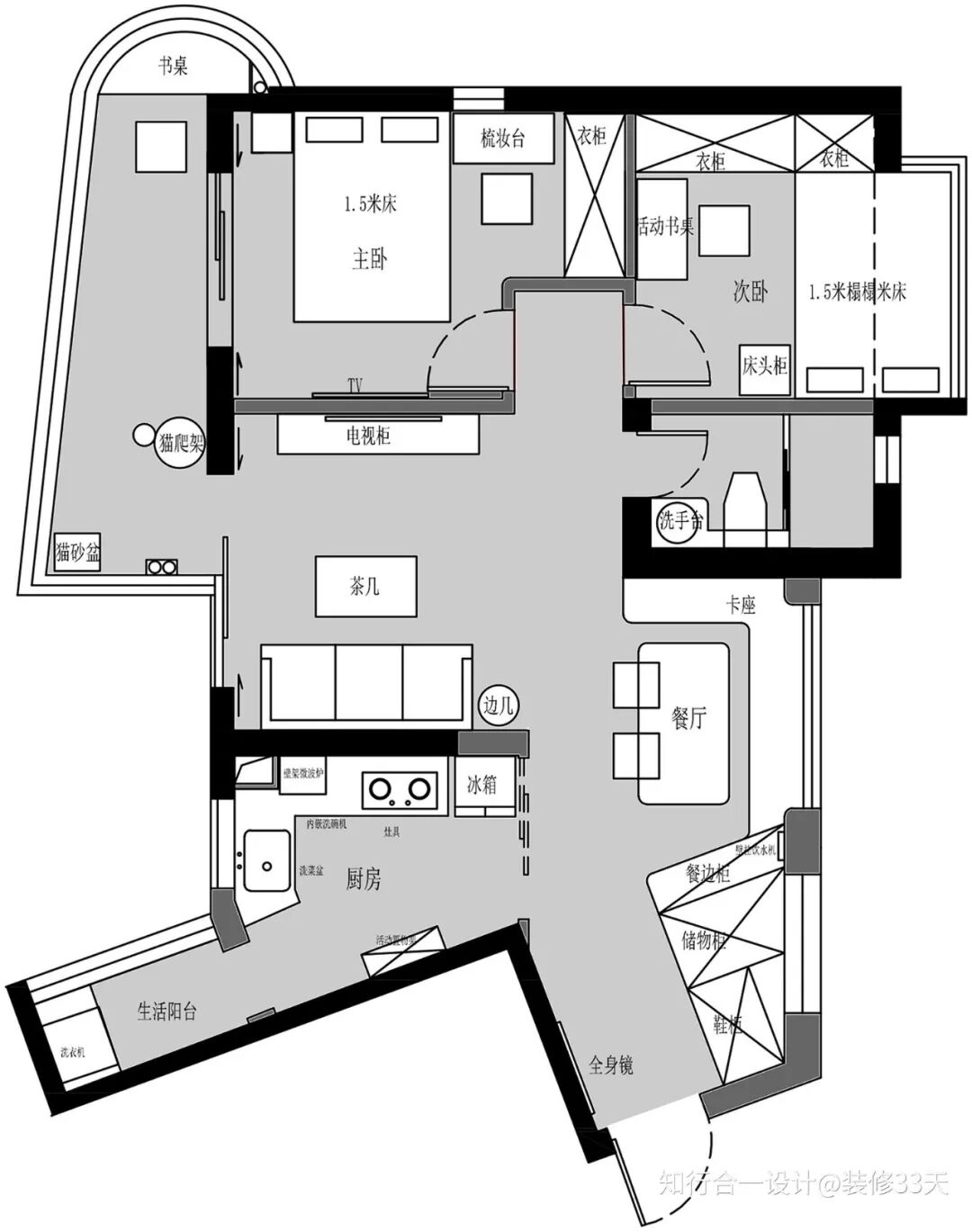
▲ 平面布置图
▲ 平面改造图
▲ 改造前原户型一进门用隔板做了一面装饰屏风,把玄关的采光遮挡了一部分,改造后:打掉多余的装饰屏风,墙面刷白,大幅度提升玄关采光
▲ 玄关打造顶天立地收纳柜,靠近餐厅那边的柜深就有1米,宽80cm,小两口的行李箱、吉他、换季的被子等都可收纳在此
▲ 经过玄关来到餐厅,L型卡座配上原木色餐桌,节省过道空间,餐边柜没有做整面的吊柜,让餐厅采光可以透一些到厨房
▲ 卡座底下都是收纳柜子,可以放置一些屯回来的零食,五谷杂粮
▲ 餐厅改造前后对比
▲ 客餐厅与卧室都采用复合木地板,与家具整个设计色系融合在一起
▲ 客厅,日式的简约原木配上清爽的北欧元素,白色羽毛灯增添了优雅轻盈感
▲ 选用细脚轻便的家具,小空间也显得更宽裕,还能方便调整家具位置
▲ 客厅改造前后对比
▲ 厨房采用玻璃移门隔断,关上门做饭也不影响采光
▲ L型厨房,白色吊柜搭配原木色地柜,干净清爽
▲ 设计改造后阳台做成全封闭式阳光玻璃房,地面选用与客厅地板颜色相近的木纹砖,一旁为喵星人设置了猫爬架
▲ 离阳台不远有高架桥,晚上睡觉有车鸣喇叭还是有些吵的,封窗后可以隔音
▲ 过道改造前后对比
▲ 次卧,利用飘窗的位置定制榻榻米,直接做成可储物的多功能床(1.5米)
▲ 设计侧开的柜子取物更加方便,榻榻米收纳不常用的物品
▲ 床尾做了整墙储物柜
▲ 将主卧靠近阳台的墙面打掉换成推拉门,增强卧室采光
▲ 薄荷绿背景搭配原木色家具,点缀装饰画与壁灯,小窗下设置原木梳妆台
▲ 改造后将原本的床头背景往次卧移了50cm,增加出衣柜的空间
▲ 卫生间采用磨砂玻璃门隔断,不影响采光又保证隐私
▲ 卫生间拍完工照时还未安装淋浴隔断
文字编辑 | 东东
设计 | 知行合一设计(深圳)
微信/电话:13530117071
媒体转载请注明装修33天并保留设计师联系方式
欢迎业主、设计师、装修公司免费投稿照片
装修33天商务合作微信:king194316
松爷店铺掌柜微信:yejia1703
知行合一设计其他作品推荐,点击下图查看我第一次见,他家儿童房居然可移动!
实用装修指南
装修33天 🏡 实用装修指南
你每次点赞和转朋友圈,都是对我们的支持
Go to "Discover" > "Top Stories" > "Wow"