▲ 使用面积200平,总造价120万,项目地址:杭州,完工时间:2020年1月,屋主对家装的品质要求很高,原来房子结构是楼下三个房间,楼上整个都是空的,通过设计师改造,由一个小户型的房型立马变成别墅的感觉
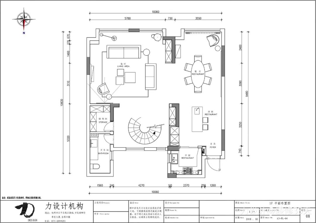
▲ 一层平面布置图
▲ 设计师在空间上采用了动静分区,楼上全部做房间,楼下待客
▲ 客厅以灰白色为主,为整个家铺垫一层优雅的基调,沙发呈围合式摆放,不以电视为中心,互动性更好
▲ 灰色背景墙中间设计仿壁炉造型进行装饰,彰显出简约大气
▲ 木饰面电视墙后方是储物间与卫生间
▲ 开敞的客餐厅,化零为整,使得空间尺度得以放大,视野开阔通透
▲ 整屋地面采用木地板人字铺贴,椭圆形大理石餐桌配上黑色皮质餐椅,可容纳多人就餐
▲ 开放式的西厨与餐厅可以很好的增加家人之间的互动
▲ 西厨吧台特意配了两把透明亚克力吧凳,减少存在感和时尚属性
▲ 中厨区设置长虹玻璃移门隔断,隔离油烟不影响采光
▲ 旋转楼梯成为整个空间的点睛之笔,提升格调与颜值
▲ 婉转如丝带般的回旋、运动、延伸,使空间的过度严肃而富有变化,打破了原有的孤立混乱格局,形成了新的秩序美感
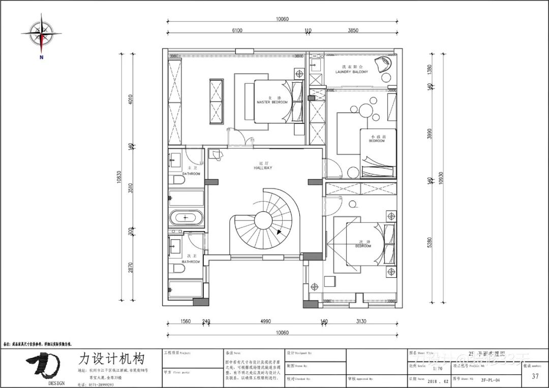
▲ 二层平面布置图
▲ 二楼过道的装饰画丰富视觉层次
▲ 次卧色调内敛雅致,灰色柜门与床头背景相呼应,通过点光源来营造空间氛围
▲ 台灯和床头柜都用金色作为点缀
▲ 主卧用现代的手法打造,黑白灰作为基础色彩,设计深色半高软包护墙替代靠背
▲ 床尾的横凳可用于收纳过夜衣物,侧墙点缀抽象挂画
▲ 设计衣柜结合梳妆台一体,不仅有效利用空间,还能让空间更具整体感
文字编辑 | 东东
设计 | 力设计(杭州200公里以内)
微信:17858603257
后台回复「力设计」可以看更多作品
媒体转载请注明装修33天并保留设计师联系方式
欢迎业主、设计师、装修公司免费投稿照片
装修33天商务合作微信:king194316
松爷店铺掌柜微信:yejia1703
力设计其他作品推荐
实用装修指南
装修33天 🏡 实用装修指南
你每次点赞和转朋友圈,都是对我们的支持
Go to "Discover" > "Top Stories" > "Wow"