▲ 使用面积159平,造价65万,坐标:重庆渝北,业主是一对年轻夫妻,有一位7岁的小帅哥,酷爱街舞,家里会常住长辈,因此在设计上既要考虑功能的实用性,也要满足年轻夫妻对生活的向往
▲ 原始结构图
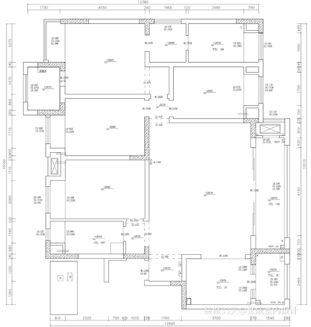
▲ 平面布置图
▲ 经过玄关,客餐厅为横厅格局,地面通铺800*800仿大理石砖,超长阳台提供极佳的采光与视野
▲ 客厅采用围合式沙发布局,通过两个不同色彩的地毯来丰富层次
▲ 与书房之间设计玻璃隔墙,提升整体通透感
▲ 借用老人房空间,电视墙侧面做了隐形储物柜,与大理石电视墙形成冷暖对比
▲ 餐厅,选用简约餐桌椅搭配长凳的组合,点缀一盏多头吊灯增添氛围
▲ 开放式厨房设计,在厨房和餐厅之间做了中岛吧台,满足了业主烘焙的需求
▲ 书房,定制一体式书桌柜,右侧设计柜体隐形床,可做临时休息客卧,平时收起来不占空间
▲ 老人房干净整洁,没有多余装饰,利用原本空调管道的位置设计了嵌入式储物柜
▲ 儿童房用浅绿色搭配淡蓝色,加入黄色点缀显得更加清新活泼
▲ 可爱的造型壁灯与卡通装饰画增添童趣
▲ 主卧将多功能房和过道的一部分区域纳入,打造成套房形式
▲ 灰色硬包结合木饰面作背景,皮质高背床搭配胡桃木床头柜质感丰富
▲ 床头一侧通往书房、衣帽间与卫生间
▲ 衣帽间U型布局,开放式与封闭式的柜体组合,满足不同类型的衣物收纳
▲ 卫生间以浅色系为主,搭配通透的淋浴隔断更显干净宽敞
文字编辑 | 东东
设计 | 张成室内设计(重庆)
微信:tina_koo
QQ:736647444
公众号:张成室内设计
后台回复「张成」可以看更多作品
媒体转载请注明装修33天并保留设计师联系方式
欢迎业主、设计师、装修公司免费投稿照片
装修33天商务合作微信:king194316
松爷店铺掌柜微信:yejia1703
张成室内设计其他作品推荐
实用装修指南
装修33天 🏡 实用装修指南
你每次点赞和转朋友圈,都是对我们的支持
Go to "Discover" > "Top Stories" > "Wow"