▲ 项目面积150平,造价80万(不含设计费和家电),完工时间:2020年,为了成全孩子的梦想,在这150平米的房子里面,使用不同于以往的设计,打造出属于孩子们的游乐园
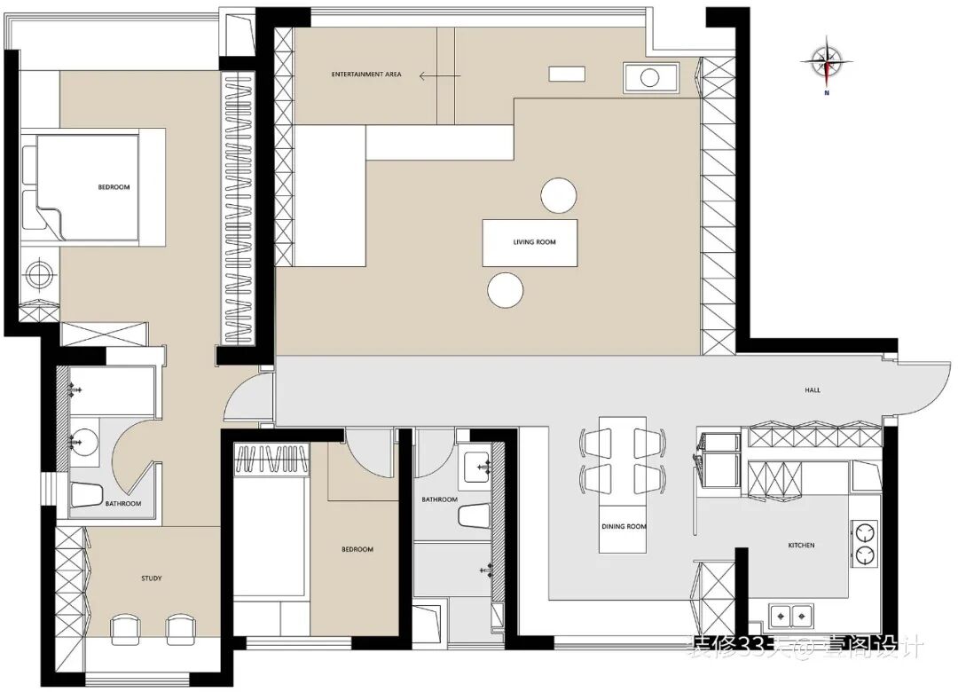
▲ 平面布置图
▲ 取消传统客厅的模式,将常规的茶几及沙发移除,做了地台加高处理,设计升降桌,再配上几个懒人沙发,形成躺、趴、坐随意切换的模式
▲ 定制整面储物柜,内凹做成小房子造型,为孩子提供阅读角
▲ 滑梯配上海洋球就是孩子们的天堂,加上一个秋千,更是走到哪里玩到哪里,玩累了随便找个地方坐着
▲ 滑梯旁做了半开放式书架,下面的海洋球小池是亲子互动的绝佳场地
▲ 顶面嵌入两个超大的投影屏,带来极致的观影体验
▲ 餐厅以白色为基调,延续无主灯顶面设计,红色餐椅提亮空间
▲ 木纹桌面与岛台穿插相连,以餐桌为中心定制柜体形成洄游动线,立面用天然大理石做置物隔板
▲ 餐厅另一侧,将冰箱、烘干机、洗衣机等电器收纳在两边,用移门和百叶门进行遮挡,兼顾空间协调性
▲ 厨房,白色橱柜搭配灰色地砖,干净好打理,一组木色高柜纳入蒸烤箱设备
▲ 隐形门的设计让整体更显统一与高级
▲ 客卫,干净的大理石瓷砖延续天然质感,营造出纯净与舒适的卫浴空间
▲ 儿童房采用定制的上下铺,既是两个亲密的空间,也是两个独立的空间,色彩上以粉色为主,加入红蓝碰撞充满活力
▲ 主卧门片同样采用隐形门设计,背景作拉缝处理,达到更好的隐形效果,右侧点缀一把趣味造型椅
▲ 主卧灰白木的配色给人一种简约舒适的感觉,床尾整面储物柜几乎能满足一切收纳需求
▲ 现场制作床头背景、床头柜与床架一体,灰色背景墙点缀一抹灵动的天蓝
▲ 床侧摆放一组简易的收纳展示架
▲ 主卫整体风格与客卫形成呼应,简洁大气
▲ 部分软装清单
▲ 视频
文字编辑 | 东东
设计 | 壹阁设计(成都)
微信:18482088171
后台回复「壹阁」可以看更多作品
媒体转载请注明装修33天并保留设计师联系方式
欢迎业主、设计师、装修公司免费投稿照片
装修33天商务合作微信:king194316
松爷店铺掌柜微信:yejia1703
壹阁设计其他作品推荐
实用装修指南
装修33天 🏡 实用装修指南
你每次点赞和转朋友圈,都是对我们的支持
Go to "Discover" > "Top Stories" > "Wow"