▲ 使用面积57平,造价32万,项目坐标:四川成都,本案作为一个4.7m层高的loft,是一家三口未来幸福的港湾,男主人注重空间感,不想和普通loft一样压抑,女主人想要拥有独立的衣帽间和梳妆台,孩子希望有一个滑滑梯,设计师重新梳理空间,取舍之中实现阔尺舒居享受
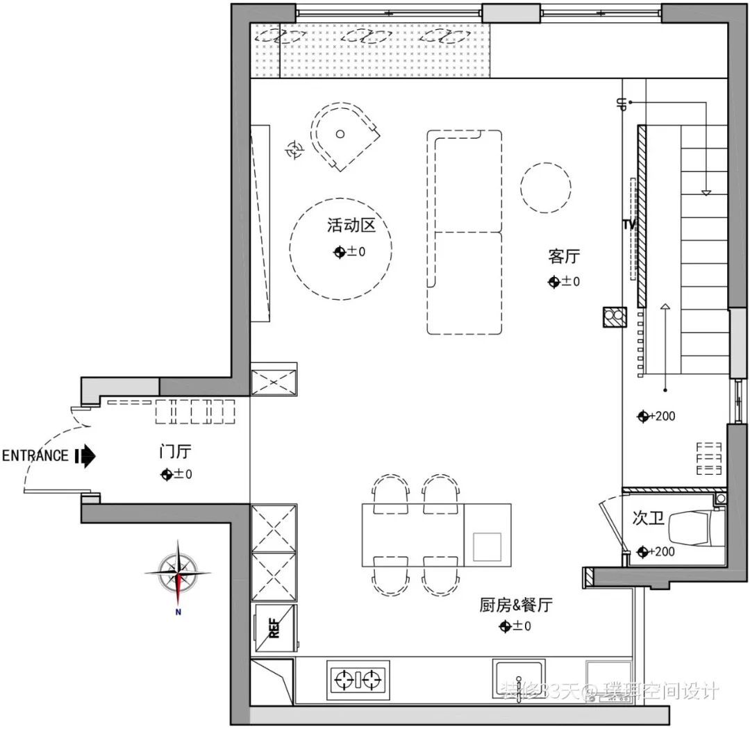
▲ 一层平面布置图
▲ 入户门厅处挑高处理,竖向拉伸了门厅与客厅之间空间关系,一张实木换鞋凳设计感十足
▲ 一楼地面全部做了自流平,客厅打破传统沙发正对电视墙的布局方式,满足了屋主对于互动交流以及阅读收纳的需求
▲ 留白背景用隔板做了开放式书架,收纳与展示并存
▲ 电视墙挑高延伸至二楼,呈现轻盈通透的空间体验感,右侧规划钢琴区,隐形门背后是客卫
▲ 开放式餐厨区,以餐桌与岛台为中心,形成洄游动线,浅色调空间搭配木色橱柜,干净清爽(拍照时油烟机未安装)
▲ 开放式布局,除了空间感更好之外,女屋主在下厨时也可以照看到在客厅的孩子动态
▲ 一楼与二楼,以楼梯&滑梯双重设计转载出空间中的动与静,滑梯末端再加上一些缓冲保护就可以开心的玩耍
▲ 从二楼俯瞰客厅
▲ 二楼平面布置图
▲ 二楼过道规划出儿童阅读角,同时作为卧室之间的过渡区
▲ 儿童房布置简约实用,可跟随孩子的成长和需求变动布局
▲ 主卧以高级灰和白色为基调,营造出静谧舒适的睡眠氛围
▲ 主卧与挑高区以玻璃替代隔墙,延伸出通透的视觉感,增设百叶帘确保空间私密性
▲ 靠窗的位置规划阅读区
▲ 卫生间干湿分离,提高生活效率,用长虹玻璃移门做湿区隔断
文字编辑 | 东东
设计| 璞珥空间设计(成都)
微信:PUER_DESIGN
媒体转载请注明装修33天并保留设计师联系方式
欢迎业主、设计师、装修公司免费投稿照片
装修33天商务合作微信:king194316
松爷店铺掌柜微信:yejia1703
实用装修指南
装修33天 🏡 实用装修指南
你每次点赞和转朋友圈,都是对我们的支持