▲ 室内面积80平,造价40万,项目地址:成都,完工时间:2019年4月,本案将情感与生活的温度注入在空间设计中,进而互相呼应,归纳专属居住者的风格特质
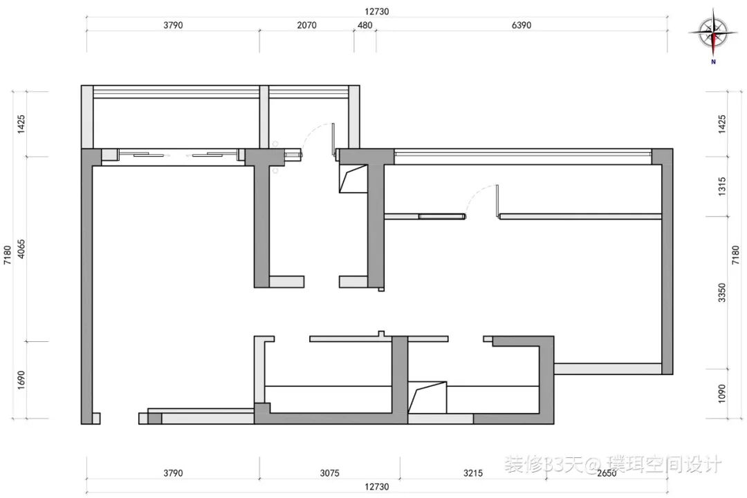
▲ 平面结构图
▲ 平面布置图
▲ 整个设计引入自然光线,让阳光的温度围绕全屋,精减界面材质与结构线条,由功能的切入衍生线条的形态,化繁为简,还原纯粹空间表情,注入情感与生活内容,构建出居宅丰富的生命力
▲ 打造置顶半开放书架作为电视背景,原木色从鱼骨拼延伸至背景墙,留白元素增加极简的大气感
▲ 灵动的移门设计,以满足不同的生活形态
▲ 纯粹清雅的界面,对应极简,极自在的心理感
▲ 木材延伸至餐区天花,在开放尺度空间围合出充实的包裹感
▲ 轻食区延伸至厨房形成视觉延续性
▲ 对于居者而已,轻食区让家回归更真实的居住意涵
▲ 厨房,瓷砖地面与鱼骨拼木地板分界餐厨区域,转角空间自成端景
▲ 以石与木材料为主,引入自然光线,温和的开放出空间的秩序
▲ 主卧,延续原木与白色的极简风格,间接光线勾勒出卧榻界面层次,居住空间除了满足人的生活功能和外在的美学呈现外,更需要发展出内在的生活精神,让人与空间可以互相滋养,空间感染力带出更内在的感知
▲ 深浅对比强化卫生间的张力与精致的质感
▲ 深色瓷砖搭配顶面洗墙光线,呈现简约空间,侧墙借墙厚度增加壁龛,方便置物
文字编辑 | 深深
设计| 璞珥空间设计(成都)
微信:PUER_DESIGN
媒体转载请注明装修33天并保留设计师联系方式
欢迎业主、设计师、装修公司免费投稿照片
装修33天商务合作微信:king194316
松爷店铺掌柜微信:yejia1703
实用装修指南
装修33天 🏡 实用装修指南
你每次点赞和转朋友圈,都是对我们的支持