▲ 建筑面积119平,总造价40万,项目坐标:长沙,完工时间:2021年4月,屋主是一位亲切自然、从容淡定的男生,非常享受生活,这个家也是靠自己独自打拼而来,目前一个人住,父母偶住,注重生活的仪式感及个性表达,希望营造一个安心、自由、品质的家
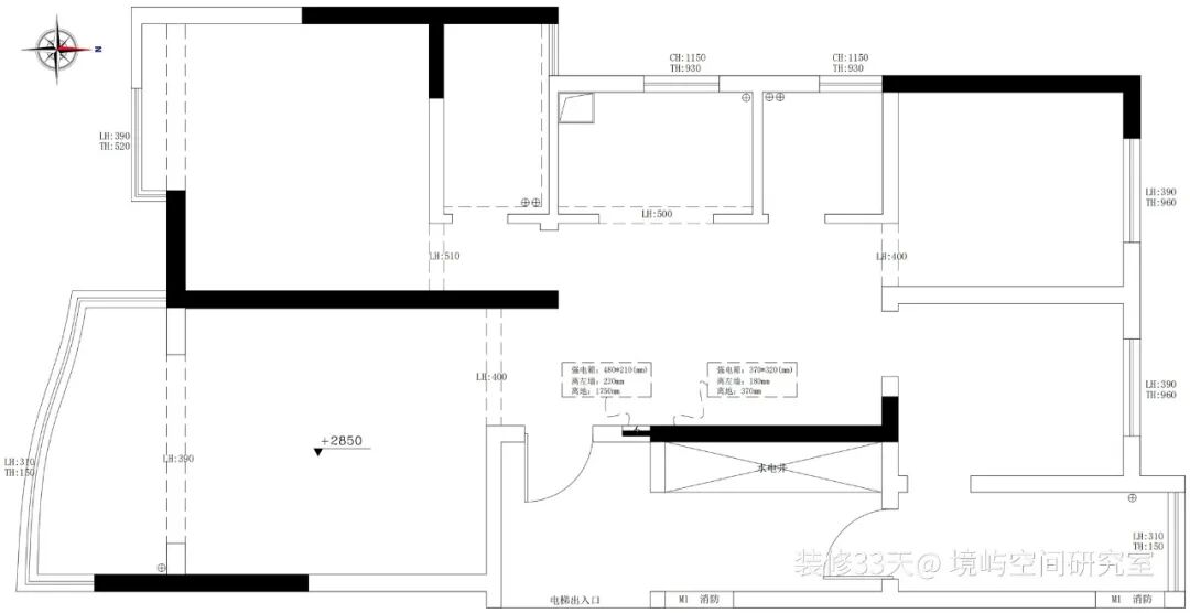
▲ 平面结构图
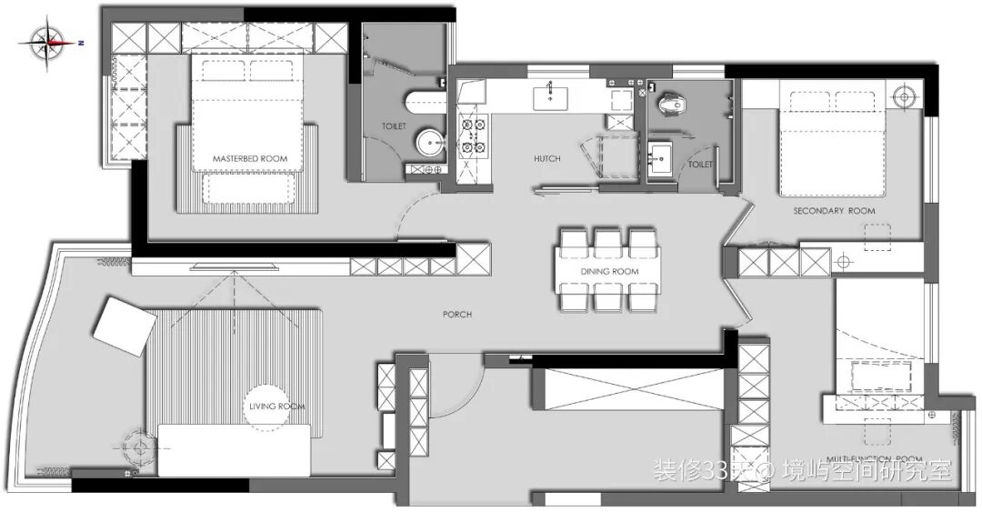
▲ 平面布置图
▲ 视频
▲ 入户,以电视背景连接的收纳柜体为端景,黑色嵌入木色,留空部分制造柜体与视觉的轻盈感
▲ 客厅,瓷砖地面搭配极简的无主灯顶面,纳入不规则阳台,拓展使用面积增加采光
▲ 艺术水泥漆做沙发背景,用金属材质制作陈列架,不同的材质传递着不同的时间质感,营造丰富的视觉感受
▲ 阳台的木栏栅和弧线落地灯增加空间的线条感
▲ 软装搭配随性自由,材质也是多选择布艺、皮质,在感官上定义自由舒适的基调,连贯的室内色彩、统一的风格以及错落有致的线条感,整体上提高居住的品质
▲ 电视背景是一组整面悬空高柜与抽屉设计,部分开放格摆放书籍,满足屋主阅读需求,嵌入式电视的设计提升墙面的整体性,同时空间对立面利用黑色与灰色明度差保证视觉上的拉升与张力
▲ 目光所及之处决定家的整体氛围,一缕嵌入式雾化壁炉的火焰,增加入户仪式感的同时也注入家的温度
▲ 餐厅顶将星空元素引入家中,宛如进入星辰大海,让就餐成为一场视觉、味觉、幻觉的探索体验,营造一个即封闭又庄重的用餐环境,餐厅采光比较弱,利用墙面的线形灯,提升空间亮度
▲ 餐厅顶面与次卧墙面材质上统一,形成视觉延伸感,也为了打破餐厅门洞过多的困扰,通过面与面相互链接空间让局促的餐厅看起来开阔宽敞
▲ 客卫,墙面木纹砖、地面水磨石砖,在选材上尽量与整体保持一致性,圆形镜柜呈现出动感多变的形态,与空间线性形成反差,提升活力,感官上提升mini卫生间视觉张力
▲ 次卧背景墙选用的灰色水泥岩板+木饰面,温和细节体验呼应空间整体气质
▲ 主卧,不需要复杂的装饰,仿佛归家休息的一种仪式感,同时利用床头墙面嵌入整排衣柜,收纳充足,干净利落
▲ 黑色柜体中辅以原木色的床头与置物功能,隐形暖光的加入营造氛围
▲ 主卫,整体风格与次卫保持一致,选择墙排龙头和圆柱型台盆的搭配,加长的镜柜满足更多的储物需求
文字编辑 | 深深
设计 | 境屿空间研究室(长沙)
联系方式:19118958584(微信同号)
后台回复「境屿」可以看更多作品
媒体转载请注明装修33天并保留设计师联系方式
欢迎业主、设计师、装修公司免费投稿照片
装修33天商务合作微信:king194316
松爷店铺掌柜微信:yejia1703
境屿空间其他作品推荐
实用装修指南
装修33天 🏡 实用装修指南
你每次点赞和转朋友圈,都是对我们的支持