▲ 建筑面积156平,造价70万(不含家电),项目坐标:湖南株洲,完工时间:2021年9月,本案屋主是位球迷,偶像是传奇人物科比,家里收藏了近60多双球鞋,以及科比的杂志和美国队球服,整个设计注入“曼巴”的印记
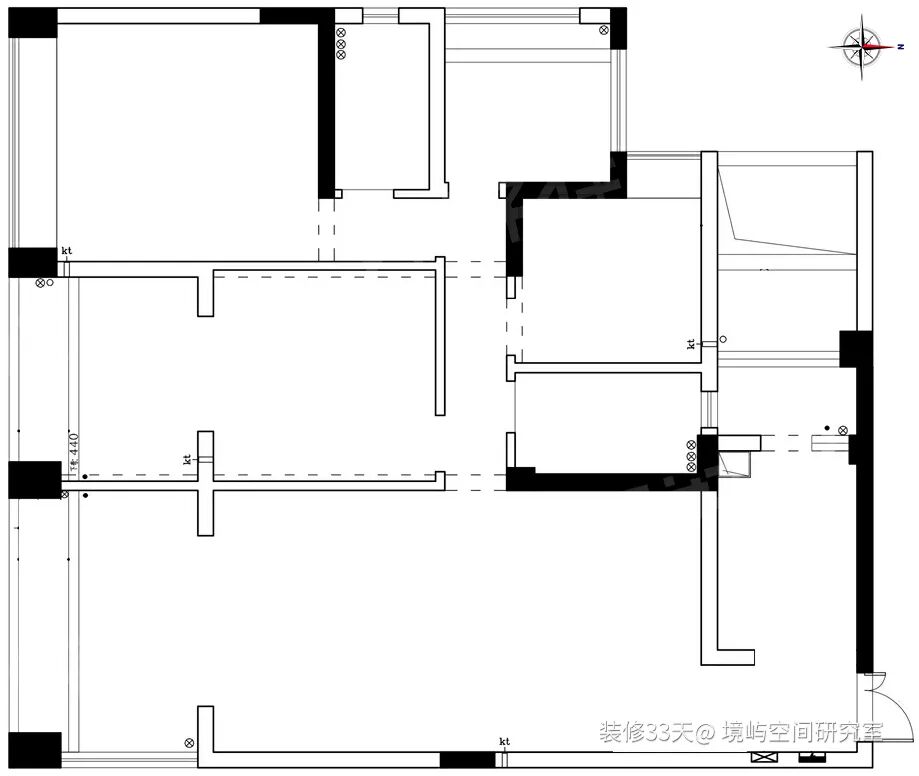
▲ 平面结构图
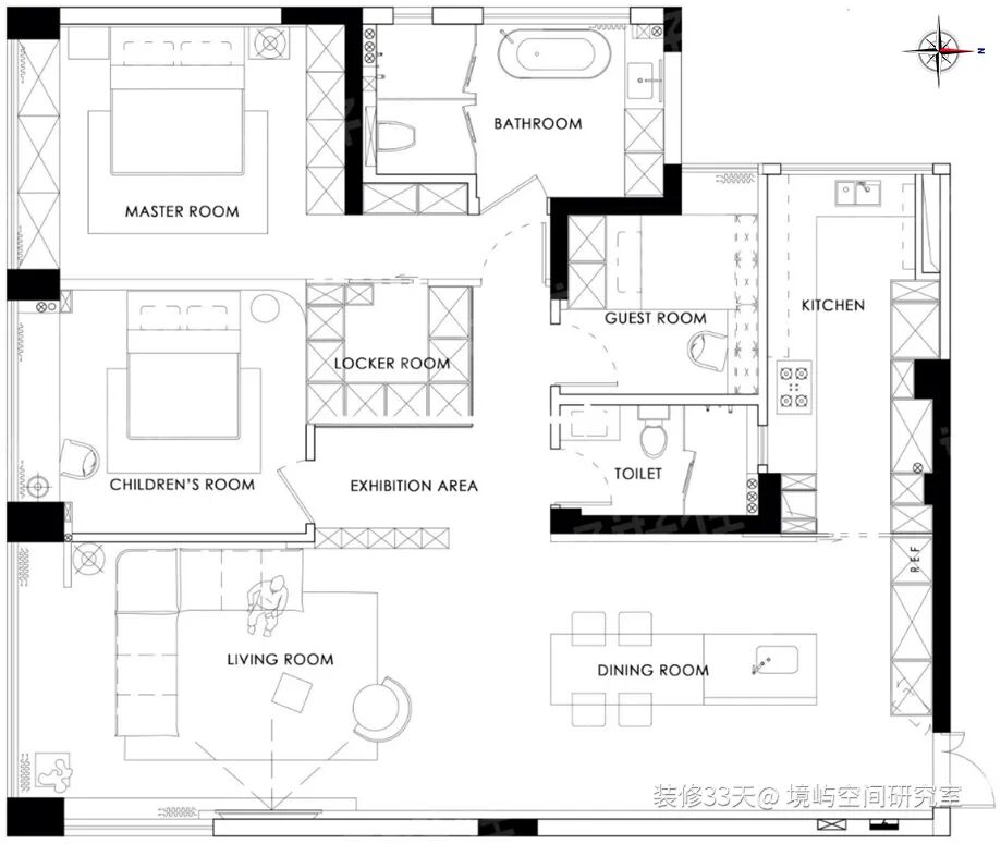
▲ 平面布置图
▲ 客厅,整体选择稳重素雅的浅色基调,富有自然肌理的微水泥质感与浅色木纹相结合,温润有力的彰显空间力量
▲ 干净清透的空间基础,以现代主义手法协调不同材质与色彩的对话与融合,彰显调性的同时也营造安逸静谧的居住氛围
▲ 阳光透过竖百叶形成理性的线状光影折射到客厅一角,温柔的捕捉动容的瞬间
▲ 黑白灰是电视背景的主要色调,空间中的木色让整个空间更温润
▲ 餐厅与客厅打造成LDK式一体化设计,通透敞亮,动线便捷,起居空间无主灯的设计,通过墙体内嵌线性灯及嵌入式筒灯、吊灯多种形式及层次的光影来营造空间氛围
▲ 餐桌结合西厨吧台,黑色餐边柜预留冰箱的位置,解放厨房空间
▲ 背景墙采用大量留白,极简的装饰通过线条与层次营造质感的空间,选择肌理感的微水泥提升空间质感
▲ 岛台置入水槽便于西厨及水吧区的洗切,岛台下方整合碗柜及烤箱,功能齐全
▲ 餐厅墙面挂着科比伦敦奥运会的主客场10号球衣,展示柜上摆着的都是科比的杂志、书籍和球鞋
▲ 科比logo的鞋柜装置,以及全新的科比系列球鞋,真的是把热爱装进家里
▲ 次卧空间刷成自然白,地板与客厅空间保持一致的浅色木纹砖,透过大面积窗景营造舒适自在的氛围
▲ 次卧床头一角
▲ 主卧注重品质的体验,睡眠区域无需过多装饰,在材质与色彩的搭配上,温馨的木色搭配白色床品,简洁舒适
▲ 借用次卧空间巧妙的构建一个U型衣帽间,同时将原本衣帽间和主卫空间整合,打造成酒店式套间体验
▲ 将原本主卫+衣帽间打通做成的一个大卫浴空间,超长台面整合洗衣烘干,打理家务十分便捷
▲ 在浴缸的后方有单独的马桶区与淋浴房
▲ 设计师-赵竞宇
文字编辑 | 深深
设计 | 境屿空间研究室(长沙)
联系方式:19118958584(微信同号)
后台回复「境屿」可以看更多作品
媒体转载请注明装修33天并保留设计师联系方式
欢迎业主、设计师、装修公司免费投稿照片
装修33天商务合作微信:king194316
松爷店铺掌柜微信:yejia1703
境屿空间其他作品推荐
实用装修指南
装修33天 🏡 实用装修指南
你每次点赞和转朋友圈,都是对我们的支持