Weixin ID qjwbdc
About Feature 房产买卖信息、导购、楼市咨询
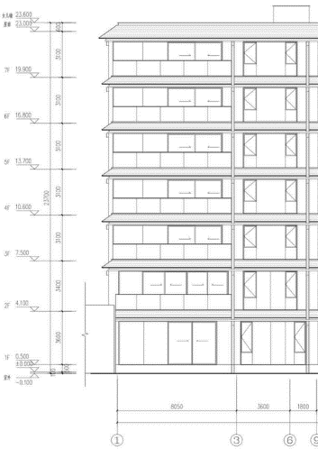
沿运河两幢高度下降
整体低密改善定位不变
不远处就是江南里
总价或将850万元起
孙晨
李毅恒
Scan to Follow