共12盘预售公示、登记,列表见文末↓
杭臻源有着融创品牌背书,与1号线下沙西站之间距离较近;整盘精装限价3.75万元/㎡,加推204套,主力户型105-142㎡,总价起步约320万元。
檀映里近邻5号线西文街站,石材干挂外立面;整盘精装均价4.7万元/㎡,收官套数为32套,主力户型130㎡,总价起步约519万元;
收官套数较少,极大概率是社保顶格局。
锦云里规划了纯低密产品,产品设计偏刚需;整盘精装限价2.138万元/㎡,加推244套,主力户型95-115㎡,总价起步约146万元(最小户型约76㎡)。
杭臻源
| PART 1 |
摇号信息
摇号房源:1号楼(1-26F)、3号楼(1-25F)
均价:精装限价约37500元/㎡,装修标准4000元/㎡
主力户型:高层约105㎡户型102套,128㎡户型50套,142㎡户型52套
无房户倾斜:30%比例,约62户
人才倾斜:15%比例,约30户
验资门槛:首套验资100万元,二套及全款验资180万元
登记时间:12.23-12.25
| PART 2 |
配套介绍
楼盘规划了6幢25-26F高层和1幢公租房7号楼;小区3号楼东北侧、4号楼西北侧为机动车出入口、人行出入口。
楼盘与1号线下沙西站之间距离约550m,与金沙天街之间距离约1km。
楼盘东侧和南侧为待规划用地,西侧为在建住宅湖上春风,西南侧紧邻金沙渠,北侧靠近学林街及下沙幸福雅苑。
| PART 3 |
楼幢&户型分析
楼盘南侧建有高压塔及高压线。
| 楼幢分析 |
1号楼 →
北侧设有消防登高场地;
3号楼 →
北侧设有消防登高场地、垃圾收集点。
| 户型分析 |
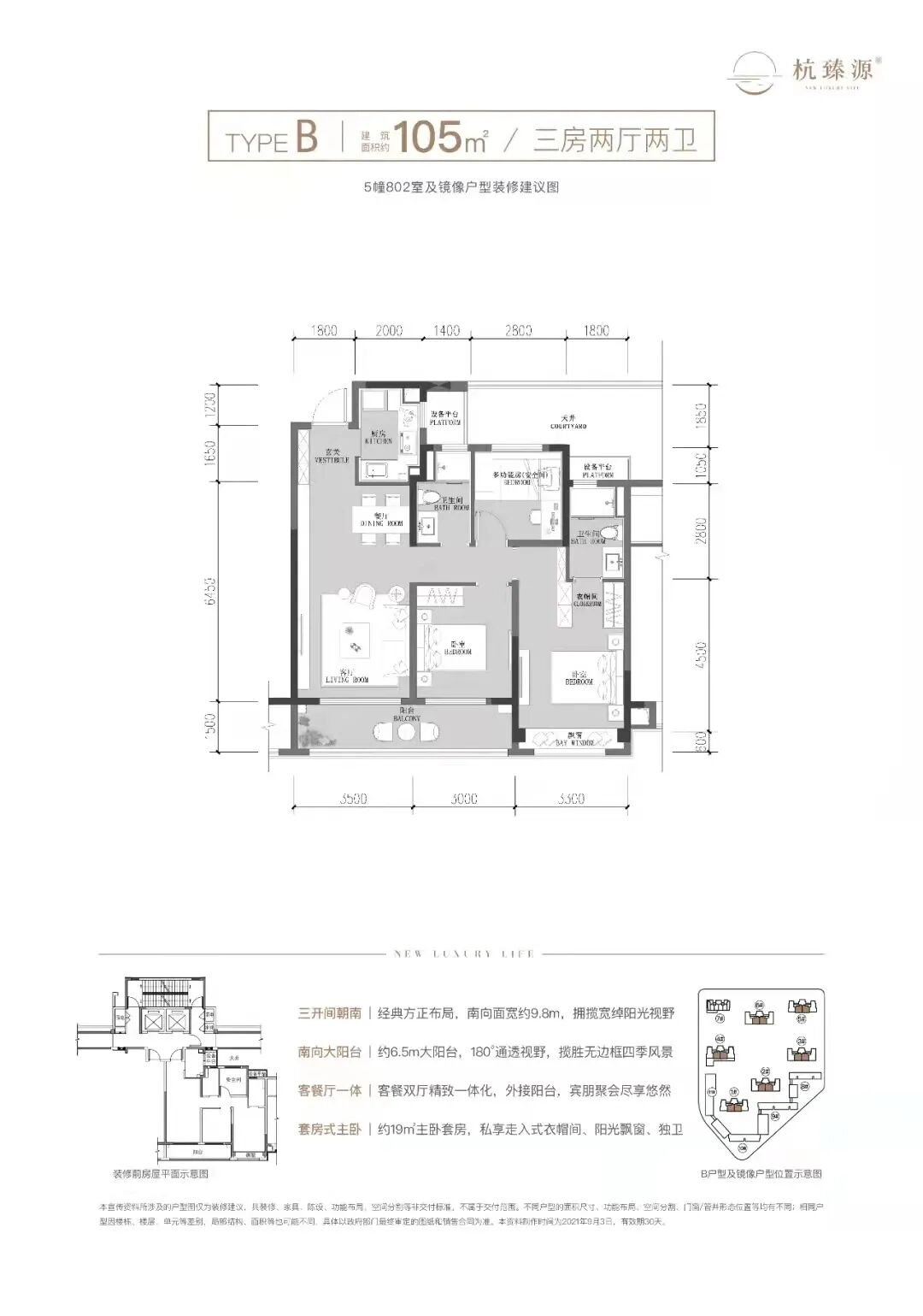
高层约105㎡三房两卫户型 →
位置:1、3号楼中间套
套数:102套
价格:319.86-406.19万元
优点:三开间朝南;南向待大面宽阳台;U型厨房;
缺点:南北通透性一般。
高层约128㎡四房两卫户型 →
位置:1号楼东西边套
套数:52套
价格:408.98-515.18万元
优点:三开间三房朝南;U型厨房;南向带大面宽阳台;
缺点:无明显缺点。
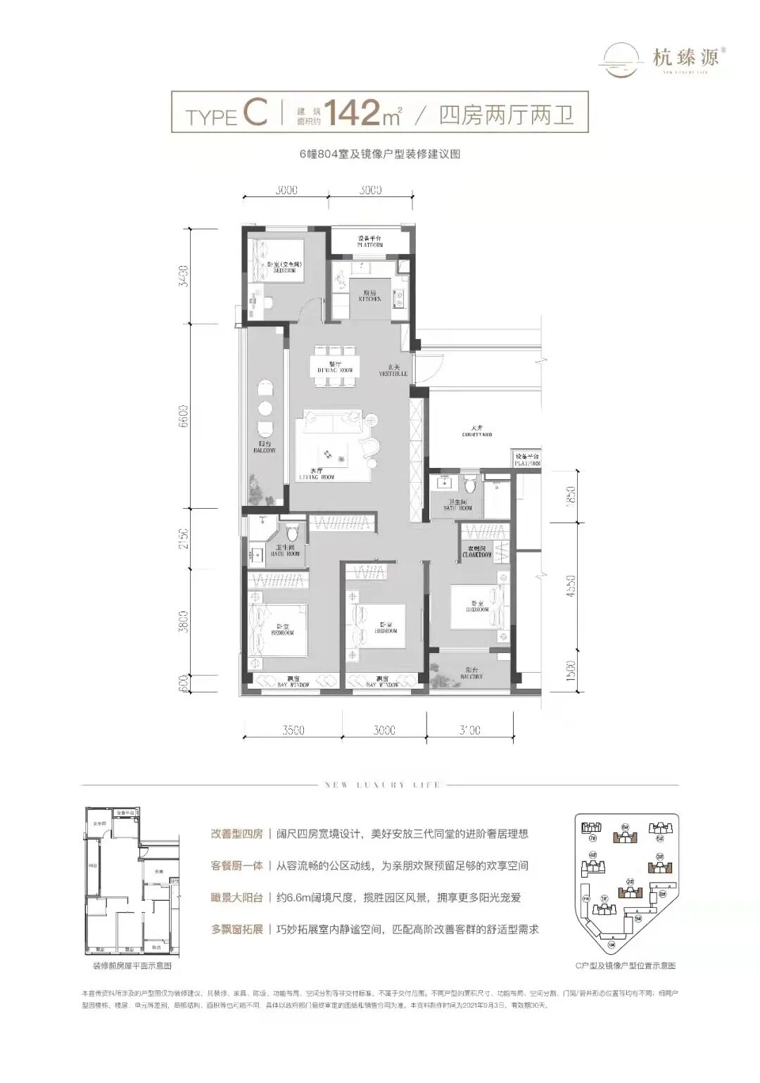
高层约142㎡四房两卫户型 →
位置:3号楼东西边套
套数:50套
价格:447.1-566.71万元
优点:三开间三房朝南;U型厨房;双阳台设计;东西向带大面宽阳台;
缺点:无明显缺点。
| PART 4 |
一房一价、噪声表、选房建议
| 高层约105㎡、128㎡、142㎡户型选房建议 | →
1. 所处位置:约105㎡为1、3号楼中间套,约128㎡为1号楼东西边套,约142㎡为3号楼东西边套;
2. 采光因素:南侧采光影响较小;
3. 噪声因素:3号楼东侧、1号楼西侧有一定道路噪声影响;
4. 户型因素:通透性上边套优于中间套;
5. 价格因素:1号楼总层数为26F,总价最高在次顶楼,往下至16F每层之间价差约5000元,23、24F价格一致;18F与19F之间价差约10-19万元;12、13、14F价格一致,与15F之间价差约4-5万元;再往下价差变明显;
3号楼总层数为25F,总价最高在次顶楼,往下至15F每层之间价差约5000元,22、23F价格一致;18F与19F之间价差约10-15万元;12、13、14F价格一致,与15F之间价差约5-7万元;再往下价差变明显。
在楼幢选择上,建议优选3号楼,其次选择1号楼;南侧采光影响相对较小,考虑控制总价,可优选中低楼层;
东边套高于西边套约8-10万元,考虑到道路噪声影响和低总价,优选西边套,其中3号楼西侧还有园区景观优势;
顶楼价格介意4、5F之间,从高楼层采光视野考虑,建议优先于4F前选择。
檀映里
| PART 1 |
摇号信息
摇号房源:5号楼(2-17F)
均价:高层精装47000元/㎡,装修标准4500元/㎡
主力户型:高层约130㎡户型32套
无房户倾斜:30%比例,约10户
人才倾斜:15%比例,约4户
验资门槛:冻结资金首套160万,其他320万(参考上期冻资额)
登记时间:预计12.26-12.28
| PART 2 |
配套介绍
| PART 3 |
楼幢&户型分析
| 楼幢分析 |
5号楼 →
东侧靠近商业街区。
| 户型分析 |
高层约130㎡四房两卫户型 →
位置:5号楼东西边套
套数:32套
价格:519.34-655.43万元
优点:四开间三房朝南;U型厨房;南向带大面宽阳台;
缺点:无明显缺点。
| PART 4 |
一房一价、噪声表、选房建议
| 约130㎡户型选房建议 | →
1. 所处位置:约130㎡为5号楼东西边套;
2. 采光因素:南侧低楼层有一定采光影响;
3. 噪声因素:东侧有一定商业噪声影响;
4. 户型因素:东西边套户型一致;
5. 价格因素:总层数为17F,总价最高在次顶楼,往下至14F以约6-7万元的价格递减,13、14F价格一致,再往下至7F以约2-3万元的价格递减,再往下以约4-9万元的价格不等减少。
南侧采光影响较小,7-14F之间价差较小,可做优选,从上往下选;其次选择14F以上,再次选择7F以下;
西边套高于东边套约16-19万元,不介意东侧商业街区的优选东边套;顶楼价格接近或相当于4F,偏好高楼层采光、视野的可优选于4F前选择顶楼。
锦云里
| PART 1 |
摇号信息
摇号房源:10、15号楼(2-11F)、11、12、14号楼(1-11F)
均价:精装限价21380元/㎡,装修标准3000元/㎡
主力户型:约95户型76套,108㎡户型72套,115㎡户型62套,特殊户型93㎡3套,105㎡3套,76㎡2套,163㎡6套
无房户倾斜:50%比例,约122户
人才倾斜:10%比例,约24户
验资门槛:冻结资金首套60万,其他120万(参考上期冻资额)
登记时间:预计12.26-12.28
| PART 2 |
配套介绍
| PART 3 |
楼幢&户型分析
| 楼幢分析 |
10号楼 →
西北侧设有非机动车库出入口;
北侧为小区出入口,设有车库出入口;
东侧靠近规划道路;
南侧设有消防登高场地;
11号楼 →
南侧设有消防登高场地;
12号楼 →
南侧为小区出入口,设有车库出入口、消防登高场地;
北侧设有开闭所;
西侧靠近道路;
14号楼 →
北侧设有消防登高场地、非机动车库出入口;
15号楼 →
西侧靠近道路;
南侧设有开闭所;
北侧设有消防登高场地。
| 户型分析 |
约95㎡三房两卫户型 →
位置:10号楼中间套、东边套、12、15号楼中间套、西边套
套数:76套
价格:193.51-214.37万元
优点:三开间朝南;南向带大面宽阳台;U型厨房;
缺点:无明显缺点。
约108㎡三房两卫户型 →
位置:10号楼西边套、11、14号楼东西边套、12、15号楼东边套
套数:72套
价格:208.95-244.33万元
优点:U型厨房;南向带大面宽阳台;小储藏间设计;
缺点:无明显缺点。
约115㎡四房两卫户型 →
位置:11、14号楼中间套
套数:62套
价格:224.52-258.69万元
优点:类四叶草户型;三开间朝南;南向带大面宽阳台;U型厨房;
缺点:无明显缺点。
| PART 4 |
一房一价、噪声表、日照表、选房建议
| 小高层约95㎡、108㎡、115㎡户型选房建议 | →
1. 所处位置:约95㎡为10号楼中间套、东边套、12、15号楼中间套、西边套,约108㎡为10号楼西边套、11、14号楼东西边套、12、15号楼东边套,约115㎡为11、14号楼中间套;
2. 采光因素:低楼层南侧采光影响较小;
3. 噪声因素:10号楼东侧、12、15号楼西侧有一定道路噪声影响;
4. 户型因素:通透性上边套优于中间套;
5. 价格因素:10、11、14号楼总层数为11F,除特殊户型外,总价最高在次顶楼10F,往下两层之间价差约1-2万元,特殊数字8F有3-4万元的价差;
12、15号楼总层数为11F,除特殊户型外,总价最高在次顶楼9F,往下两层之间价差约1-3万元。
在楼幢选择上,11、14号楼所处位置最佳,做优选;其次选择10号楼西侧房源和12、15号楼东侧房源,再次选择10号楼东侧房源和12、15号楼西侧房源;
同时上下楼层价差较大,在南侧采光影响较小的情况下,可从3F往上选;
11、14号楼东边套高于西边套约4-5万元,控制总价建议优选西边套;顶楼价格相当于2F,偏好高楼层采光的建议优先于3F前选择。
| 今日公示楼盘 |
| 今日登记楼盘 |
-END-
文/阿寻 编辑/阿寻
本文相关内容不排除因政府相关规划、规定及开发商未能控制的原因发生变化。以政府部门最终批准文件图则、(商品房买卖合同)及附件等协议为准。开发商保留对宣传资料修改的权利,敬请留意最新资料。本文面积如无特殊说明均为建筑面积。
房叔说 | |
房叔选房 |
PS:更多往期回顾可进入房叔公众号后台,点击、右上角搜索键(放大镜),搜索楼盘名,或相关词条
点个在看,让房叔更好看。