今年冬至祭扫高峰集中在12月17、18、19、20、21、22日6天。
通通为大家整理了本市各区冬至祭扫期间部分墓园周边交通和道路信息,供大家出行参考。
长桥山庄
沪南公路改建第二阶段工程(闸航公路—G1503)正处于施工作业状态。受此影响,自驾通过沪芦高速前往长桥山庄墓区的市民群众,应根据现场民警(辅警)引导,以“回形针”方式迂回抵达。
外环高速→沪芦高速→沪南立交桥→右转进入沪南公路西向东行驶,至前方沪南/杨辉、沪南/众安,或沪南/申江南路口顺车掉头,沿沪南公路东向西前行至沪南/笋金路口后,进入马蹄形的笋金路。
山庄内设有550个小客车停车位和30个大客车停车位。
松鹤园
平峰时段嘉松北路沿线1号、2号、3号停车场可让先期祭扫车辆停放,嘉松伊宁路口视情控制祭扫车辆进入伊宁路后依次停放于12号、13号停车场。
高峰时段嘉松北路(伊宁-园国东路)段沿线停车场及路段停车,趋有饱和状态时,即采取改道分流措施。
针对墓园内场停车泊位供给不足的实际情况,今年冬至继续开辟外围临时停车场(临时租用赛车场3号、4号停车场;2号停车场备用)。
公交、大客车线路:从上海方向至宝安路进墓园的公交专线一律从宝安安晓路口进—安晓路—伊宁路—东环路—中心广场环岛外圈东北侧(可下客)—沿外环西侧通道—墓园9号停车场西北角。
社会大客车一律从宝安安晓路口进—安晓路—伊宁路—东环路—中心广场环岛外圈东南侧(可下客)—墓园7号停车场。
长安墓园
高峰时段嘉安公路自百安路至墨玉北路段实行交通管制,除大型客车外禁止其它过境社会车辆经过此路段。
小客车以园国/园民路口为出入口,东侧由嘉安路东向西行驶至百安公路左转弯,至园国路右转,由园民路进入停车场;西侧由园国路西向东行驶至园民路进入停车场。
青竹园
嘉松北路北向南方向:
高峰时段沪宜公路恒飞路路口对沪宜公路北向南方向货运车进行分流,由恒飞路进入百安公路;嘉松北路外青松路口对嘉松北路北向南方向货运车进行分流,由外青松公路-外钱公路-百安公路行驶。
嘉松北路南向北方向:
高峰时段对恒谐路口采取临时封闭等措施;嘉松北路恒永路口对嘉松北路南向北货运车进行分流,由恒永路进入百安公路。
高峰时段,对外冈路实施西向东单向行驶(公交车、特种车辆除外)。
白鹤憩园
高峰时段扫墓车辆从沪宜公路翔乐路路口进,沿翔乐路至墓园停车场,出墓园车辆沿翔乐路至惠平路出。
市区及虹桥地区:嘉闵高架真南路下匝道—沪宜翔江路口顺车掉头—沪宜公路—翔乐路。
望仙安息园
园区内停车场
扫墓车辆沿墨玉北路—汇旺路—外钱路进入墓园各停车场停放,出墓园车辆沿外钱路北向南行驶至望安路、墨玉北路、百安路。
高峰时段墨玉北路外钱路口、宝钱公路外钱路口、外钱路望安路口禁止货运、过境车辆进入(当地居民、沿线单位车辆除外)。
华亭憩园
墓园对面停车场
高峰时段浏翔公路华旺路控制大型货运车由南向北行驶,指挥大客车从华旺路-霜竹路进入大客车停车场。
仙乐憩园
宝钱公路南面停车场
高峰时段将采取宝钱公路南北各一根车道单侧停车(停车场饱和时)。
宝钱公路沪太路口禁止大型货车向西行驶;宝钱公路浏翔路口禁止货车向东行驶。
常青墓园
园区停车场
严禁在宝嘉路两侧停车
天马山公墓
地址:上海市松江区佘山镇沈砖公路3555号
天马塔园
地址:上海市松江区佘山镇沈砖公路3555号
▲天马山公墓及天马塔院停车场示意图
注:龙泉山路道路两侧将视情开放临时停车
具体开放时间以临时停车指示牌为准
华夏公墓
地址:上海市松江区小昆山镇永昆公路482号
▲华夏公墓停车场示意图
浦南陵园
注:中二路、中四公路道路两侧将视情开放临时停车,具体开放时间以临时停车指示牌为准
本区部分公墓冬至祭扫
轨交短驳车安排表
福寿园
地址:
地址:上海市青浦区外青松公路7270弄600号
停车信息:
大巴车停放于专用停车场,小客车停至福寿园内部停车场
徐泾西园
地址:
上海市青浦区徐泾镇诸陆西路183号
停车信息:
停放于西园对面金博石材停车场
卫家角息园
地址:
上海市青浦区谢卫路598号
停车信息:
停放于诸光路P17停车场
至尊园/静园
地址:
上海市青浦区朱枫公路1002号
停车信息:
停放于至尊园停车场,饱和后将视情由民警引导车流至康业路、康工路停车
福泉山留园
地址:
上海市青浦区郏一村215号
停车信息:
停放于留园内部停车场
滨海古园
车辆进墓区:
线路一:G1503(S2)-新四平公路-五四公路-五四支路-古园大道-墓区
线路二:平庄路-瓦洪公路(或洪朱路)-五四公路-古园大道-墓区
车辆出墓区:
线路一:海古路(或园外路)-场中路-五四公路-新四平公路-市区
线路二:仰古路-随塘河路-瓦洪公路-G1503-市区
注:新四平公路五四公路以南段、场中路、五四支路、随塘河路均实施单向通行。
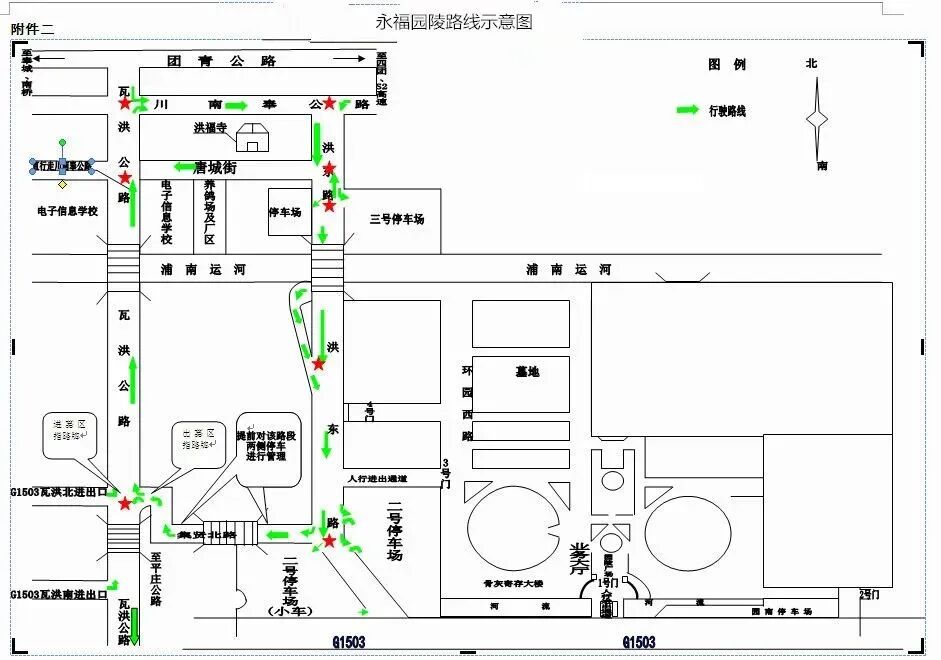
永福园陵
车辆进墓区:
线路一:G1503-瓦洪公路-川南奉-洪东路-1、2、3号停车场
线路二:川南奉公路-洪东路-1、2、3号停车场
车辆出墓区:
线路一:洪东路-川南奉公路
线路二:洪东路-集贤北路(向西)-瓦洪公路
线路三:洪东路-唐城街-瓦洪公路-川南奉公路
注:
环园路(环园南路、环园北路、环园西路)逆时针单向通行;
环园路两侧严禁停放车辆。
海湾寝园
车辆进墓区:
线路一:S4海湾出口-海湾路-海马路-海乐路-海湾寝园正门(小型车线路)
线路二:S4海湾出口-海湾路-海马路-海湾寝园北门(小型车线路)
线路三:S4海湾出口-海湾路-大巴士停车场下客-步行至海湾寝园正门或北门(大巴士线路)
车辆出墓区:
线路一:金汇塘路-海湾路-S4
线路二:海乐路-海鸥路-奉炮路-奉柘公路-浦星公路-G1503
线路三:海马路-海乐路(北段)、南海支路-海思路-南海公路
注:海乐路(北段)、海鸥路实施单侧停车。海马路、海乐路、金汇塘路实施单向通行。
值班编辑:丁昊杰
往期推荐
警情通报
上半场喝酒看球
下半场醉驾被抓