The following article is from 非解构 Author 海阔天空
建筑与结构语汇的非常解释
因微信公众号调整了推送规则,如果您想继续接收本公众号的内容,请将“建筑结构”公众号设为星标,并多点文尾的“在看”和“赞”。
星标设置:进入公众号主页,点击右上角「. . .」,点击「设为星标」,公众号名旁就会出现黄色五角星(Android 和 iOS 用户操作相同)。
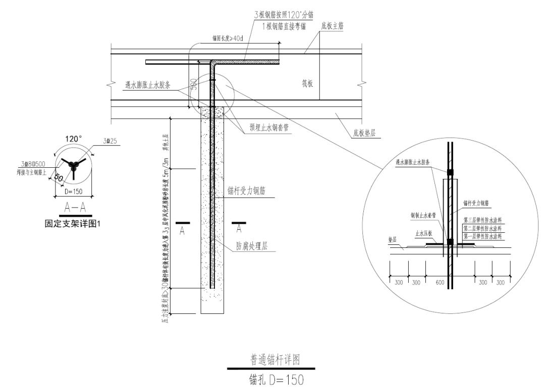
抗浮锚杆,是建筑工程地下结构抗浮措施的一种。常用于地基承载力比较高的基础的抗拔工况,此类基础计算承压工况时采用天然基础,计算抗浮工况时采用抗浮锚杆。其施工工艺如下:锚杆制作与基本试验→锚杆定位放线→ 钻机就位→接钻杆→校正孔位→调整角度→打开风源钻孔→反复升降钻杆→清洗(风力清渣)→钻至设计深度→锚杆安装→压力灌浆→二次补浆→养护→锚杆试验验收。混凝土抗拔锚杆技术相比于传统的抗浮措施,具有承载力能力高、质量可靠、工艺简单、综合造价低、施工速度快的显著优点。
《建筑工程抗浮技术标准》JGJ476-2019中对于锚杆的计算方法有详细的介绍,《建筑地基基础设计规范》GB50007---2011中“岩石锚杆基础”部分以及《建筑边坡工程技术规范》GB50330-2013有关锚杆的部分可以参考使用,不过最好只用于估算,锚杆抗拔承载力特征值应通过现场试验确定,有一些锚杆构造做法可以参考。
温馨提示
1)文中部分图片来自于网络,版权归原作者及原出处所有。如涉侵权或原版权所有者不同意转载,请及时联系我们,以便立即删除。
近期关注
直播平台
学堂·订阅·查新
在线教育课程
欢迎关注微博及短视频平台
联系我们
投稿/转载:QQ:80327128;Tel:01057369042/8785
招商/合作:QQ:2099526103;Tel:01057369049/8783
订阅/发行:QQ:605811676;Tel:010-57368777
↓↓↓点击“阅读原文”免费注册“结构·云学堂”,享受海量学习资源。
你在看我吗?
Go to "Discover" > "Top Stories" > "Wow"