中国博览会会展综合体商业中心跨越地铁车站而建,结构体系采用钢框架支撑筒体,支撑跨两层布置。主体结构通过沿环形布置的转换桁架传递竖向荷载,最大转换桁架跨度达117m。立面支撑根据其受力特点,分别采用常规支撑、屈曲约束支撑以及屈曲约束钢板剪力墙三种形式。该项目为世界上面积最大的建筑单体和会展综合体,目前已竣工。
1 工程概况
中国博览会会展综合体项目北块(简称中博会)位于上海市西部(图1),总建筑面积约147万m2,将成为世界上规模最大、最具竞争力的国际一流会展综合体。商业中心E1单体位于中博会的中心区域,主要功能为商业、餐饮和办公。地下1层,地上7层,总建筑面积约11.1万m2,建筑高度43m。建筑平面呈环形,内径54.5m,外径83m,中心区域为圆形露天广场。径向轴网将圆环分为44份,轴网间距8.2°(局部8°)。外环柱间距约12m,内环柱间距约8m,径向柱距9.5m。典型建筑剖面和平面图见图2。
图1 建筑效果图
(a)建筑剖面图
(b)典型建筑平面图
图2 建筑剖面图及典型建筑平面图
E1坐落于地铁二号线终点站徐泾东路站上方,且首层有东西向和南北向通道贯通,上部结构需转换。该车站为既有线路终点站,线路为东西走向,地下设备用房面积大,南北向长度达到78m(图3,虚线部分为下方地铁通道)。出于地铁保护需要,结构转换柱离地铁结构至少3m以上距离。因此,东、西两侧跨线转换跨度大,最大转换跨度为117m,南、北两侧通道转换跨度相对较小,转换跨度约36m,转换结构沿建筑内、外立面布置。转换区域总面积达到了建筑平面面积的60%。
图3 E1平面概况
由于转换结构的跨度大,转换结构以上的楼层较多,故采用钢结构以减小结构自重,同时降低在地铁上方施工的难度。结构的竖向力体系为侧立面钢桁架与楼面钢板组合楼板形成的箱形曲梁和框架支撑筒形成的支承结构;结构的抗侧力体系为框架支撑筒和径向钢框架形成的双重体系(图4)。施工现场照片见图5。
(a)结构模型
(b)立面钢桁架与楼面钢板组合楼板
(c)钢框架支撑筒
(d)径向钢框架
图4 结构竖向力体系
图5 施工现场照片
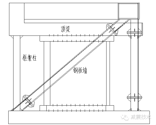
内、外圈支撑筒立面展开图见图6。支撑杆件跨2层连续布置,斜杆倾斜角度为37~62°。内圈斜撑与建筑门洞矛盾处设置钢板墙,根据受力大小,钢板厚度取20~40mm,钢板墙位于建筑造型之后,不影响建筑立面效果。
(a)外圈立面展开图
(b)内圈立面展开图
(c)斜杆跨层布置
(d)钢板墙
图6 钢框架支撑筒立面展开图
2 减震设计
2.1 屈曲约束支撑设计
为改善结构的延性,提高地震下的楼层耗能能力,并保护主要的转换构件发生破坏,选取部分支撑采用了耗能型的屈曲约束支撑(图7,简称BRB)。该部分支撑在竖向荷载作用下受力较小,主要承担地震作用,该部分支撑屈服可不对主体结构的竖向承载能力产生不利影响。
图7 外立面BRB支撑布置
屈曲约束支撑按照小震弹性设计,在小震组合下,BRB的应力比基本接近1.0,目的是使BRB在中震下能先于转换构件进入屈服,BRB滞回曲线稳定、饱满,具有正的增量刚度(图8)。其屈服承载力、最大压力、最大拉力均不大于设计极限承载力的1.1倍;最后一级变形第3次循环的承载力未出现下降;支撑试件的抗震性能满足要求。
图8 BRB支撑轴向加载滞回曲线
2.2 屈曲约束钢板墙设计
E1内环立面采用交叉斜撑布置后,影响了建筑门洞的布置。为避开门洞,在内环立面的梁柱框架区隔内采用钢板墙代替斜撑,如图9所示。钢板墙位于2~7层的6个楼层范围内,平面位置共计8处,分别以W1~W8进行编号。
图9 内环立面的钢板墙布置
钢板墙以周边的梁、柱框架为支承边界,为提高其稳定性,沿门洞周边设置支承边界。支承边界处的梁、柱构件采用H型截面。钢板墙的典型区隔尺寸为2m×2.25m和4m×2.8m。
非转换区的钢板墙(编号为W1/W2/W6~W8)采用了屈曲约束钢板墙(图10),其中W2的芯材钢板厚度为20mm,W7与W8的芯材钢板厚度为16mm,W1与W6的芯材钢板厚度为6mm,芯材钢板材性均为Q345B。
图10 典型钢屈曲约束板墙的构造
本工程采用的屈曲约束钢板墙的芯材钢板形式见图11,墙板两侧有局部削弱,仅在上下端部与边框连接。该屈曲约束钢板一般不承受竖向荷载作用,仅承担单一水平方向的剪力。
(a)芯材钢板布置
(b)钢板墙芯板屈服线示意
图11 屈曲约束钢板剪力墙
委托同济大学对本工程的屈曲约束钢板剪力墙(BRW)进行性能试验。试验加载示意见图12。
图12 屈曲约束钢板墙试验加载照片及加载示意
试验整个过程中,钢板墙角部除了有部分混凝土碎屑之外,没有出现撕裂或局部失稳现象,混凝土板没有开裂,说明钢板墙的连接及面外约束是合理且可靠的。试件按1/100钢板墙高度的变形往复1次后,其滞回曲线稳定、饱满,具有正的增量刚度(图13)。试件的屈服承载力为设计屈服承载力的0.93倍;没有出现局部失稳、滑移或撕裂情况;屈曲约束钢板剪力墙试件的性能满足设计要求。
图13 屈曲约束钢板墙的荷载-位移曲线
3 结语
限于地铁转换的原因,工程主要为竖向荷载控制。由于本工程结构的抗侧刚度及承载力均较大,采用了屈曲约束支撑及屈曲约束钢板墙,通过地震作用下的屈服耗能保护主体结构,改善了结构的抗震延性。
更多内容详见2014年《减震技术》杂志第5期文章:《中国博览会会展综合体商业中心结构减震设计》;作者:包联进,黄永强,高双喜,周建龙;单位:华东建筑设计研究总院。
以上内容由《减震技术》杂志编辑整理,欢迎分享到朋友圈。未经作者及本刊授权,谢绝官方转载,违者必究。
长按识别下方二维码
关注《建筑结构》官方微信
官网:www.buildingstructure.cn
合作/投稿/转载请加QQ:
455323924或80327128
《建筑结构》杂志社新推出减震技术微信
长按识别下方二维码关注
点击下方“阅读原文”,可查看微信历史信息总目录,并可通过关键词搜索你喜欢的内容。