平潭位于福建省东部,金井湾片区是平潭实验区开发建设的先行启动区,已经成为一座初具规模的新城。面对飞速发展的城市,如何更好地塑造城市公共空间,提升市民运动生活品质,这是这座城市新城需要解决的问题。在金井湾营运中心东北侧建设的市民运动中心,功能上有效补齐了金井新城的运动、健身、体育设施等配套短板,满足周边市民多样化的生活需求,提供更加舒适便利的休闲运动场所,以自身的活力带动周边,释放出这座新城的活力。
△总体鸟瞰
项目位于金井湾营运中心东北侧二期地块,东侧紧邻牛寨山,南至顺意路。总用地面积57783平方米,基地长约600米,最宽处约180米,最窄处仅40米左右,整体呈不规则带状地形。由于场地南北跨度大、北窄南宽的特性,设计以此出发,将场地分为南北两大区块:其中北区设置市民运动中心,南区结合营运中心4#楼改建酒店设置会议中心。
整体建筑群以舒展的横向“方盒子”为基本体量沿场地布置,由北至南逐渐放大建筑体量,结合室外庭院空间,最终错落有致的散布于场地之中形成聚落。场地内布置的建筑、广场、庭院自然融合成一体,与当地石厝建筑聚落相呼应的布局,使牛寨山的自然环境与城市之间建立了一个适宜的关系。在充分尊重环境的同时,也在自然的山体和城市之间建构了具有时代感和地域性的城市公共空间。
△总平面图
位于城市中轴线端头,整体布局规整并延续新城规划肌理,总体沿轴线对称布置
各区块空间组织高效,流线清晰,且尤为注重对自然光的引入,以及内部各种功能使用状态的相对独立性。由北至南依次布置了各类运动场馆、市民活动大厅、政务展览馆、宴会大厅及其配套辅助用房等,各种功能相互叠加融合,合理有序地分布于各个建筑单体内,结合多个室外庭院空间营造出丰富多变的空间体验。
△功能布局
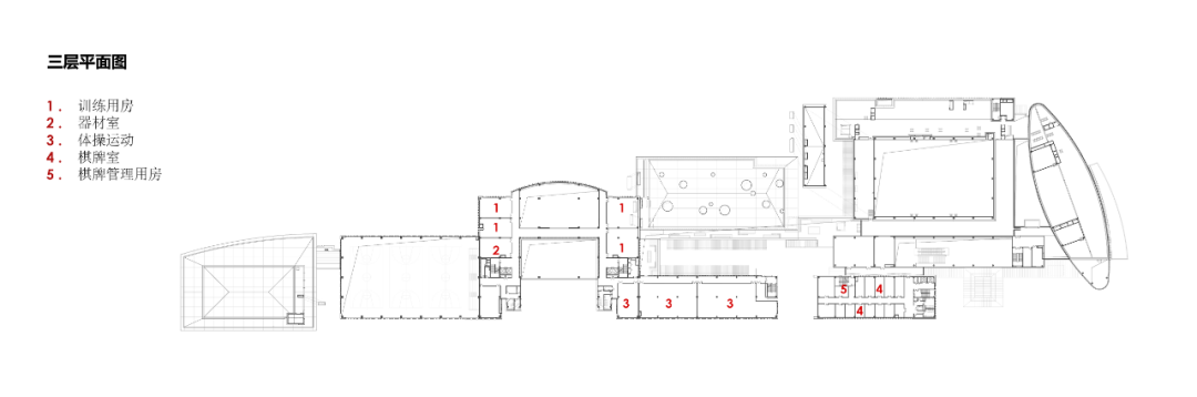
市民活动大厅是建筑的核心空间,自然光线由屋顶天窗透入,使得四层通高的大厅空间更为通透。各主要空间围绕大厅设置,布局清晰,导向性强,可以直达网球馆、篮球馆、羽毛球馆、乒乓球室、青少年极限运动营地、训练用房、体操室。政务陈列馆位于四层,是整个建筑的最高处,在东西两侧分别设有空中花园,丰富了内部空间,在观展之余市民还能眺望牛寨山以及城市风光。
△网球馆室内
△篮球馆室内
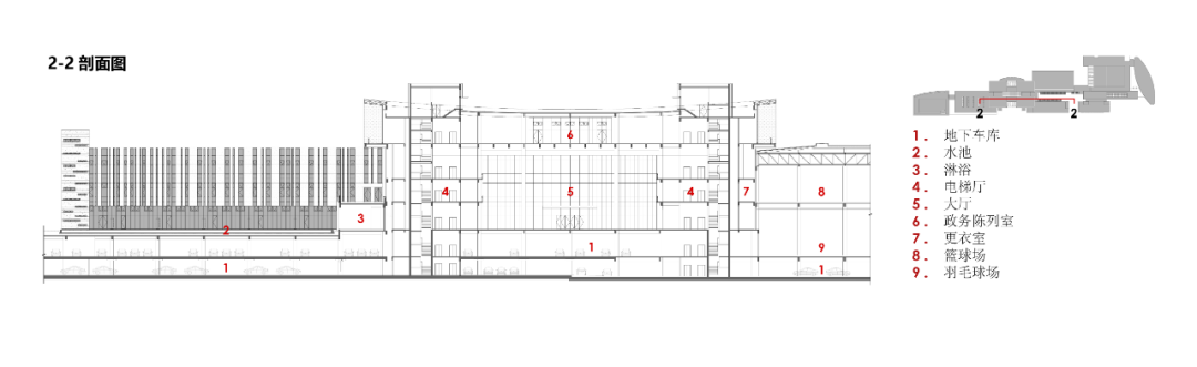
羽毛球馆和篮球馆上下叠置,其中羽毛球馆位于地下一层,充分利用了地下空间,结合下沉庭院设置户外攀岩、儿童游乐设置等功能,为该空间增添活力。
△室外楼梯
大厅往南是市民健身运动馆和游泳馆,两馆平行布置,中间利用室外景观庭院连接,利用枯山水景观以及散置的碎石、山形的片石、丰富的乔灌木等抽象写意的勾画出平潭海岛一岛多礁的景观特色。游泳馆南侧大面积玻璃幕墙使室内空间感受更为通透,穿过10米高的檐廊便来到游泳馆室外庭院,庭院内还有一个露天戏水池,作为对室内泳池的互补,丰富市民运动体验与同年龄层的需求。
△游泳馆圆形采光天窗使得室内空间更加灵动
场地南侧用地进深相对较大,且距离平潭商务营运中心配套酒店较近,便将酒店会议中心的功能设置与此,靠近酒店处设置独立的入口。一层通过大厅连接规模不同的会议室和餐厅,大厅最北侧是通向游泳馆的室内廊道,为会议中心到游泳馆提供了便捷的路径。二层有整个建筑中最大的空间-千人宴会厅,大厅面积约1900平方米,层高11米。宴会厅南侧餐厅室外的景观广场,是一个集婚礼草坪、户外小剧场、阳光草坪,休闲外摆等于一体的多功能平台。
△会议中心婚礼草坪
配套酒店由商务营运中心4#办公楼改造而来,现在是一家超高层豪华酒店。通过二层玻璃连廊与会议中心主体建筑相联。酒店客房位于十七层至三十二层,共312个房间。首层设置酒店大堂及大堂吧,二层餐厅区域含一个全日餐厅以及8个豪华包间;三十二层接待中心内设行政酒廊、中餐包间、茶吧、酒吧、贵宾接待中心等功能。酒店设计定位于满足政务接待、商旅住宿、会议会展住宿需要,以及接待国际国内要客的功能,提升区域招商引资竞争力。
△行政酒廊
总体建筑体量经由一系列不同体块得以消解,使其与周边其它建筑的尺度更为相宜。几个主要功能活动体块形式分明,大小各异,在牛寨山与城市之间共同塑造出一个鲜明的建筑形象。从外部看,各大功能活动体块均得以鲜明呈现。
△市民运动中心东南侧鸟瞰
多层次材料的运用呈现出清晰的空间组织结构,并赋予大体量建筑以人性化尺度。通过玻璃幕墙、金属铝板、不同质地的石材作为建筑主要的立面材质。荔枝面石材以及玻璃幕墙作为建筑主体,政务陈列馆以及千人宴会大厅采用香槟金色铝板作为外饰面,凸显建筑的现代气息。最终创造出简洁质朴的建筑形态,在建筑肌理上又呼应了平潭当地特有的石厝建筑群,以及亚热带季风气候地区的建筑特色。
△建筑细部
局部建筑体量采用粗犷的毛面石材,灵感取自平潭当地特色的石厝。
△建筑细部
竖向线条与局部露台的设置削减了建筑较大的体量感,使得尺度更加近人。
△建筑细部
相近的建筑立面元素使得建筑各单体组合在一起节奏一致。
本项目在有限的场地内置入多种不同类型的功能,通过合理的分区及流线组织,巧妙结合场地,最终整合成为一个有序的建筑群落。关注周边生活者对健康生活的追求,以满足人们对多样化运动场所的需求,丰富日常生活,提高生活品质的目标。营运中心配套酒店的设置也为该片区提供了承办大型会议及商务运营所需的大量住宿就餐需求提供了有力支撑。
△立面图
项目档案
项目地点:福建平潭
业主单位:平潭嘉源置业开发有限公司
设计单位:筑境设计
建筑面积:112762.98㎡
设计时间:2016年9月-2017年12月
竣工时间:2021年4月
设计指导:程泰宁
主创建筑师:周旭宏
建筑方案设计:周旭宏、杨磊明、吕骏杰、邱杰
建筑施工图设计:周旭宏、杨磊明、范晶晶、吕骏杰、郭玉琦、余星星
结构设计:倪兴惠、骆涛、朱丹、周成龙、马慧敏
给排水设计:竺新波、杨迎春、纪殿格
暖通设计:王瑞兵、潘军、于坤
设备设计:王自立、宋合磊、高云亮
景观设计:张家声、陈涛、陈小璇、付琳、陈佳元
室内设计:周旭宏、杨磊明、范观水、郭达森
建筑摄影:根本堂建筑摄影
本文供稿:吕骏杰(上海二院)
编辑排版:筑境设计品牌部
筑境设计出品 未经授权禁止转载
欢迎分享到朋友圈哦
*更多精品项目*