2015年秋,筑境设计连续参与了西十冬奥广场联合泵站、倒班宿舍的设计投标和三座转运站的改造工作。以此作为时间的起点,在其后的七年里,筑境全情投入,沉浸式参与了首钢园区的大量更新工作。团队先后完成了北京首钢园区西十冬奥广场、国家体育总局冬训中心、三高炉博物馆及全球首发中心、星巴克冬奥园区店、北七筒仓RE睿.国际创忆馆、洲际智选假日酒店秀池店、首钢网球馆和洲际冠军酒店、北京六工汇、金安桥工业遗址公园及交通一体化、制氧厂南片区、北京首钢一高炉So Real超体空间5GVR乐园等建筑更新项目;配合北京市规划设计研究院完成了首钢园区北区两湖片区城市设计、首钢园区南区城市设计、首特钢片区城市设计、首钢园区1609街区城市设计工作;与清华院、北京院、意大利LCR、首钢院等兄弟单位合作完成了2022冬奥会单板滑雪大跳台、中国国际服务贸易交易会北京首钢园展区、北京首钢香格里拉酒店等项目,为打造首都城市复兴新地标做出了出色的贡献。
关联作品先后入选2017佛罗伦萨建筑周、2018圣彼得堡艺术周、2018巴塞罗那设计周、2017-2018北京国际设计周,2019-2021中国建筑设计博览会、2018威尼斯双年展首钢“铸忆”城市复兴成就展、2018首尔世界建筑师大会、2019上海城市空间艺术季、2020威尼斯双年展中国国家馆主题展、2021里约世界建筑师大会等一系列国内外重要展览,获得了广泛的国际反响。
在2022北京冬奥会成功召开之际,我们推出“筑境的首钢实践”系列推文,回顾过往七年间,筑境在首钢园区打造城市复兴新地标进程中完成的一些主要作品,致敬我们所身处的这个伟大的时代,致敬首钢存量更新的重要历史进程,致敬每一个曾为之努力和拼搏的筑境人。
今日推出“筑境的首钢实践”系列推文第2篇——北京首钢星巴克冬奥园区店,轻盈与厚重的絮语,踩点国内最具工业风的“网红咖啡店”。
[PROJECT 02]
北京首钢星巴克冬奥园区店
△实景视频
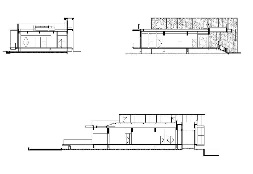
对工业遗存现场以适应性更新策略展开的思考催生了北京首钢星巴克咖啡冬奥园区店,项目所在的三高炉干法除尘器罐体主要由容纳除尘布袋的罐体、检修平台和相关放散管道及控制设备组成。
八个干法除尘罐体和七层检修平台间形成了强烈蒙德里安线条和色彩构成的“七横八纵”式的构图,具有很强的工业美学特征。
为凸显干法除尘的美学特征,提供从奥组委办公园区向东眺望的良性视觉对景,设计决定拆除遮挡罐体的控制室。以适应性更新设计策略介入更能彰显遗存自身美学特征和空间特质。
©黄临海
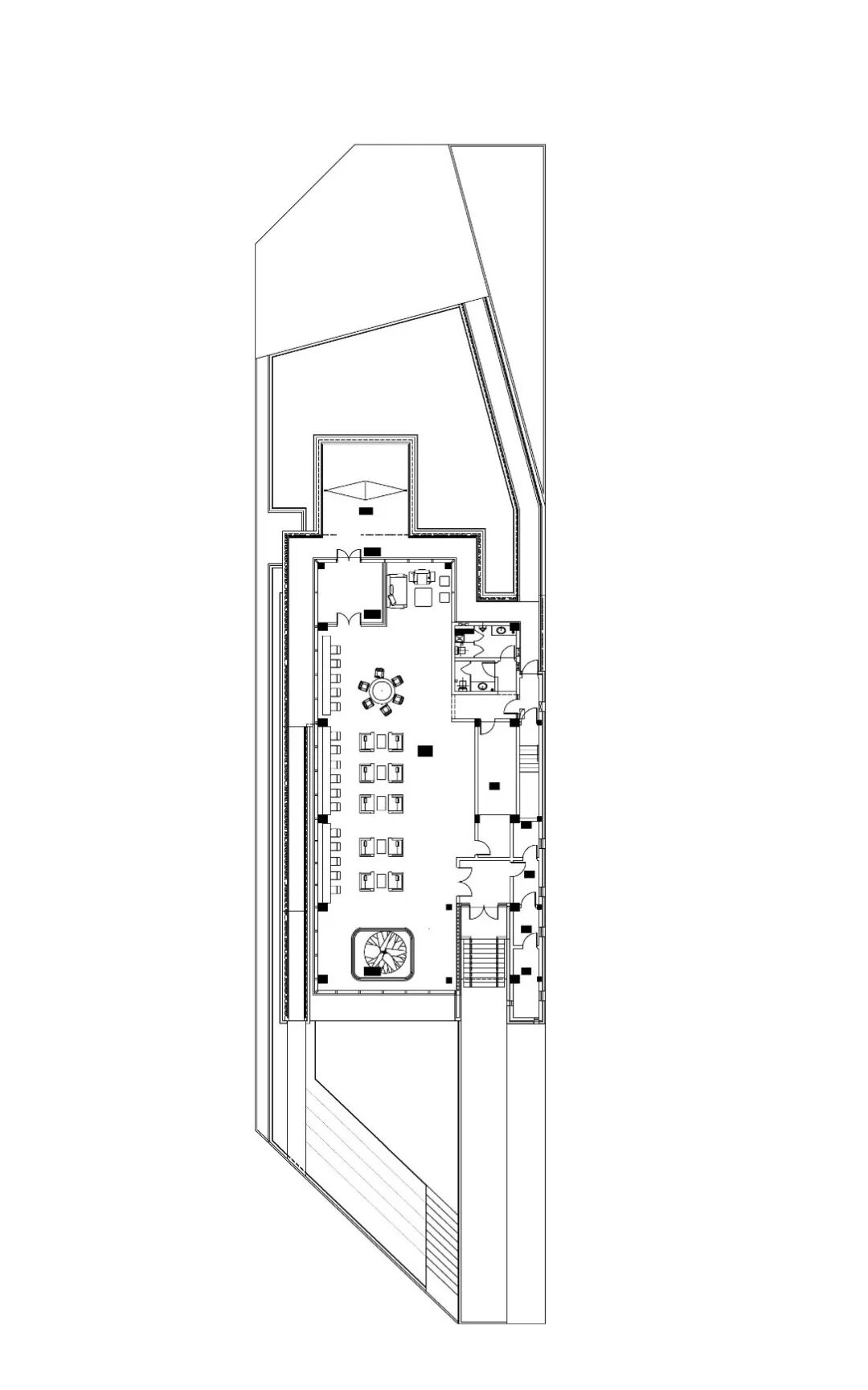
从城市服务职能的空间设定角度看,它应该成为一个聚会、交往和休憩的空间,咖啡店似乎是契合度最高的功能植入选择。
©黄临海
从遗存构筑物的美学和空间特性看,拆除到一层的控制室呈现的是不遮挡罐体单层混凝土框架,横向框架的水平感和干法除尘罐体的横纵构图可以形成有效的呼应关系。
从动线组织和城市表情角度看,这组建筑需要导入北侧工舍酒店、南侧三高炉博物馆和西侧奥组委办公园区的人流,南北两侧都需要有效的出入口组织。南北向玻璃立面对三号高炉热风炉和工舍酒店形成框景,而西侧对向奥组委的立面则因道路和西晒问题需要一定的视觉遮蔽。
△草图
△草图
拆除上部后保留下来的控制室一层框架层高较高,达到6.4m,设计将建筑地坪提升到1.3m标高,剩余的5.1m层高对于咖啡店而言已经足够,而提升的地坪则让新建筑拥有了轻盈的漂浮感,和背后紧邻的沉重罐体形成强烈的并置和对比的效果。同时,地坪的提升也令原建筑的地梁系统以一种工业考古视角的“遗址”样貌呈现出来,强化了自身的新旧对话。
原南侧楼梯间梯段拆除后留下了开放的梯井,设计并不希望这处有趣的“空”被填充,方形倒圆角的玻璃庭院和穿越屋面而出的树木让“空”转化为了“院”,让绿色渗透进了建筑内部。内装设计中营业厅北侧的同形卡座形成了内部空间的对偶式修辞。
提升的地坪催生了建筑西侧和北侧的坡道处理,西向坡道外饰灰色氟碳漆钢条编织网,充当外遮阳系统过滤掉下午的西晒问题,同时提供了一个朦胧的半透明界面,柔化了西侧和园区的界面关系,也令建筑强化了东方气质下的轻盈感。北侧坡道掠过轻浅的静水面从两列竹丛中转折而入,让这座小建筑的动线拥有了平行、交错差异化的体验。
©黄临海
除了根据遗存特征巧借赋能外,在工业遗存更新领域,提升既有材料耐候性,比如干法除尘罐体和平台的钢铁表面的除锈漆面耐候涂装就是非常典型的课题。
首钢园区项目团队进行了反复调整油漆组分和打样的过程,在经过长达10个月的探索性试验之后,团队最终选择了一种具有90%透明度以及10%反光率的树脂漆作为防锈处理的罩面剂,一方面能够阻止钢铁的进一步锈蚀,另一方面保持了原有漆面的色彩甚至锈蚀痕迹,将时间的烙印完美封存在其表皮。
©陈鹤
项目档案
项目地点:北京·石景山·首钢厂区北区
建筑面积:378.5㎡
项目年份:2017
方案(筑境设计):薄宏涛、蒋珂
施工图设计:
建筑(筑境设计):薄宏涛、赵嘉康、高巍、张志聪、刘亮、蒙治银
结构机电(首钢国际工程公司):侯俊达、王兆村、陈罡、李慧、张悦、王洪兴、林莉、王静、闫洪瑞、陈喜雷、康建宇
景观设计:
易兰(北京)规划设计股份有限公司:陈跃中,莫晓,王斌,田维民,胡小丹
业主设计管理团队:王世忠、刘桦、金洪利、王达明、段若非
室内设计:星巴克室内设计团队
建筑摄影:筑境设计,王栋,黄临海,陈鹤
编辑排版:筑境设计品牌部
商务联系:400-8066-508
筑境设计出品 未经授权禁止转载
欢迎分享到朋友圈哦