近日,万科湖西CBD大平层再度批前公示!
相较于此前,此次户型再度有变,盯紧这个项目的买房人赶紧关注起来。
万科湖左岸项目全名叫万科玲珑商务中心,位于工业园区星海街东、苏惠路北,是万科以底价111520万元拿下,成交楼面价5594元/㎡。
其由2宗地块组成,即DK20170021、DK20170022地块:
DK20170021地块:占地7926平,用途为商服、城镇住宅(酒店式公寓)、公共管理与公共服务用地(110KV变电站);
DK20170022地块:占地14892.250平,用途为商服、城镇住宅(酒店式公寓);
根据最新的公示信息:
DK20170021地块总建筑面积68470.57㎡,其中计容建筑面积48579.56㎡,主体顶板建筑高度97.5米,最高高度106.8米,建筑层数为地上23F,地下3F。
DK20170022地块总建筑面积193735.34平,其中计容建筑面积150553.06平,主体顶板建筑高度160.2米,最高高度171.3米,建筑层数地上46F,地下3F。
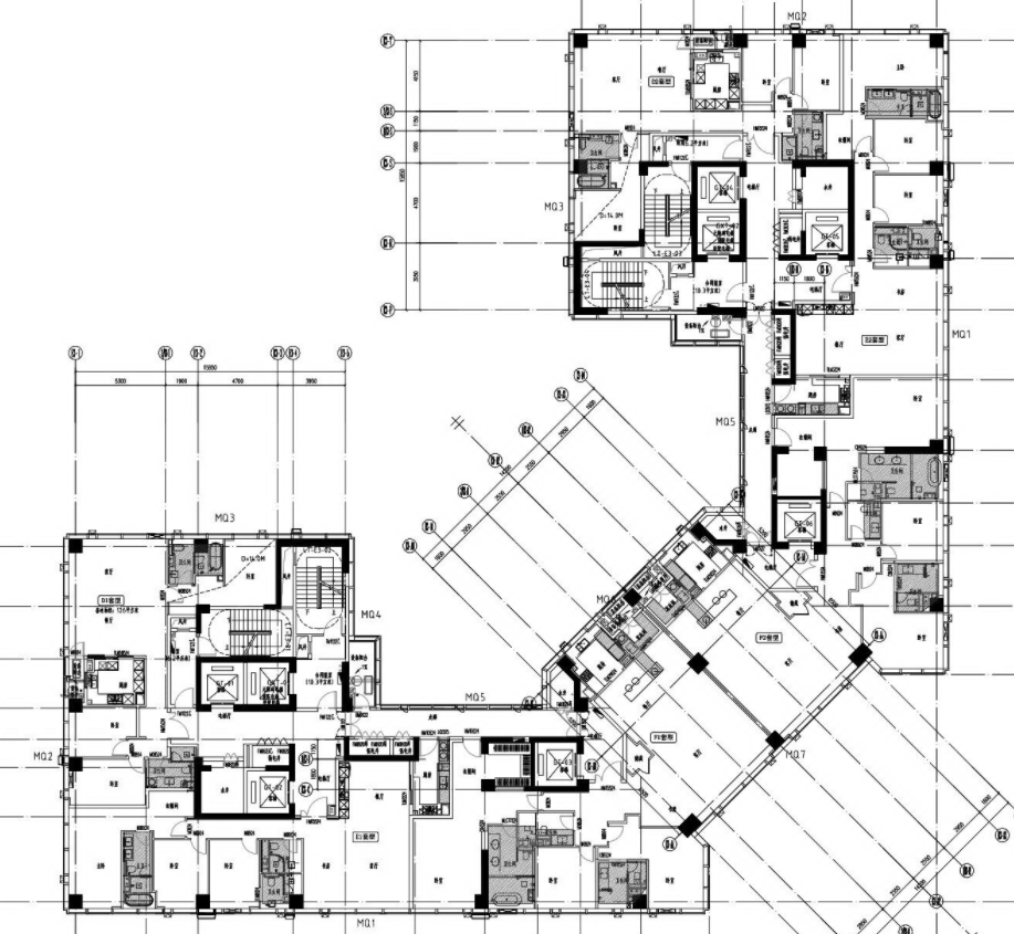
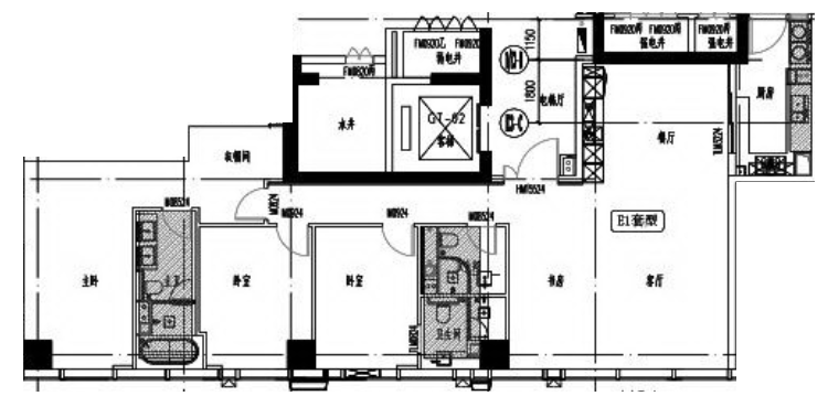
另外,此次批前公示还有最新的户型图(低楼层和高楼层的公寓):
低楼层-8梯6户
建面约175㎡-4+1房2厅3卫
3+1房3厅3卫
建面约175㎡-3+1房2厅2卫
高楼层-8梯6户
建面约126㎡-3房2厅2卫
真相!苏州楼市陷入“怪圈”!这些建议,买房卖房一定要看...