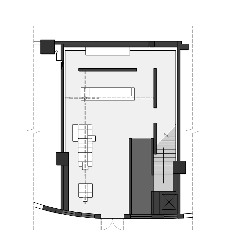
首层平面图
二层分析图
项目名称 |VMESHOU 北京三里屯店
项目地点 | 北京三里屯
项目面积 | 250㎡
竣工时间 | 2021.8
项目业主 | 唯蜜瘦
主创设计 | 梁永钊 / DOMANI 东仓建设
协作设计 | 唐嘉颖、翟柱钊、张成 等 / DOMANI 东仓建设
工程单位 | 端艺装饰装修工程(北京)有限公司
项目摄影 | 吴清山
DOMANI东仓推荐案例
失重_YOEYYOU形象概念店
池塘之底
ht Studio | 感受自然
南京悦设空间设计 | Today Cafe
尔我空间设计研究室 | 一次事件