来自 gad + GLA 对gooood的分享
浙江音乐学院公共场馆群建设在杭州转塘、望江山麓,由大剧院和音乐厅两座建筑联体构成,特殊的形式语言、以及与外界联系密切的功能定位使其自然地承担起学校的东大门的重要职责。
▼从校园鸟瞰公共广场群 ©姚力
浙江音乐学院公共场馆群需要在并不大的组团用地内解决一个包括1200座剧场、800座音乐厅、300座练习厅、400座imax影厅及多个中小影厅、更有多个不同尺度规模的中型表演厅、排练厅的复杂功能群组。面对有限的用地范围,向下掩埋或水平分散的设计语言均无法同时满足全部的功能要求,在多种策略比较后,设计师最终选择了归类分组、垂直叠置的方式来组织这些不同功能,并为校园的东入口留出充裕的前场人流集散空间。
▼建筑正立面暨校园入口 ©姚力
▼从大剧院前场看音乐厅 ©姚力
▼从音乐厅前场看大剧院 ©姚力
▼从音乐厅西北角看大剧院 ©姚力
▼从大剧院北侧看校园入口 ©姚力
▼从建筑群下方看校园全貌 ©姚力
▼从音乐厅台基望向校园与群山 ©姚力
为了消解建筑的体量,建筑师从视觉上将建筑分为三段:从地面生长而起的台基、中段开放的公共空间、以及上段连续的漂浮乐章。
▼从音乐厅屋顶看大剧院 ©姚力
▼从音乐厅屋顶看校园全貌 ©姚力
被火山石包裹的基座容纳着各类设备与辅助功能空间,并通过大台阶与前场地面融合在一起。中段的开敞空间由前厅、交通空间所组成,被玻璃幕墙和纵向百叶所覆盖的表皮也顺应其公共特质,从视野上向外部打开。上段的空间容纳着各类演艺功能空间和办公场所,由30道白色百叶和背衬穿孔板所构成的复合流动表皮将这些空间统一在一个整体的“漂浮乐章”之中。
▼横向和纵向的百叶对比 ©姚力
▼大剧院与北侧教学楼的体量关系 ©姚力
▼音乐厅西侧 ©姚力
▼支撑i-max影厅的斜柱 ©姚力
▼从音乐厅的室内楼梯看大剧院 ©姚力
室内的处理延续了建筑外部的整体性,空间成为了室内营造的核心,在内置盒子体量的表面则通过混凝土、grc、钢、木材等材质的应用和对比,试图传达出符合艺术院校对外窗口氛围的戏剧化空间。
▼大剧院公共门厅 ©陈兵
▼交通空间 ©陈兵
▼音乐厅公共区 ©陈乙
▼音乐厅的望山阶梯 ©姚力
▼音乐厅的山景大厅 ©姚力
▼公共空间细部 ©陈乙
▼楼梯细部 ©陈乙
▼音乐厅室内 ©陈乙
▼大剧院观众厅 ©陈兵
最终有限的造价迫使建筑师同意取消了一部分原计划覆盖全部屋面的穿孔铝板,而从航拍中展露的出的这一未完成状态,也真实地讲述着一个关于建造过程多方博弈的故事。
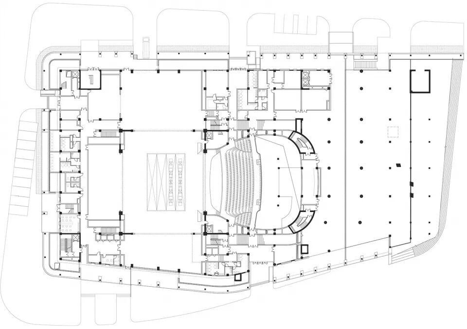
▼大剧院一层平面图
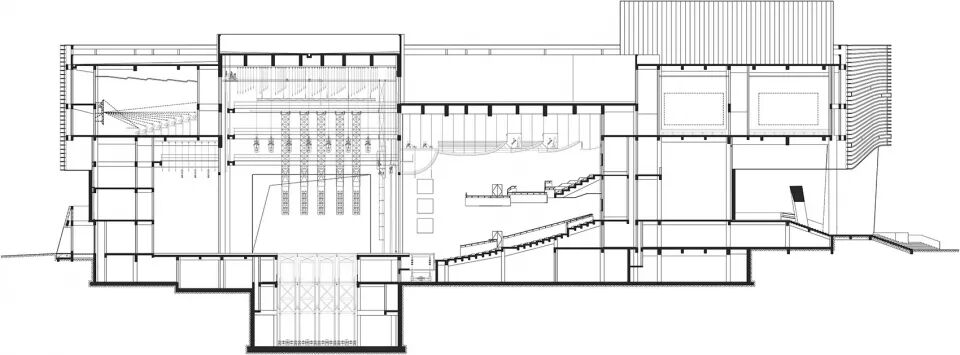
▼大剧院剖面图
▼音乐厅一层平面图
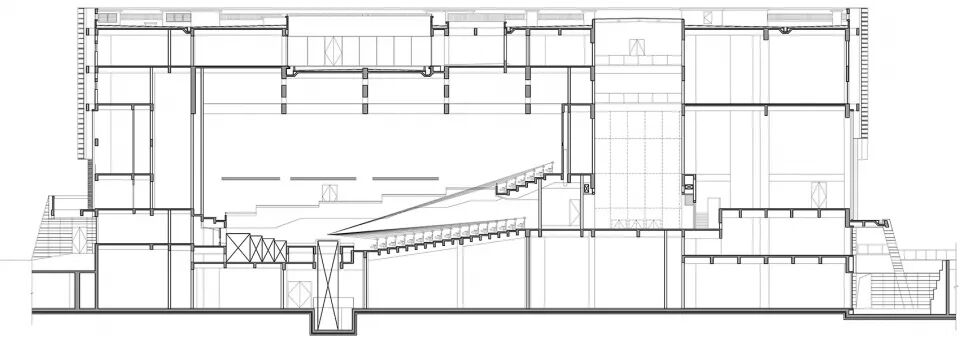
▼音乐厅剖面图A
▼音乐厅剖面图B
项目名称: 浙江音乐学院公共场馆群
建筑事务所: gad+GLA
事务所网站:
www.gad.com.cn;
www.gla-design.com
电邮联系方式:
marketing@gad.com.cn;
gla_design@163.com
方案主创:朱培栋 吴海文 李彬淼
项目负责:王宇虹 张微 朱培栋 宋萍
项目团队:钱明一、丁永军、任光勇、崔大梁、周剑、陆柏庆、吴文坚、陆惠婷、吴海文、李彬淼、吴雪峰、卓祖航、姚国财、赵雅萱、王溯
项目详细地址: 浙江省杭州市转塘浙音路与美院北路交叉口
项目完成年份:2015
建筑面积(平方米): 地上26400,地下15000
摄影师: 姚力、陈兵、陈乙
幕墙设计:上海伊杜幕墙建设咨询有限公司,杭州facade studio
室内设计:杭州典尚设计(大剧院),内建筑事务所(音乐厅)
声学顾问:张三明
景观设计:上海济景建筑设计有限公司
舞台工艺:杭州子午舞台设计有限公司
材料: 钢 玻璃 铝合金 混凝土 火山石
420万粉丝钟爱
年流量轻松突破1.5亿的网站
www.gooood.cn
也欢迎您关注我们的微信公众号
已有21万粉丝的
gooood谷德设计网
建材、竞赛、推广、招聘、
投稿、项目对接等合作请联系:
gooood.contact@gmail.com
gooood 点击原文到网站看到更多
亲爱的朋友们,gooood启动全新域名
www.gooood.cn
请收藏或采用新域名进入我们的网站,原来后缀hk的域名因为跳转不稳定所以个别用户无法访问。百度搜索的域名结果目前没有得到更新(google已更新,百度规则比较复杂),麻烦手动更新。期待您的再次阅览。