来自 DK大可设计 对gooood的分享
项目背景
该项目位于山东省日照市东港区陈疃镇,如“1971研学营地”的名字所诉,基地原为1971年建立的陈疃镇中学学堂, 2016年因教育资源整合,学校停招,为了让学堂继续发挥其文化育人的功能,陈疃中学被重新利用,改造为日照1971青少年研学实践教育营地。
区位和项目概览
此次改造设计是将基地原有日常教学教室改造为1971研学营地的学生住宿空间,在满足住宿功能需求的同时,不破坏旧时学堂的记忆成为此次设计的核心。
建筑外观
记忆与传承
陈疃镇中学学堂最初由当地村民自发修建,就地取材,共同出资,建造的而成。经历了几十年的风雨承载了多少陈疃人的记忆和青春。近几年由于各种因素现老建筑不能满足当下学校建设要求,被新中学代替所荒废。甲方依托政府打造一个综合性青少年学生研学教育营地并对现有的建筑群进行升级改造让其继续为学生服务。
原有建筑结构形式多为砖木结构,红砖屋身、木框架屋顶,上铺红瓦。为了更好的传承老建筑的历史纹脉,在改造中将红砖作为主要材料,沿用传统砌筑方法,将老建筑与新改造部分紧密融合在一起,使整个建筑群更加统一。
改造前的老建筑 & 改造中的建筑
营地入口空间
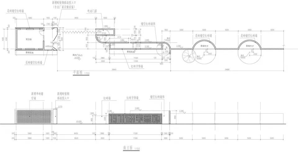
对原入口拆除重新设计,打造一个独特景观入口空间,特有红砖砌筑 “1971研学营地”几个字代替了普通的金属字体张贴,让其与整个空间形成一个完整体。
入口大门
空间梳理与组合
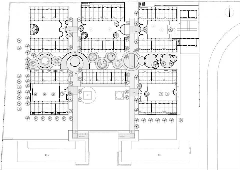
对原有红砖建筑群进行重新梳理,将破旧严重的小空间建筑进行拆除,保留主要建筑空间。
小院入口空间
光井
走廊
我们将保留的建筑空间重新组合,形成五个独立的院落空间和一个休闲趣味景观带,继续沿用红砖作为建造的主材料来整合空间氛围。在尊重建筑现状的基础上运用圆形元素配置每个庭院入口的专属空间,增加其趣味性和体验性。
庭院空间
景观带
我们用大小不一的圆将条形景观空间串联起来,形成三个不同的休闲趣味景观场所:西侧下沉式的篝火聚会场所、中间环形小丘小道、东侧圆形迷宫墙。
景观带鸟瞰图
景观带入口节点鸟瞰
景观带入口节点
下沉篝火剧场鸟瞰
下沉篝火剧场
园环小道鸟瞰
园环小道
趣味迷宫
室内改造空间
原木框架屋顶改为钢结构并将增加高度,满足住宿空间的光照需求,提升空间亮度。
室内空间
红砖区总平面图
景观带总平面图
营地入口平面图、立面图
门卫室立面图
项目名称:山东日照1971研学营地旧学校改造
设计方:DK大可建筑设计
联系邮箱:dakejzghsj@163.com
项目设计 & 完成年份:2018/2-2019/5
主创及设计团队:杨大可 高浩军 王学艺
项目地址:山东日照
建筑面积:11050m2
摄影版权:DK大可建筑设计
客户:1971研学营地
▼ 网站最新24小时精彩项目集锦