效果图 © GWP Architects
感谢 GWP Architects 对gooood的分享
“建筑应充满想象力,生命力和创造力!琶洲三七互娱全球总部项目从企业文化内涵思考设计延伸至玩心之家创造快乐的概念将建筑形态、空间体验和通风采光、节能装配等因素协调平衡创造了丰富且属于企业独特的建筑美感,希望能为使用者们带来空间感知的愉悦和精神的振奋,以及对生活、工作场所的归属感。” —— 张国威 John Zhang GWP主持建筑师 三七互娱全球总部项目设计总负责人
▼概念手稿 © GWP Architects
▼视频 © GWP Architects
▼项目概览 © GWP Architects
建筑大师云集的全球总部集聚区
▼一江两岸黄金三角圈 © GWP Architects
▼项目区位 © GWP Architects
▼航拍图
▼效果图 © GWP Architects
从企业文化中构筑设计概念
玩心之家,创造快乐
“玩心之家,创造快乐”的设计理念与三七互娱“给世界带来快乐”的企业使命不谋而合。三七互娱全球总部大楼,尊重员工体验、关注细节打磨,做走心的作品,将是企业与设计者刷新大众对“玩心”和“创造力”认知的又一成功项目。” —— 三七互娱全球总部项目甲方负责人
▼企业文化解读 © GWP Architects
▼概念生成分析 © GWP Architects
▼效果图 © GWP Architects
“三七互娱是由一群充满活力、创造力和富有社会责任感的团队创立和带领的,GWP的设计理念恰与三七互娱企业文化产生呼应和共鸣。这个高层建筑不仅融入了三七互娱企业文化特色,更充分平衡了功能、空间舒适、生态节能和装配建造等系列技术落地问题,最终荣幸赢得这次项目的竞标。” ——GWP建筑事务所,三七互娱全球总部项目团队
开放共享空间回馈城市
▼分析图 © GWP Architects
▼效果图 © GWP Architects
理想的互动办公空间
▼各区特色公共空间示意图 © GWP Architects
▼功能分析图 © GWP Architects
▼效果图 © GWP Architects
▼效果图 © GWP Architects
▼效果图 © GWP Architects
▼效果图 © GWP Architects
“多维”的绿化体系
▼效果图 © GWP Architects
“ 这个项目在平衡建筑形体的同时需要满足总部人员的使用效率,在空调、电梯等核心机电处理上,需要克服一系列挑战。主持建筑师在每次重要节点会议中,对细节的严谨把控和对各专业高频率的沟通,是项目品质落地的关键。我们相信项目落成将成为该片区又一地标作品。” —— 赵海艳 Haiyan Zhao 三七互娱全球总部项目机电负责人 Aecom 董事
▼立体绿化分析图 © GWP Architects
灵活的平面模块化
为了适应企业对于空间利用的灵活需求与不定期的功能转换可能,GWP设计了一套模块化的平面体系。在一个标准的长宽盒子空间中,制定出办公模块、会议模块和活动模块等,公共活动模块可根据需求布置上下层连通楼梯。标准层中各模块数量及位置可根据需求灵活调配。在办公模块中,又细化出活动室、阅览室、展览室、培训室、洽谈室和酒会室等功能,满足各种个性化功能需求与自由组合。
▼标准层模块化空间示意图 © GWP Architects
独特的立面模块化
▼效果图 © GWP Architects
▼全方位景观视野示意图 © GWP Architects
▼模块化表皮示意图 © GWP Architects
▼效果图© GWP Architects
“ 三七互娱全球总部在平面与立面上全方位的模块化运用,有利于缩短建筑工期、节省造价和保证建筑施工质量,是超高层建筑领域的一次创新尝试,也是行业未来发展的必然趋势。” —— 李盛勇 三七互娱全球总部大厦项目结构负责人 RBS结构副总工程师
▼效果图 © GWP Architects
项目图纸
▼总平面图 © GWP Architects
▼人行流线分析图 © GWP Architects
▼车行流线分析图 © GWP Architects
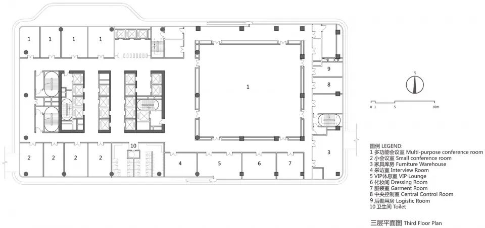
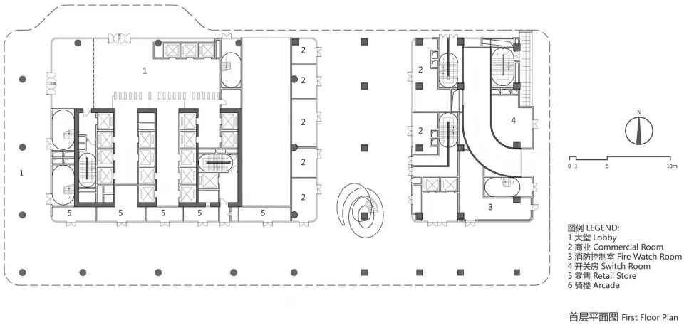
▼一至四层平面图 © GWP Architects
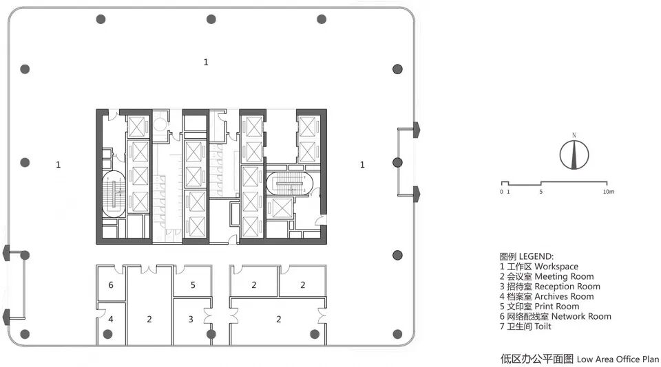
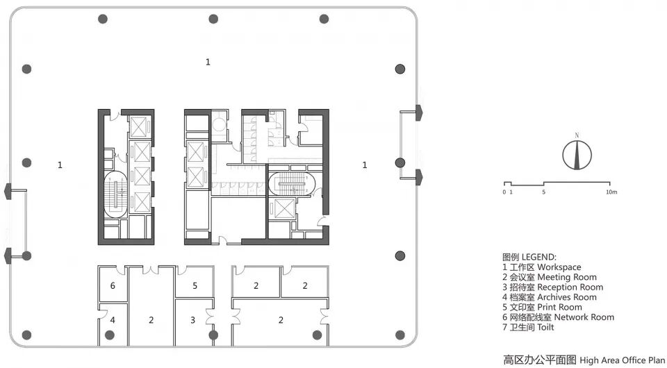
▼办公层平面图 © GWP Architects
▼立面图 © GWP Architects
▼剖面图 © GWP Architects
项目名称:三七互娱全球总部大厦
项目地址:中国,广东,广州
投标时间:2020年7月-2020年8月
投标结果:中标(深化设计中)
项目阶段:深化设计
用地面积:6427㎡
建筑面积:88974㎡
建筑设计:GWP Architects
源尚设计咨询(香港)集团有限公司
主持建筑师:张国威 John Zhang
业主单位:广州三七文创科技有限公司
结构设计:广州容柏生建筑结构设计事务所(RBS)
机电设计:艾奕康设计与咨询(深圳)有限公司(AECOM)
施工图设计:广州市设计院
主建筑材料:混凝土、钢结构、玻璃、铝板
GWP Architects
公司官网:http://www.gwp-architects.com/
商务联系:gwpbusiness@gwp-architects.com
媒体品牌:media@gwp-architects.com
招聘投递:gwphr@gwp-architects.com