南侧夜景
在OPEN建筑事务所设计的上海青浦平和双语学校校园中,有一座看起来很轻的建筑,如同两个暖白色的气囊,漂浮在首层透明的玻璃盒子上。两个“气囊”里分别包裹着风雨操场和游泳池,首层玻璃“盒子”是学校的食堂。建筑师将学校放置于靠近北侧城市道路的位置,以便学校在放假的时候面向周边社区开放,为快速发展的新城区提供共享的体育设施。
东侧夜景
体育馆、游泳池和食堂是校园里最大体量的三个空间。为了不让这座建筑的大体量对校园空间造成过大的压迫感,建筑师希望能达到“举重若轻”的效果。“气囊”柔软的颜色和形状、通透明亮的首层和中庭、不规则穿孔铝板表皮上若隐若现的图案和由张拉膜与阳光板组合成的半透明墙体,将巨大的重力和体量巧妙地消解掉。整座建筑里充满了阳光、空气和水,成为校园中最具活力的场所,并为学生们提供能量。
南侧夜景
建筑东侧较大的“气囊”是一个多功能的风雨操场,这里可以作为篮球、排球、羽毛球、跆拳道、击剑等运动的场地,旁边还分布设有一些小型健身房。其内部空间明亮干净,大跨度的空间没有一根柱子,放眼望去只有温暖的竹板饰面、深灰色的防撞墙和两侧可伸缩的阶梯座椅。太阳光经过长条形天窗的过滤进入室内,白天完全不需要人工照明,从而让学生们沐浴在充足的漫射光下,并进行丰富多彩的室内活动。
校园夜景
建筑西侧较小的“气囊”是游泳馆,其设置了5条25 m的泳道,可以承载日常训练和小型赛事。游泳馆顶部的天窗和南北立面采用的是张拉膜和阳光板双层幕墙体系,让整个室内充满了舒适的自然光。两端的开窗让人们可以将校园和城市的景色尽收眼底,也使“空中泳池”的明亮和轻盈达到了极致。
游泳馆
游泳馆入口
两个漂浮的“气囊”之间是一个垂直的玻璃中庭,天窗将阳光带入12 m高的楼梯间。学生在中庭可以观察到体育馆内丰富的活动。
中庭
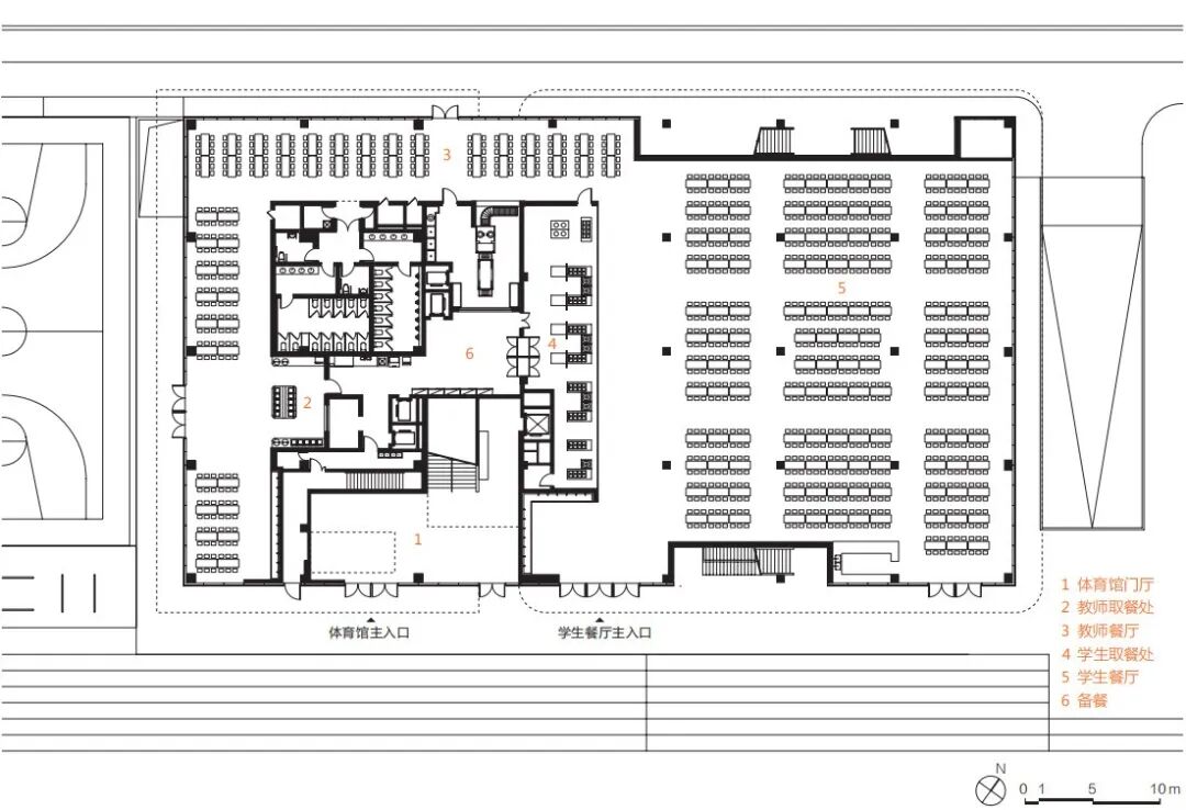
位于建筑首层的食堂是个完全透明的“盒子”。在这里,学生可以一边吃饭,一边观赏校园里的风景和各种活动,尤其是西侧的户外篮球场。设计师考虑到空间也可以被分时共享的特性,无论是桌椅的选择和排布,还是低矮的天花板和明亮的照明设施等设计,都要满足学生学习时的使用需求。
体育馆
双层表皮的设计是整座建筑的核心,内外表皮中间夹着大跨度的空间网架,在结构上悬挑出去,保证了室内的干净、简洁,其外观看起来又像是漂浮在空中。庞杂的机电管线也被收纳在立面之中,便于后期的检查和维修。通透的材质不仅制造了朦胧、轻盈的视觉效果,也作为有效的通风设施,帮助通常情况下能耗巨大的体育场馆减少空调的使用。
西侧夜景
当夜幕降临:游泳馆外立面的张拉膜通体发光;食堂里晚自习的灯光也从玻璃“盒子”中透出来,像一盏暖黄色的灯笼点亮了校园的一角,周围也不再需要增加其他照明设施;隐藏在双层表皮之间的钢架结构和机电设备透过铝板的穿孔若隐若现。含蓄而抽象的图案,神秘且具有未来感的建筑,好像可以自由“呼吸”。■
首层平面图
二层平面图
横向剖面图
项目概况
项目名称 | 上海青浦平和运动中心
业 主 | 上海题学教育科技有限公司
建设地点 | 上海市青浦区
设计单位 | OPEN建筑事务所
设计总负责 | 李虎,黄文菁
照明顾问 | 马仁凯团队&上海现代建筑装饰环境设计研究院有限公司
设计时间 | 2016年
建成时间 | 2020年
图纸版权 | OPEN建筑事务所
摄 影 | 吴清山,陈颢,Jonathan Leijonhufvud
END
来源:IGE译格
1.于2022年4月1日正式实施的这项照明相关标准操作性如何?
A君微信:1497591674
小A微信:Margaret-alighting2
扫描下方二维码,添加A君的企业微信