▲ 更多精品,关注“图图规范”
学习规范 | 延伸阅读:点击查看
各市住房城乡建设局、审批服务管理局,山西转型综合改革示范区管委会行政审批局,各有关单位∶
为贯彻落实《中华人民共和国消防法》《建设工程消防设计审查验收管理暂行规定》(住房城乡建设部令第51号),指导各方正确理解并有效落实国家工程建设消防技术标准条文规定,提高建设工程消防设计审查质量,我厅组织编制了《山西省民用建筑工程消防设计审查难点解析》,经第6次厅长办公会议研究同意,现印发给你们,请认真贯彻执行。
前 言
为贯彻落实《建设工程消防设计审查验收管理暂行规定》(住房和城乡建设部令第 51 号),提高建设工程消防设计审查验收质量,针对各有关方面执行《建筑设计防火规范》《消防给水及消火栓系统技术规范》《自动喷水灭火系统设计规范》《火灾自动报警系统设计规范》《建筑防烟排烟系统技术标准》等国家标准规范过程中,遇到的疑点难点问题,山西省住房和城乡建设厅委托山西省建筑设计研究院有限公司编制了《山西省民用建筑工程消防设计审查难点解析》(以下简称《解析》)。
《解析》共分 9 章,分别为建筑类型和范围;总平面布局和灭火救援设施;建筑高度和防火分区;平面布置;安全疏散和避难;建筑构造;消防给水和灭火设施;防烟和排烟;电气消防。
《解析》由山西省住房和城乡建设厅负责管理,山西省建筑设计研究院有限公司负责具体技术解释工作。各单位在开展建设工程消防设计审查验收工作中,还应严格执行现行国家、山西省工程建设消防技术标准。
目 录
1 建筑类型和范围
2 总平面布局和灭火救援设施
3 建筑高度和防火分区
4 平面布置
5 安全疏散和避难
6 建筑构造
7 消防给水和灭火设施
8 防烟和排烟
9 电气消防
1 建筑类型和范围
1.0.1 人员密集场所
是指人员密集的室内场所,包括 公众聚集场所,医院的门诊楼、病房楼,学校的教学楼、图书馆、食堂和集体宿舍,养老院,福利院,托儿所,幼儿园,公共图书馆的阅览室,公共展览馆、博物馆的展示厅,劳动密集型企业的生产加工车间和员工集体宿舍,旅游、宗教活动场所等。
1、公众聚集场所
面对公众开放,具有商业经营性质的室内场所,包括宾馆、饭店、商场、集贸市场、客运车站候车室、客运码头候船厅、民用机场航站楼、体育场馆、会堂以及 公共娱乐场所等。
2、公共娱乐场所
具有文化娱乐、健身休闲功能并向公众开放的室内场所,包括影剧院、录像厅、礼堂等演出、放映场所;舞厅、卡拉 OK 厅等歌舞娱乐场所;具有娱乐功能的夜总会、音乐茶座、酒吧和餐饮场所;飞镖、电竞、室内电动卡丁车场等及其它游艺、游乐场所,真人 CS、密室逃生、剧本杀、情景剧类剧本娱乐经营场所;保龄球馆、台球厅、棒球馆、旱冰场、桑拿浴室、汗蒸房等娱乐、健身、休闲场所,互联网上网服务营业场所。
注:公共娱乐场所中所包括的歌舞娱乐放映游艺场所,主要为歌厅、舞厅、录像厅、夜总会、卡拉 OK 厅和具有卡拉 OK 功能的餐厅或包房、各类游艺厅、网吧、桑拿浴室的休息室和具有桑拿服务功能的客房、足疗店等场所,不包括电影院和剧场的观众厅。
1.0.2 人员密集的公共场所
主要指营业厅、多功能厅、会议厅,礼堂、电影院、剧院和体育场馆的观众厅,公共娱乐场所中出入大厅、舞厅,候机(车、船)厅及医院的门诊大厅等面积较大、同一时间聚集人数较多的场所。
1.0.3 重要公共建筑
指发生火灾可能造成重大人员伤亡、财产损失和严重社会影响的公共建筑。
一般包括:
1、地市级及以上的党政机关办公楼;
2、设计使用人数或座位数超过 1500 人(座)的体育馆、会堂、影剧院、娱乐场所、车站、证券交易所等人员密集的公共室内场所;
3、藏书量超过 50 万册的图书馆;地市级及以上的博物馆、展览馆、档案馆等建筑物;
4、省级及以上的银行等金融机构办公楼,省级及以上的广播电视建筑;
5、设计使用人数超过 5000 人的露天体育场、露天游泳场和其他露天公众聚会娱乐场所;
6、使用人数超过 500 人的中小学校及其他未成年人学校;使用人数超过200 人的幼儿园、托儿所、残障人员康复设施;150 张床位及以上的养老院、医院的门诊楼和住院楼;
7、总建筑面积超过 20000㎡的商店(商场)建筑,商业营业场所的建筑面积超过15000㎡ 的综合楼。
1.0.4 老年人照料设施
设计总床位数或老年人总数 20 床(人)及以上的为老年人提供集中照料服务的设施,包括老年人全日照料设施和老年人日间照料设施,属于公共建筑。其他专供老年人使用的、非集中照料的设施或场所,如老年大学、老年活动中心等不属于老年人照料设施,其防火设计要求按照有关公共建筑的规定确定。
1、老年人全日照料设施
为老年人提供住宿、生活照料服务及其他服务项目的设施,是养老院、老人院、福利院、敬老院、老年养护院等的统称。
2、老年人日间照料设施
为老年人提供日间休息、生活照料服务及其他服务项目的设施,是托老所、日托站、老年人日间照料室、老年人日间照料中心等的统称。
注:如老年人日间照料设施中设计总床位数或老人总数少于 20 床(人),消防设计应参照旅馆建筑设计。
3、老年人公寓等非住宅类的居住建筑在非住宅用地上建设的老年公寓等居住建筑,应满足老年人照料设施的规定。
1.0.5 儿童活动场所
是指托儿所、幼儿园、儿童福利院等的儿童用房,用于 12 周岁及以下儿童游艺、非学制教育和培训等活动的场所如儿童游乐厅、儿童乐园、儿童早教中心、儿童教育培训学校、亲子园等。
1.0.6 医疗建筑
对疾病进行诊断、治疗与护理,承担公共卫生的预防与保健,从事医学教学与科学研究的建筑。
综合医院中急诊部、门诊部、住院部、医技科室、康复中心等按照医疗建筑相关要求进行消防设计;医院内保障系统、行政管理和院内生活用房、预防保健用房、科研用房教学用房等按照相应功能的防火规范进行消防设计。对于无治疗功能的休养性质的疗养院、月子护理中心,应按照旅馆建筑进行消防设计。
1.0.7 商业服务网点
设置在住宅建筑的首层、首层及二层,每个分隔单元建筑面积不大于 300平方米的百货店、副食店、粮店、邮政所、储蓄所、理发店、洗衣店、药店、洗车店、餐饮店等小型营业性用房和社区服务站(含居委会、治安联防站)、物流快递接收站、社区医疗卫生服务中心、公厕、物业管理与服务、社区警务室等居住区配套设施。当商业网点凸出住宅建筑主体投影范围外,按照《建筑设计防火规范》GB50016-2014(2018 年版)(以下简称《建规》)第 5.4.11 条规定采取防火分隔和安全疏散措施时,也可按照商业服务网点考虑。商业服务网点各层层高须控制在 5 米及以下。
1.0.8 大型商业综合体:
建筑面积 5 万平方米以上,以商业为主,集购物、餐饮、文娱、展览、住宿、交通枢纽等两种或两种以上功能于一体的单体建筑和通过地下连片车库、地下连片商业空间、下沉式广场、连廊等方式连接的多栋商业建筑组合体(不包括住宅和写字楼部分的建筑面积)。
1.0.9 下列为民用建筑配套建设的独立设置的设备用房,与相邻建筑防火间距可参照相应火灾危险性类别的厂房确定 :
1.0.10 实训楼
学校内进行职业实习和专业技术训练的教育建筑。如卫生职业技术学院中的老年人护理、医学院中的模拟病房、商贸学院中的模拟酒店客房等用房,可按照教学实验建筑分类;如为实训车间,应按照厂房设计,甲、乙、丙类实训车间与教学楼、宿舍楼等民用建筑不能组合建造。
1.0.11 公寓
住宅用地上的住宅式公寓按照住宅进行消防设计;学校、企业用于学生、员工等居住的公寓应按照宿舍进行消防设计;建设在商业用地的公寓应按照旅馆进行消防设计。
1.0.12 劳动密集型的生产加工车间
单一建筑任意生产加工车间或防火分区,同一时间的生产人数超过 200人,或同一时间生产人数超过 30 人且人均建筑面积小于 20 平米,从事制鞋、制衣、玩具、肉食蔬菜水果等食品加工、家具木材加工、物流仓储等劳动密集型企业的生产加工车间。
1.0.13 汽车库
用于停放由内燃机或电动机驱动,且无轨道的客车、货车、工程车等汽车的建筑物。
《山西省建设工程消防设计审查验收工作实施细则(试行)》第六条,需消防审查的特殊建设工程中“独立建造的建筑面积大于一万平方米或室内地面与室外出入口地坪高差大于 10 米或 3 层及以上的车库”,包括非特殊建设工程附设的车库、独立建造的车库。
2 总平面布局和灭火救援设施
2.1 防火间距
2.1.1 防火间距计算除应符合《建规》附录 B 外,尚应符合以下规定:
1、外墙上阳台无论开敞与否,防火间距均应从阳台栏板外边缘计算,如有保温层,应从保温层外皮计算;
2、建筑室外疏散楼梯,如采用不燃材料制作,且不影响消防车通行和灭火救援,防火间距可不考虑室外疏散楼梯。
2.1.2 当相邻两座建筑之间通过设置防火墙以满足防火间距不限或减少的条件时,应符合下列规定(图示 1,2):
1、两座相邻建筑形成夹角小于 90 度时,最近门窗洞口之间的水平距离不应小于相应类别、高度和耐火等级建筑的防火间距;
2、两座相邻建筑形成夹角大于等于 90 度小于 135 度时,最近门窗洞口之间的水平距离不应小于 6m;
3、两座相邻建筑形成夹角大于等于 135 度小于 180 度时,最近门窗洞口之间的水平距离不应小于 4m;
4、两座相邻建筑形成夹角大于等于 180 度小于 270 度时,最近门窗洞口之间的水平距离不应小于 2m;
5、两座相邻建筑形成夹角大于等于 270 度时,紧靠防火墙两侧的门、窗、洞口之间的距离不限。
2.1.3 住宅楼不同单元之间形成 U 型空间时,相对外墙上的门、窗、洞口之间距离不应小于 6m。当确有困难不满足 6m 时,应符合以下要求:
1、相对外墙上的门、窗、洞口不正对开设,且该门、窗、洞口的面积之和不大于其所在墙面面积的 5%时,其防火间距可减少 25%;
2、当设置耐火极限不低于 1.0h 的防火隔板时,距离不限,防火隔板突出外墙的外边应与相对外窗的最外边平齐;
3、当两侧门、窗、洞口采用耐火完整性不低于 1.0h 的窗时,距离不限。该窗应设有易熔合金件或玻璃球等热敏感元件具备火灾自动关闭窗扇的功能。
2.1.4 当非机动车、机动车坡道地下出入口未设置防火门、防火卷帘时,坡道的地面开口边缘与地上相邻建筑外门窗之间的防火间距不应小于 6 米。
2.1.5 地面机械车库无论是否有围护结构,均应按汽车库控制防火间距。
2.2 消防车道和消防车登高操作场地
2.2.1 按《建规》第 7.1.2 条规定设置消防车道的建筑,其消防车道距离建筑外墙不宜小于 5m、不应大于 30m。
2.2.2 消防车可利用不规则的场地(可为丁字形,Y 字型等满足消防车回车要求的场地)作为消防回车场地,场地直线段至交叉口交点的直线距离不应小于12m。
2.2.3 消防车转弯半径是消防车外轮转弯半径。(引自《车库建筑设计规范》)
2.2.4 消防车道转弯半径和消防车回车场应根据建筑高度选用,单、多层建筑按照普通消防车选用,高层建筑按照登高消防车选用。
2.2.5 消防车道及消防车登高操作场地应采用承载力满足要求的硬质铺装面层,不应采用植草砖(格)、草坪等隐形消防车道及消防车登高操作场地。
2.2.6 消防车登高操作场地原则上应设置在项目用地红线内,如设置在红线外时,应征得相关部门的认可(包括规划、建设、城管、交通、绿化等部门),并确保场地范围内无高大乔木、行道树及架空线路等影响消防车登高操作的障碍物。
2.2.7 消防车登高操作场地宜能覆盖建筑面向消防车登高操作场地一侧外墙的所有开口。
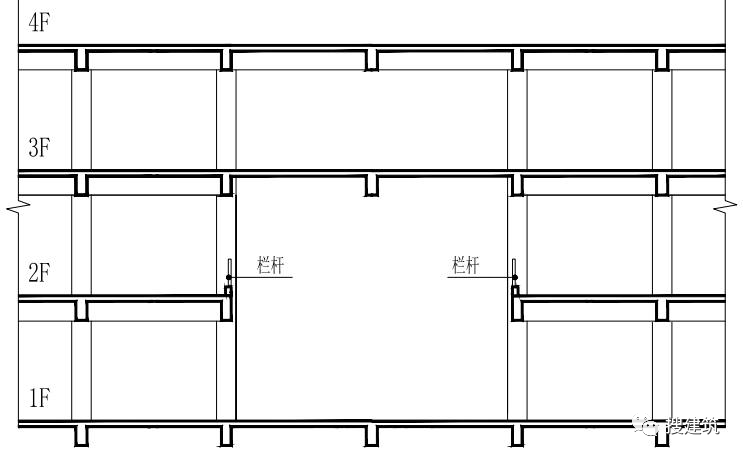
1、当住宅建筑场地受限,确有困难时,消防车登高操作场地设于住户侧时,应至少覆盖面向场地一侧的每户的一个开口;消防车登高操作场地设于公共区域一侧时,应至少覆盖至各单元公共区域。(图示 1,2)
2、大于 50 米的住宅楼,当场地受限,连续的消防车登高操作场地无法覆盖至每户时,部分住户可增设不连续的消防车登高操作场地作为补充。(图示1)
3、住宅山墙面向消防车登高操作场地时,山墙上须设有满足消防救援的外窗。
2.2.8 建筑高度大于 50 米的高层建筑,消防车登高操作场地至建筑外墙距离不应小于 5 米,高度 50 米及以下的高层建筑,消防车登高操作场地至建筑外墙距离不宜小于 5 米。
当住宅建筑外墙有凹凸时,内凹部位宽度小于 10 米时,消防车登高操作场地至建筑外墙的距离按照设有外门窗的最外侧主体外墙起算。对于连廊户型的住宅楼,连廊侧设有消防车登高操作场地时,内凹部位宽度不大于 10 米,深度不大于 10 米时,内凹范围内可设置高度不大于 5 米的门厅、商业等裙房。
2.2.9 当在建筑投影范围内设有垂直于消防车登高操作场地的汽车库(坡道)出入口时,建筑外墙与消防车登高操作场地的距离不应小于 6m,汽车疏散不应影响消防车的通行和灭火救援。
2.2.10 高层建筑消防车登高操作场地、尽头式消防车道与环形消防车道距离大于 40m 时,应在尽端设置消防车回车场地。
2.2.11由多种建筑高度组合的高层建筑群,其中建筑高度大于 50m 的部分,应符合该部分至少沿一个长边或周边长度的 1/4 且不小于一个长边长度的底边连续布置消防车登高操作场地的规定;建筑高度不大于 50m 的部分,当连续布置消防车登高操作场地确有困难时,可间隔布置,间隔距离不宜大于 30m;但消防车登高操作场地的总长度仍应符合上述规定,高层建筑群的长边或周边长度应按照组合高层建筑群的整体计算。
2.2.12 当消防车登高操作场地设置于两座建筑之间时,消防车登高操作场地边缘可贴邻非扑救建筑外墙,但非扑救建筑外墙上不应有突出外墙的雨棚、台阶、飘窗、空调板等影响消防车登高操作的构件;当两座建筑均应设置消防车登高操作场地时,可以共用消防车登高操作场地。
2.2.13 高层建筑与消防车登高操作场地相对应的范围内,应设置至少一个直通室外的楼梯或直通楼梯间的入口,入口可为通往楼梯间的门厅、走道,入口至楼梯间的距离应不大于 30 米。
2.2.14消防救援口可利用单、多层公共建筑(商店、办公、学校、幼儿园等)及每个商业网点各层直通室外或敞开外廊、阳台的门、窗。
2.2.15 厂房、仓库和商业建筑的每个防火分区至少应设置两个直通走道、公共区域(可利用公共卫生间、楼梯间及前室的开口)或大空间区域的消防救援口,不靠外墙的防火分区需考虑通过相邻防火分区进行消防救援。
2.3 消防电梯
2.3.1 当住宅建筑与公共建筑上下合建时,住宅部分和公共建筑部分的消防电梯配置,可根据各自的建筑高度分别执行《建规》有关住宅建筑与公共建筑的规定;为住宅部分设置的消防电梯不应在公共建筑部分(包括商业网点)停靠。
2.3.2 除《建规》第 7.3.1 条规定外,裙房可不设消防电梯。
2.3.3设置在防烟楼梯间前室、合用前室、扩大前室内的非消防电梯,其井道、轿厢、电气设备等防火性能不应低于消防电梯。
3 建筑高度和防火分区
3.0.1 建筑高度的计算补充如下:
1、建筑屋面为平屋面时,建筑高度为建筑室外设计地面至屋面面层的高度,当屋面坡度 5%及以下时,屋面面层计算至外墙边缘屋面面层,当屋面坡度 5%以上时,应按照坡屋面的计算规则计算。
住宅楼屋面为平屋面时,建筑高度可算至屋面结构面。
2、剧场主舞台等由于使用功能要求局部升高而在屋面不开设外窗的部分,可不计入建筑高度。
3、对于台阶地坪,当同一建筑室外地坪位于不同高程场地时,应按照下列原则计算建筑高度:
(1)按规范需设置环形消防车道的建筑,当其较低室外地坪和较高地坪形成环形消防车道或沿建筑的两个长边设置贯通式或尽头式消防车道时,可按较高或较低室外地坪(与应设置的消防车登高操作场地的标高应一致)起算建筑高度;
(2)按规范可沿建筑的一个长边设消防车道的高层建筑,应按消防车道的相应室外地坪(与应设置的消防车登高操作场地的标高应一致)起算建筑高度;
(3)其余按照《建规》未要求设置消防车道的建筑,可按照实际室外地坪情况确定起算建筑高度。
3.0.2符合《建规》第 5.3.5 条要求的地下商业与汽车库之间应采用不开设门窗洞口的防火墙分隔,若需连通时,应采用下沉式广场等开敞区域、避难走道、防火隔间等连接。
3.0.3防火分区内桑拿浴室的浴池、室内游泳池及消防水池(生活水池)的水面面积、真冰溜冰场的冰面面积、滑雪场的雪面面积、射击场的靶道面积等可不计入防火分区面积。此空间应采用 A 级装饰装修及保温材料。
3.0.4 地下汽车库设有自动灭火系统时,一个防火分区内变配电站、换热站、水泵房等设备用房总建筑面积不应超过 400 平方米;未设有自动灭火系统时,一个防火分区内变配电站、换热站、水泵房等设备用房总建筑面积不应超过 200 平方米。
3.0.5 除规范另有规定外(如博物馆库房、档案馆库房、书库等),民用建筑内附属库房,其防火分区建筑面积按《建规》表 5.3.1 执行,但应按照《建规》第6.2.3 条要求采取严格的防火分隔措施。
3.0.6 当一栋建筑位于台阶地坪时,低于较高地坪的楼层其防火分区应按以下要求划分:
1、当一个防火分区临空长度超过该防火分区一个长边或周长的 1/4,且进深不超过30 米,该防火分区按地上建筑确定防火分区最大允许建筑面积;
2、不满足以上条件的,按地下建筑确定防火分区最大允许建筑面积。
4 平面布置
4.0.1 《建规》第 5.4.13 条第 3 款关于设置在民用建筑内的柴油发电机房储油间总储存量不应大于 1m³ 的规定,是指单个储油间的总储存量,对于建筑内允许设置的储油间数量未作规定。
4.0.2 高层住宅建筑的天井不宜设置四面封闭的内天井。当同一单元中天井设置为 U 型且以连廊联系时,其开口处相对距离不应小于 4m;连廊为敞开式连廊时,连廊周边 2 米范围内不应开设与疏散无关的门、窗、洞口,如开设此类门窗,应为耐火完整性不低于 1.0h 的防火玻璃窗。
4.0.3 除住宅建筑的防烟楼梯间前室、消防电梯前室、合用前室外,其他封闭楼梯间、防烟楼梯间、前室内的墙上不应开设除疏散门和送风口外的其他门、窗、洞口。
4.0.4 住宅建筑首层防烟楼梯间扩大前室内不应设置其他功能,与其他区域应采取耐火极限不低于 2.0h 的防火隔墙和乙级防火门分隔。当首层扩大前室内设有管道井时,本层及本层以下各层管道井检修门应采用乙级防火门,且管道井应层层封堵。
4.0.5 中庭
1、当中庭贯穿的各层面积叠加计算,不超过一个防火分区时,中庭可按照正常功能空间进行防火设计。(图示 1)
2、当中庭与其贯穿的首层面积叠加计算,不超过一个防火分区时,中庭可按照正常功能空间进行防火设计,但与周边连通空间应采用防火墙和耐火极限不低于3h 的防火卷帘进行分隔,防火卷帘开设长度可不受限制。回廊上的人员可借用通向相邻防火分区的安全出口疏散,借用安全疏散宽度不应大于本防火分区总疏散宽度的 30%,且整层的疏散宽度应满足规范要求。(图示 2)
3、当中庭在各层采用《建规》5.3.2 第 1 款防火分隔措施与周围连通空间进行防火分隔,并满足《建规》5.3.2 第 2、3、4 款的相关要求时,中庭为一个独立的防火单元,无论面积大小,均不需再划分防火分区。(图示 3)
5 安全疏散和避难
5.0.1地下车库人员安全出口的设置应符合《汽车库、修车库、停车场设计防火规范》GB50067-2014(以下简称《车规》)中第 6.0.6 条的要求,当每个防火分区内已另设有两个独立的安全出口时,可共用位于两个防火分区交界处的楼梯间进行疏散,通向此楼梯的门应为甲级防火门。
5.0.2多层公共建筑的楼梯当分散设置有困难需采用剪刀楼梯做为两个安全出口时,仍应满足《建规》第 5.5.10 条的要求。当公共建筑中商场、展厅等采用剪刀楼梯间并作为一个安全出口使用时,该剪刀楼梯两个梯段之间可不设置防火隔墙。
5.0.3商业服务网点疏散楼梯形式可不限,但应符合下列规定:
1、商业服务网点的疏散楼梯宽度不应小于 1.1m;
2、当商业服务网点设置封闭楼梯间时,封闭楼梯间在首层应直通室外,二层的疏散距离可算至楼梯间的门;
3、当商业服务网点设置开敞楼梯时,二层的疏散距离应算至首层直通室外的外门,楼梯按照投影长度的 1.5 倍计算。
5.0.4 如利用符合《建规》第 6.6.4 条的连廊、天桥作为安全出口,并计入疏散宽度时,开向连廊或天桥的门应为乙级防火门,其周边2米范围内不应开设门窗洞口。计入的疏散宽度不应大于本防火分区所需疏散总净宽度的 50%。
5.0.5 展览厅、多功能厅、餐厅、营业厅、观众厅等疏散门不能直通室外地面或疏散楼梯间时,除可执行《建规》第 5.5.17 条第 4 款规定外,也可执行《建规》第 5.5.17 条第 1 款和第 3 款的要求。
5.0.6 歌舞娱乐放映游艺场所中每个房间内任一点至房间直通疏散走道的疏散门的直线距离不应大于 9 米,当其中的房间具有至少2个不同方向的疏散门且均为安全出口时,该房间内任一点至安全出口的直线距离不应大于 18米。当该场所设置自动喷水灭火系统时,房间内任一点至最近安全出口的安全疏散距离可增加25%。
5.0.7当首层采用扩大封闭楼梯间、扩大前室直通室外时,直通室外的门至疏散楼梯间门或者疏散楼梯梯段的距离不应超过 30m。
5.0.8 消防水泵房、消防控制室疏散门按照《建规》第 8.1.6 条通过疏散走道直接连通到进入疏散楼梯间或直通室外的门时,该疏散走道两侧的房间门应不低于乙级防火门,且消防水泵房、消防控制室疏散门距离疏散楼梯间或直通室外的门不应超过 15 米。
5.0.9 商业综合体中的影院疏散宽度百人指标应按照《建规》第 5.5.21 条的规定计算,单独建造的影院疏散宽度百人指标应按照相应建筑标准计算。
5.0.10 不同场所计算疏散人数时,可按下述方式计算:
1、电影厅观众厅疏散人数按实际座位数的 1.1 倍计算,电影厅候场厅疏散人数宜按照 0.75 人/㎡计算;设置在其他建筑的有固定座位的场所(会议室等,不包括学校教室),其疏散人数应按实际座位数的 1.1 倍计算;
2、办公场所的疏散人数按《办公建筑设计标准》JGJ/T67-2019 相关规定执行;
3、歌舞娱乐放映游艺场所计算疏散人数时,可按厅室建筑面积计算,疏散走道面积不计入在内;
4、餐厅应明确餐厨布置,当餐厅未设置固定座位时,应依据《饮食建筑设计标准》JGJ64-2017 规定的人员密度计算疏散人数。
5.0.11 由多个高度不同的单元组成的住宅建筑,各单元之间采用防火墙分隔,较低单元屋顶无天窗或洞口(不包括屋面透气管、通风口)、屋顶耐火极限不小于1.00h 时,可按各独立单元的高度来确定其楼梯间形式、消防电梯的设置。
5.0.12汽车库与托儿所、幼儿园、中小学校的教学楼、老年人建筑、病房楼等组合建造时,疏散楼梯应分别独立设置,其疏散外门之间的直线距离不应小于《建规》第 6.1.3、6.1.4 条规定的 2 米、4 米。
5.0.13 除剪刀楼梯间的共用前室、两个采用室外敞开式连廊连通的前室、独立的消防电梯前室外,不应穿过一座疏散楼梯间的前室进入另一座疏散楼梯间的前室。
图示 1
图示 2
5.0.14 住宅楼首层扩大前室可作为该建筑多部楼梯间的共用前室,户门不应直接开向该共用前室。
5.0.15 建筑底部设有室外架空层时,当外门至架空层顶板边缘的距离不大于架空层开口净高时,该外门可作为直通室外的安全出口。
5.0.16 地下设备用房防火分区内应至少设有一部独立的疏散楼梯间,除按照《建规》第 5.5.9 条规定利用通向相邻防火分区的甲级防火门作为第二安全出口外,也可借用开向汽车库防火分区的甲级防火门作为第二安全出口。
5.0.17《车规》第 6.0.7 条规定汽车库可以利用住宅地下室疏散楼梯间进行疏散,利用同一部住宅疏散楼梯间的汽车库防火分区数量不应超过 1 个。汽车库与住宅疏散楼梯间之间连通走道可利用住宅楼内的疏散走道(可不再防火分隔),该疏散走道应采用耐火极限不低于 2h 的防火隔墙分隔,两侧房间的门均应不低于乙级防火门。
5.0.18 建筑中仅服务于其中部分楼层的疏散楼梯,其疏散楼梯形式、每百人的最小疏散净宽度可根据所服务楼层的使用功能及高度、层数或埋深等确定。
5.0.19 汽车坡道不需划分防火分区、可不考虑疏散距离。
5.0.20 汽车停车位的设置不得影响消防设备用房、室内消火栓箱、消防管道井的正常使用。地下车库内最远疏散直线距离的计算不必考虑车辆对路线的阻挡,但应考虑实体墙、机械式停车装置等障碍物对路线的阻挡。
5.0.21 大开间自行车库室内最远点到疏散出口的直线距离应按照《建规》第5.5.17-3 条确定。
5.0.22一、二级耐火等级建筑的疏散内走道两侧的墙应为耐火极限不低于 1.00h的墙,除规范另有规定外,墙上的门可为普通门。当墙上设置普通窗的面积超过窗所在房间墙面面积(含门窗面积)的 50%时,或疏散走道两侧采用(部分或全部)耐火极限低于 1.00h 的玻璃隔墙时,从房间内任一点至疏散楼梯或安全出口的疏散距离不应大于 《建规》第 5.5.17 条的要求。
5.0.23 建筑内儿童活动场所的疏散距离应满足托儿所、幼儿园疏散距离的相关规定。
5.0.24 两层及以下联排商铺(非商业网点)的安全出口的设置可选择下列措施之一:
1、按照《建规》第 5.5.8 条的规定设置安全出口。每套商铺与相邻商铺外墙开口之间水平距离应不小于 2 米。
2、按照《建规》第 5.5.15 条的规定设置安全出口。上层建筑面积不大于 120平方米时,可设置一个疏散出口通向下层,每套商铺上下层总建筑面积超过 120平方米时,整套商铺需设置两个以上安全出口。
5.0.25 当裙房与高层建筑主体之间设置防火墙,防火墙上的开口采用甲级防火门、窗且裙房部分独立疏散时,其疏散距离、疏散宽度可按单、多层建筑的要求确定。
6 建筑构造
6.0.1 同一建筑存在不同高度的屋面(含地下室顶板),下部建筑的顶板设有采光口、通风排烟口等开口时,该顶部开口与上部建筑开口之间的水平距离应不小于 6m。
当上述开口采取防火分隔措施时或开口背向建筑物时,开口与上部建筑的距离可不限,当通风、排气口设置防火阀时,开口与上部建筑的距离可不限。
6.0.2 根据规范要求,下列场所不应采用防火卷帘:
1、《建规》第 5.5.9-1 条“利用通向相邻防火分区的甲级防火门作为安全出口时,应采用防火墙与相邻防火分区进行分隔”,禁止采用防火卷帘、防火分隔水幕等措施替代;
2、儿童活动场所和影院等规范明确要求用防火隔墙分隔的场所均不应采用防火卷帘进行防火分隔;
3、封闭楼梯间、防烟楼梯间及其前室(含扩大前室、扩大封闭楼梯间)等均不应设置防火卷帘。
6.0.3除规范明确规定外,直接开向室外的设备机房门、楼梯间门等,均可采用普通门。
6.0.4住宅和非住宅合建建筑外墙外保温系统应根据总高度执行公共建筑相关防火要求。
7 消防给水和灭火设施
7.1 消防水源及消防设计流量
7.1.1 医院的门诊、医技、住院楼合建的医疗建筑火灾延续时间可按2h 计算。
7.1.2 建筑的地下室,除地下车库、设备用房、储藏室以及住宅配套的自行车库外,室内、室外消火栓设计流量执行《消防给水及消火栓系统技术规范》GB50974-2014(以下简称《消水规》)表 3.3.2、表 3.5.2 中地下建筑的规定。
7.1.3 地下建筑、人防工程符合《消水规》第 3.5.3 条的要求,室内消火栓设计流量不应折减。
7.1.4 除商业服务网点外,住宅建筑与其他使用功能的建筑合建时,当建筑下部(其他使用功能)的自动灭火系统符合全保护的要求时,其室内消火栓设计流量可按《消水规》第 3.5.3 条的要求折减。
7.1.5 除商业服务网点外,住宅建筑与其他使用功能的建筑合建时,火灾延续时间应符合以下要求:
1、当底部的建筑高度大于 24m 时,为3h;
2、当底部为多种功能组合且建筑高度小于等于 24m 时,为3h;
3、当底部为单一功能且建筑高度小于等于 24m 时,为2h。
7.1.6 消防水池、高位消防水箱进水管口最低点高出溢流边缘的空气间隙不应小于 150mm。
7.1.7多种功能组合的单、多层建筑消防设计流量应符合以下要求:
1、不同使用功能的场所,其防火分区完全独立,室内消火栓设计流量可分别按不同类别的高度、体积和座位数对照 《消水规》表 3.5.2 选取,取最大值作为室内消火栓设计流量;
2、不同使用功能的场所,未独立设置防火分区,对照《消水规》表 3.5.2中的不同功能按建筑总高度、总体积和总座位数分别计算,且选取最大值作为室内消火栓设计流量;
3、室外消防用水量应按建筑的总体积确定。
7.1.8 除地下为车库的建筑外,建筑体积计算应含地下室的体积。
7.2 室内、室外消火栓系统
7.2.1 单独建造的首层或二层(设有内楼梯)的建筑和设置在其他建筑的首层或首层及二层(商业网点除外),每个分隔单元建筑面积不大于 300㎡ 的商店、邮政所、储蓄所、理发店等小型营业性用房,消火栓可按以下方式布置:
1、当为一层时,每个商铺内可设置一个消火栓,消火栓应设置在商铺户门附近,相邻商铺内的消火栓可互相借用;
2、当为两层时,每个商铺内首层及二层可各设一个消火栓,且消火栓应设置在户门或楼梯口附近。
7.2.2 消防水池取水口的数量能满足室外消火栓设计流量,且建筑处于其保护半径内时,可不设室外消防加压泵及供水管网。
7.2.3 采用减压阀分区的消防系统,如采用比例式减压阀,减压阀后系统工作压力应依据阀前系统工作压力按比例确定;如采用可调式减压阀,减压阀后系统工作压力应按阀后设定压力确定。
7.2.4 汽车库室内消火栓布置应符合以下要求:
1、应首选设置在汽车通道侧;
2、其次可设置在紧邻汽车通道的车位之间柱子的内侧,但应保证消火栓门开启不应小于 120°;
3、机械车库不应设置在紧邻汽车通道的车位之间柱子内侧。
7.2.4 附图一单层车库消火栓布置(√)
7.2.4 附图二单层车库消火栓布置(×)
7.2.4 附图三机械车库消火栓布置(√)
7.2.4 附图四机械车库消火栓布置(×)
7.2.5 室内消火栓应首选设置在楼梯间或楼梯间前室。
7.2.6古建筑、文物保护建筑的室内消火栓设置可按照室内消火栓布置的原则在室外设置。
7.2.7设置室内消火栓的建筑不得使用双出口消火栓。
7.2.8 设有稳压泵的消防给水系统,屋顶消防水箱出水管上的流量开关可设置在水箱重力出水管上或水箱重力出水与稳压泵出水的汇合管上。
7.2.9 建筑群集中供水系统的水泵接合器设置应符合以下要求:
1、依据《消水规》第 5.4.4 条的要求,每座建筑附近就近设置水泵接合器;
2、消防各系统的水泵接合器应分散布置,每栋建筑 40 米范围内至少有一套水泵接合器,且相邻建筑可共用。
7.2.10室内消火栓系统采用水平环网布置时,系统管道布置及阀门设置应保证每个防火分区在检修时至少有 1 支消防水枪的 1 股充实水柱到达室内任何部位。
7.3 消防水池、消防泵房、消防排水
7.3.1 采用两格或两座消防水池的吸水总管,每格或每座水池内的吸水总管数量不应少于两根。
7.3.1 附图一双池吸水管布置图
7.3.1 附图二双池设吸水总管布置图
7.3.2 消防水池有效容积小于 500m³ 及设置共用吸水井的消防水池,消防水泵吸水管布置原则应采用单泵单吸的方式吸水。
7.3.2 附图一单池吸水管布置图
7.3.2 附图二双池设公用吸水井布置图
7.3 3.消防电梯集水坑有效储水容积不应小于 2m³ ,集水坑有效水深应按停泵水位线与单台水泵启泵水位线之差计算。
7.3.4 地漏或拖布池不应作为自动喷水灭火系统试验排水设施。
7.4 自动灭火系统
7.4.1 高层住宅建筑的地下室,分隔成供各住户独立使用的储藏间(住宅套内的地下室除外)或自行车库(不含电动自行车库),当该住宅建筑(群)设有自动喷水灭火系统时,地下室应按中危险级Ⅰ级设置自动喷水灭火系统;当该住宅建筑(群)未设自动喷水灭火系统时,地下室可不设置自动喷水灭火系统。
7.4.2 机械停车库自动喷水灭火系统设计流量计算时应附加车架内喷头流量,当仅有 1 层车架时,附加喷头数量按 8 只计算;当为 2 层及以上车架时,附加喷头数量按 14 只计算。
7.4.3 高层住宅建筑供本楼使用的低压配电室、弱电机房不属于特殊重要设备室,可不设置气体灭火系统。
7.4.4 通透性吊顶场所,当通透面积占吊顶总面积的比例不大于 70%时,在吊顶上下方均应布置喷头。
7.4.5 独立建造的大、中型幼儿园及老年人照料设施,应设置自动喷水灭火系统,此类建筑也应设置室内消火栓系统。
7.4.6 柴发机房设置自动喷水灭火系统时,储油间也应设喷头保护。
7.4.7 自动扶梯可仅在扶梯最下部设置自动喷水灭火系统喷头保护。
7.4.8 机械车库车架托板处喷头,可参照货架式仓库喷头选型,采用 K=115 边墙型扩大覆盖面积洒水喷头或 K=80 扩大覆盖面积洒水喷头,喷头最低工作压力K=115 不应小于 0.10MPa,K=80 不应小于 0.20MPa。
7.4.9平战结合的人防工程的防化值班室、滤毒室、防毒通道、密闭通道及简易洗消间等部位,可不设置自动喷水灭火系统喷头保护。
7.4.10 一类高层公共建筑,不计入建筑高度、建筑层数,局部突出屋顶的排风、排烟机房、水箱间、电梯机房等设备间,可不设自动灭火系统和室内消火栓系统。
7.4.11 二类高层宿舍建筑,其房间和走道均应设置自动喷水灭火系统。
7.5 其它
7.5.1残疾人康复中心应按照医疗建筑设置相应的消防灭火设施。
7.5.2 按《建规》第 8.2.4 条的要求,应设消防软管卷盘或轻便消防水龙的建筑,可以与室内消火栓系统合用,设在消火栓箱内。
8 防烟和排烟
8.1 总则
8.1.1 当具有自然通风条件地下室空间利用自然通风防烟或自然排烟时,其楼层数不应超过 2 层,且最底层室内地面与室外出入口地坪高差小于或等于 10 米。
8.1.2 《建筑防烟排烟系统技术标准》GB51251-2017(以下简称《防排烟标准》)第 3.3.1、4.4.2 条中的“建筑高度”按《建规》附录 A 确定;加压送风系统、排烟系统的分段高度按每段系统服务区域的楼层高度之和确定。
8.1.3 屋顶专用风机机房设置原则如下:
1、排烟风机与通风、空调系统风机宜分别设置在不同专用机房内;
2、屋顶不具备设置专用机房条件时,可采用专用屋顶消防风机,且应设置满足防护、通风散热及检修要求的防护罩。
8.1.4 当受条件限制排烟风机的位置远离系统最高服务楼层时,应复核风道阻力和排烟风机的风压值,确保排烟效果。
8.1.5 防排烟系统的风管及风口断面尺寸按计算风量确定,风机风量按设计风量确定。
8.1.6 多个系统共用竖井时竖井截面积按下列原则计算确定:
1、加压送风系统共用进风竖井:火灾时竖井截面积按同一防火分区加压送风系统风量之和的最大值计算;
2、排烟系统共用排烟竖井:火灾时竖井截面积按最大的一个排烟系统的排烟量计算;
3、补风系统共用进风竖井:火灾时竖井截面积按一个最大补风系统的补风量计算;
4、加压与补风系统共用进风竖井:火灾时竖井截面积按 1 和 3 风量之和计算;
5、平时通风竖井与防排烟竖井共用时,竖井截面积按平时风量和火灾时风量取大值计算。
8.1.7 无关管道穿越楼梯间、前室时,应采用耐火极限不低于 2h 的隔墙和 1.50h的楼板进行防火分隔。
8.2 防烟
8.2.1 建筑高度大于 50m 的公共建筑和建筑高度大于 100m 的住宅建筑,主楼投影线以外建筑高度大于 24m 且小于或等于 50m 的部分与主体建筑之间设置防火墙、甲级防火门或特级防火卷帘等防火隔断时,其防烟楼梯间、前室(除共用前室与消防电梯前室合用外)符合自然通风条件时,可以采用自然通风的防烟方式。
8.2.2 共用前室与消防电梯前室合用时应设机械加压送风系统,当其满足《防排烟标准》第 3.1.3 条第 2 款时,相对应的剪刀楼梯间可采用自然通风的防烟方式。
8.2.3 《防排烟标准》第 3.1.3 条第 2 款中,防烟楼梯间采用自然通风的防烟方式时,前室的加压送风口应设置在每个开向前室的疏散门上方或正对面,如条件有限,可以仅顶送或设置在正对每个开向前室疏散门的墙面,但不应正对或贴邻楼梯间疏散门,也不应被门遮挡。见附图 1、2。
附图 1
附图 2
8.2.4 首层防烟楼梯间扩大前室含独立前室、合用前室,除应满足《防排烟标准》第3.2.2条以外,可开启外窗或开口的有效面积尚不应小于该房间建筑面积的3%,且不应小于 3㎡。
8.2.5 《防排烟标准》第 3.1.6 条中“地下、半地下建筑(室)的封闭楼梯间不与地上楼梯间共用”应理解为:地下与地上楼梯间之间没有任何直接连通的开口(包括防火门),各梯段能分别直接出室外,且二者之间隔墙、楼板的耐火极限等参数应满足楼梯间的要求,如下图所示。
8.2.6 除《防排烟标准》第 3.1.6 条规定的地下封闭楼梯间以外,其它封闭楼梯间最底层室内地面与室外出入口地坪高差小于或等于 10 米时,应在外墙上设置面积不小于 1㎡ 的可开启外窗或开口,并应在最高部位设置面积不小于 1㎡的可开启外窗或开口,二者的位置宜满足自然对流条件。
8.2.7 仅服务于 3 层及以下前室或合用前室的加压送风系统,加压送风口可以采用常开风口,且应在每层加压送风口附近设置手动启动装置联动加压送风机开启。
8.2.8 对于在首层不靠外墙的地下室楼梯间,当在其顶部设置直接对外的固定窗确有困难时,地下室楼梯间在首层开向直通室外的门,可作为该楼梯间顶部的固定窗使用。
对于在首层不靠外墙的地下室楼梯间,当其与地上部分楼梯间共用(在首层通过防火隔墙、乙级防火门进行防火分隔),且地上部分楼梯间按《防排烟标准》第 3.3.11 条的相关规定设置了固定窗或采用自然通风方式时,地下室楼梯间在首层与地上部分之间防火分隔用的防火门,可作为地下室楼梯间顶部的固定窗使用。
8.2.9 对于高层病房楼和老年人照料设施的避难间,当采用加压送风防烟时,其加压送风量不应小于 30m³ /㎡ ·h。加压送风系统的计算送风量应按该系统服务的所有避难间计算送风量之和计算。
8.2.10 加压送风系统计算时,相关参数按照以下原则选取:
1、Ak 取值时住宅建筑(含住宅建筑中商业服务网点、地下储藏室、地下车库等非居住功能区域)的楼梯前室可按 1 个门计算。“三合一”前室 Ak 应按 2个门计算;
2、前室小于 3 层时,N1 取实际层数;前室大于或等于 3 层时,N1 取 3;
3、对住宅建筑中的前室进行送风量计算时,子母门(户门)可以按单扇门考虑。
8.3 排烟
8.3.1 无疏散要求、无其它使用功能且周边采取了防火卷帘分隔的面积不大于300㎡ 敞开楼梯、自动扶梯区域,可不设置排烟设施。
8.3.2 民用建筑内无人员经常停留的机电用房(有人员值班且面积大于等于 50㎡的控制室除外)可不设置排烟设施。包括:水泵房、空调通风机房、变配电室、燃油(燃气)锅炉(机组)的机房、换热站、制冷机房等及建筑面积不大于300 ㎡ 的柴油发电机房。
8.3.3 建筑中无人员经常停留且无可燃物的仅供给水排水、采暖、空调水管等布置的管道设备层可不设排烟设施。
8.3.4 住宅建筑商业服务网点、地下储藏室等非居住功能区域中防烟分区的最大允许面积及其长边最大允许长度应按照《防排烟标准》第 4.2.4 条中的公共建筑相关条文执行。
8.3.5 电影院、剧场、音乐厅的观众厅排烟量应按《电影院建筑设计规范》(JGJ58-2008)第 6.1.9 条(按 90m³/(㎡.h)或 13 次/h 换气次数计算取大值)和《防排烟标准》第 4.6.3 条分别进行计算,并取其中的最大值作为计算排烟量。
8.3.6 医院洁净手术室对细菌浓度和空气含尘浓度有严格要求,排烟风管、补风风管及风口设于其中会造成院感风险增大。可以将面积不大于 75㎡ 的洁净手术室的排烟口、补风口设于与之相通的公共区域(如洁净走道、清洁走道等)。相应公共区域的防烟分区面积应附加最大洁净手术室的面积,计算排烟量按《防排烟标准》第 4.6.3.1 条执行。
8.3.7 同一个疏散走道,由内设的门划分为多个防烟分区时,每个防烟分区(包括长度小于 20 米的走道)应设置排烟设施,其排烟量按《防排烟标准》第 4.6.3条计算。
8.3.8 主体宽度不大于 2.5m 的走道,当其局部变宽(该局部的累计长度不超过该走道总长度的 1/4,变宽的宽度不超过 6m、功能仍为走道性质)时,该走道防烟分区的长边长度不宜大于 45m。
8.3.9 对于净高小于或等于 3m 的房间或走道,其机械排烟系统的单个排烟口最大允许排烟量可按《防排烟标准》第 4.4.12.7 条规定的排烟口最大风速(10m/s)计算确定。
8.3.10与走道或回廊相连通的所有房间(除配电间、卫生间及管井外)均设有排烟设施时,走道或回廊的机械排烟量可按 60m³ /(㎡ .h)计算且不小于 13000m³ /h或设置有效面积不小于走道、回廊建筑面积 2%的自然排烟窗(口)。
8.3.11《防排烟标准》第 4.6.4 条中所谓“相同净高”,是指一个排烟系统所承担的多个防烟分区的建筑空间净高均大于 6m,或均小于等于 6m;所谓“不同净高”,是指一个排烟系统所承担的多个防烟分区的建筑空间净高,其中部分防烟分区的净高大于 6m,部分防烟分区的净高小于或等于 6m。
8.3.12 净高大于 6m 且不高于 18m 的高大空间采用了符合《自动喷水灭火系统设计规范》GB50084 要求的有效喷淋灭火措施时(包括自动消防水炮系统,不包括雨淋系统),可按有喷淋确定排烟量;净高大于 18m 的高大空间采用水炮时,应按无喷淋确定排烟量。
8.3.13 对于新建地下车库内配建充电设施的防火单元,其排烟系统应独立设置,不应与汽车库其它非充电设施区域共用;当独立设置确有困难时,同一防火分区内相邻布置的两个防火单元可共用一个排烟系统,系统排烟量可按一个防火单元确定,但排烟量应在《汽车库、修车库、停车场设计防火规范》GB50067 相关规定的基础上增加 20%。共用系统的设置尚应满足以下要求:每个防火单元应单独设排烟口、补风口,同时采取可靠的控制措施保证防火单元排烟量、补风量满足要求。
8.3.14 建筑中贯穿二层且连通空间的投影面积小于 100㎡的空间,系统排烟量可按照以下原则计算:
1、建筑空间净高大于 6m,可按照《防排烟标准》第 4.6.6 ~4.6.13 条的规定计算确定;
2、建筑空间净高小于 6m,可按照《防排烟标准》第 4.6.3.1 条执行。
9 电气消防
9.1 供配电系统
9.1.1 消防用电设备应采用专用的供电回路,当建筑物内附设有变电所时,应由变电所起自成系统,当建筑物内仅有低压进线时,应自进线处起开始自成系统。
9.1.2 《建规》第 10.1.8 条“消防控制室、消防水泵房、防烟和排烟风机房的消防用电设备及消防电梯等的供电,应在其配电线路的最末一级配电箱处设置自动切换装置”,根据《民用建筑电气设计标准》GB51348-2019 第 13.7.11 条除消防水泵、消防电梯、消防控制室外,各防火分区的消防风机最末一级配电可安装于本防火分区配电小间或电气竖井内。
9.1.3 安装在现场的防火卷帘、排烟窗、电动挡烟垂壁、消防潜污泵、消防炮等控制箱(柜)应满足该消防设备火灾发生期间最小持续工作时间要求,不满足时应设在相应防火分区配电间或竖井内。
9.1.4 除商业服务网点外,住宅建筑与其他使用功能的建筑合建为组合建筑时,该建筑消防电源的负荷等级应根据该建筑的总高度和建筑规模按《建规》第5.4.10.3 条执行。
9.1.5 供给消火栓、喷淋管道防止冻裂的电伴热用电,不属于消防负荷,其供电负荷等级不应低于二级负荷。
9.2 消防应急照明系统
9.2.1 集中控制型系统中,采用消防专用应急回路沿电气竖井为竖井内的分区集中电源供电,可以等同于同一防火分区的楼层消防电源配电箱供电,每条消防专用回路供电容量不宜超过 5kW。
9.2.2 第二电源采用柴油发电机供电时,消防控制室、消防水泵房、自备发电机房、配电室、防排烟机房以及发生火灾时仍需正常工作的消防设备用房的备用照明灯具应自带蓄电池,并应满足转换时间要求。
9.2.3 消防应急照明集中电源不应设在消防风机房。
9.2.4 剪刀楼梯间两部楼梯设置的消防应急灯具,均应单独设置配电回路。
9.2.5 未设火灾报警系统的建筑,当室外设有消防控制室时,该建筑内消防应急灯具的控制方式可采用非集中控制型系统或集中控制型系统。
9.2.6 火灾状态下,自动扶梯上方或侧上方设置的消防应急灯具光源应急点亮的响应时间不应大于 0.25s,不满足要求时,应选择持续性灯具,并应确保灯具的光源始终处于应急点亮的状态。
9.2.7 地下车库 A 型消防应急标志灯具的设置:
1、设置在疏散通道上方吊装,标志面与车行方向垂直;
2、设置在疏散通道两侧,距地 1 米以下的墙面、柱面上。
9.2.8 地下车库设置的车行道指示灯,不应接入消防应急照明和疏散指示系统。
9.2.9 下列商业服务网点应设置消防应急照明灯具和消防应急标志灯具:
1、建筑面积大于 200㎡的营业厅;
2、商铺内最远点至通向商铺门直线距离超过 15m 或不能直接看到出口的场所。
9.2.10 消防应急灯具在墙壁或顶棚设置时,任一配电回路配接灯具的数量,应按《消防应急照明和疏散指示系统技术标准》GB51309-2018 第 3.3.5 条执行。
9.2.11 建筑内设置消防应急照明系统时,开敞式楼梯间应设应急照明和疏散指示标志灯具。
9.2.12 变配电室、消防控制室、消防水泵房、自备发电机房应设置消防应急照明和疏散指示标志灯具。
9.2.13 电井不属于发生火灾时,仍需工作、值守的区域,可不设备用照明。
9.2.14 不应采用蓄光型指示标志替代消防应急标志灯具。
9.3 火灾自动报警系统
9.3.1 防火卷帘两侧设置的专用火灾探测器,报警线路可接本防火分区的报警回路或防火卷帘控制器。
9.3.2 设置火灾自动报警系统的建筑,水泵房控制室或与控制柜合设的水泵房应设置感烟火灾探测器。
9.3.3 消防电梯轿厢内部应设置专用消防对讲电话,当电梯五方对讲系统主机设置在消防控制室内,且相关通信线路满足《火灾自动报警系统设计规范》GB50116-2013 第 11.2.2 条规定时,可用电梯五方对讲的轿厢分机替代消防电梯轿厢内部专用消防对讲电话使用。
9.3.4 依据《建规》第 8.4.1.13 条,联动防火卷帘、常开防火门、自动排烟窗、挡烟垂壁,可局部设置火灾自动报警装置,应发出火灾警报。
9.3.5 不需要设置火灾报警系统的社区活动中心,只有局部为“老年人活动室”,可以采用独立式烟感火灾探测报警器。
9.3.6 设有集中报警系统或控制中心报警系统的场所应设防火门监控系统、消防电源监控系统、电气火灾监控系统。
9.3.7 设有火灾自动报警系统的住宅建筑,当有常开防火门时应设防火门监控系统;除住宅外的其他建筑设火灾自动报警系统时,应设防火门监控系统。
9.3.8 机械加压送风系统宜设有测压装置及风压调节措施,具体根据暖通专业要求设置。
9.3.9 住宅楼梯间可以每 3 层设置一个应急广播扬声器,其他建筑应层层设置。
9.3.10 住户内设置的可燃气体探测器类型、位置与采用的燃气类别相关,该系统可自成独立系统,与火灾报警系统无关。
9.3.11 建筑(群)未设置火灾报警系统时,为其服务且单独建造的消防水泵房消防联动设备应设在有人值班的房间。
9.4 电气线路
9.4.1 消防应急照明和疏散指示系统、火灾自动报警系统的传输线路暗敷管线可采用金属管、可挠(金属)电气导管或 B1 级及以上的刚性塑料管保护,其余消防配电线路、消防联动控制、自动灭火控制、通信等暗敷管线应穿金属管敷设。
9.4.2 《建规》第 10.1.10 条中的“电缆井、沟”是指建筑物内除变电所以外的电缆竖井和电缆沟。
9.5 其他
9.5.1 民用建筑中的柴油发电机房柴油闪点大于 60°时,属于丙类液体,不需要按照爆炸危险环境进行电气设计,储油间也无需设可燃气体探测装置。
各单位如对《解析》有疑问和建议,请反馈至山西省住房和城乡建设厅建设工程消防监管处(电子邮箱:zjtxfc2021@126.com)。
主编单位:山西省建筑设计研究院有限公司
主要起草人员(排名不分先后):
建 筑:冯高磊 杜艳哲 王淑芳 樊燕青 乔俊贤 任 敏 任彦萍
给排水:卫 莉 李 宁 朱泽荣 金 丹 冀艳蕾 王文杰
暖 通:朱宝仁 程 权 张 艳 王康成 朱世伟 童雁群
电 气:陈志萍 张晓燕 王晓红 张 莉 栗廷艳
顾 问:张耀泽
主要审查人员:王宗存 单立欣 朱 鸣 姜 宁 熊 江
延伸阅读:点击查看
本资料声明:
1.本文为建筑设计技术分析,仅供欣赏学习。
2.本资料为要约邀请,不视为要约,所有政府、政策信息均来源于官方披露信息,具体以实物、政府主管部门批准文件及买卖双方签订的商品房买卖合同约定为准。如有变化恕不另行通知。
3.因编辑需要,文字和图片无必然联系,仅供读者参考;
建筑相关规范
▼点击收藏搜建筑小程序
下载cad户型、SU模型等
搜建筑网站www.soujianzhu.cn
↓↓↓ 更多精品,搜建筑网站
↓↓↓ 下载户型,CAD文件