混凝土,已经成为当代建筑设计中最主流的材料之一。它灰白的色彩、浇筑成的清晰形状和线条,带着天生的疏离气质,这使它成为现代人生活方式的绝妙注解。而混凝土的粗糙、质朴,又能让生活在都市丛林中的人,有机会瞥见曾经的田园诗意。
"THE PLUS爱设计"是我们推出的最新系列,希望从不同的视角与大家分享世界各地优秀的建筑和室内设计作品。
本期文章,我们将目光投向混凝土,看世界各地的建筑设计师们如何采用这种材料,打造令人惊艳的房屋。
项目名称:JK House
建筑地点:巴西,Pato Branco
建筑面积:378.0m²
项目时间:2017
首席建筑师:Michel Macedo
摄影师:Eduardo Macarios
结构与自然是JK House设计的两大基石。设计师将混凝土的建筑元素融合到巴西巴拉那州美丽的山谷景观中。整栋建筑仿佛是嵌入当地自然环境的一块大石,沿着地势自然延伸。
从外墙到内部设计,JK House在混凝土和木材之间寻找巧妙的平衡点,辅以干练的金属线条,整个建筑散发出简约大方的气质。
住宅一共两层,下层生活空间与游泳池通过一块木质平台连接,让主体空间得到了充分的延展。
顺着楼梯往上,则进入了更加私密的空间。房间窗户面向东方,在那里太阳升起,山谷依稀浮现。
设计团队相信,这个项目展现了对人类居所的反思——自然和土地,技术和材料在此场景中永远共存。
Floor Plan
▼
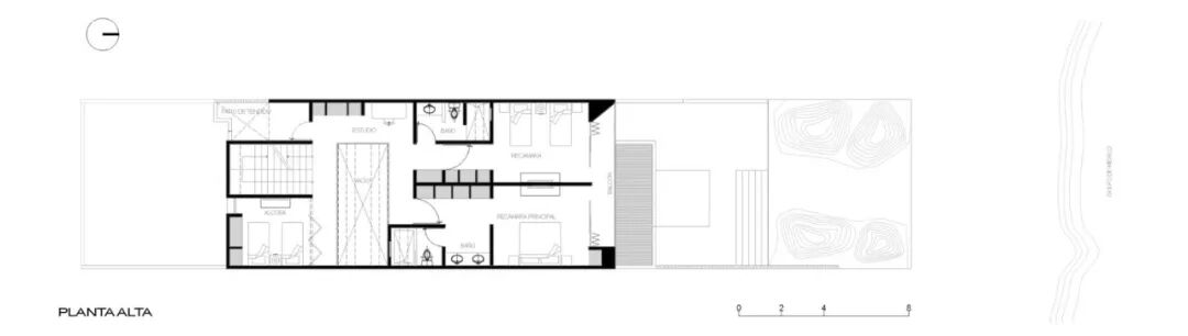
▲一层平面图
▲二层平面图
▲平面图
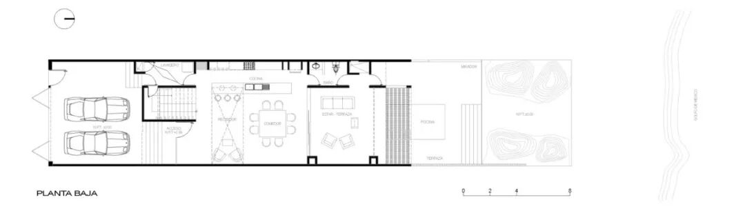
项目名称:Chuburná House
建筑地点:墨西哥,Chuburná
建筑面积:260.0m²
项目时间:2018
首席建筑师:Enrique Cabrera Peniche
摄影师:Tamara Uribe
Chuburná House 坐落在尤卡坦海岸的一个僻静的海滩上。四周几乎没有其他建筑,更显得这栋混凝土建筑像西海岸港口绿松石海滩上的一座雕塑。
这个庞大的"水泥盒子"传递出冷静而又强大的力量,使其成为海岸这一带的建筑典范。
巨大的落地窗使光线穿透整座房子,在一楼区域营造出一种独特的氛围,可以在这里放松、阅读和冥想。
在建筑的上半部分,窗户成为了与外部环境进行交流的绝佳通道。站在窗边一览大海的浩瀚,思绪也肆意飘扬。
房屋采用相对简单的室内装饰——尤卡坦半岛的手工艺品,加上素雅的色调和纹理使它成为一个理想的居所和避风港。
为了使空间感受和采光达到最佳,建筑团队选择了抛光混凝土,灰色调与随处可见的木材形成了非常和谐的对比。
客厅,餐厅,厨房和阳台都被打造成相对独立的空间。小双高度将上下两层打通, 使得身处其中的人感到自在。
从主体空间到半室外的水池,当中没有任何分隔。这个区域是房子的一大亮点,因为它与内部空间完全贯通,让居住者在室内就能轻易触碰到自然。
Floor Plan
▼
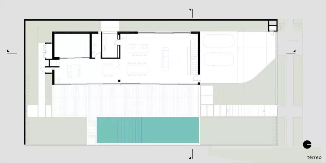
▲一层平面图
▲二层平面图
▲三层平面图
项目名称:Morumbi I Apartment
建筑地点:巴西,
建筑面积:415.0m²
项目时间:2017
首席建筑师:Caroline Gabriades
摄影师:Marco Antônio
由CGA建筑事务所改造的公寓Morumbi I,展示了混凝土在建筑上应用的另一重潜力。
虽然在天花板和横梁处大面积使用混凝土,但白色墙面与浅色木地板,再加上时尚简约的装饰,中和了混凝土带来的厚重和压抑,使得公寓具备了踏实和轻盈的双重特质。
建筑团队在改造期间的决定倾向于整合空间、利用已有的结构,使厨房、餐厅和户外之间的过渡成为一种流动的体验。
厨房和餐厅融合,打开了2.4米的跨度,提供了绝佳的聚会和交谈空间。
室内装饰和家具选择的最终目的是打造出一个和谐的整体。改造团队选择了将古典和现代的装饰并置。这样的组合有时能像拆掉一面墙一样释放空间。
Floor Plan
▼
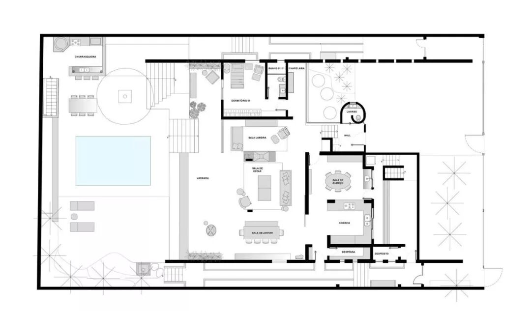
▲一层平面图
▲二层平面图
项目名称:HOUSE IN PYRGOS
建筑地点:希腊,Pyrgos
建筑面积:300.0m²
项目时间:2018
建筑事务所:Kapsimalis Architects
摄影师:Giorgos Sfakianakis
由Kapsimalis Architects打造这座住宅位于圣托里尼传统村落Pyrgos的郊区,朝向西南,周围环绕着葡萄园,面对着爱琴海。
该建筑事务所感兴趣的是建筑如何成为景观的组成部分。当地粗糙的火山景观,材料的多样性,原有的建筑传统和多变的天气条件对他们的设计过程产生了很大的影响。
整座建筑可以分为三栋独立的房子,每个都配有私人户外空间。行走其间就好像穿越在巨大石制积木间,每一处的几何和线条都值得欣赏和玩味。
设计师希望可以打造出人工岩石,让它也如自然界的万物般,被时间侵蚀和打磨。
在团队的巧思之下,建筑仿佛是一个灵活的几何玩具,以不同的方向旋转,一些部分被分割重组,在每个主体之间留下半开放和户外通道。
住宅采用了传统的圣托里尼拱形屋顶,借鉴了古老防御工事外部的塔楼造型,尝试刻画出岛上的建筑历史。
建筑的承重结构是用钢筋混凝土建造的。墙体采用了当地的黑色石材、砖块和隔热材料,涂料和外部地板也采用了彩色土灰泥。内部表面采用白色石膏和白色马赛克。
Floor Plan
▼
▲一层平面图
▲二层平面图
▲三层平面图
项目名称:Perfect Storm Loft
建筑地点:澳大利亚,Camperdown
建筑面积:73.0m²
项目时间:2019
建筑事务所:Killing Matt Woods
摄影师:Kat Lu
Perfect Storm Loft是对Camperdown一处内城仓库的改造和重建,目标是打造极简主义概念的舒适居所,一个没有杂乱元素和视觉污染的空间。
作为一个"混凝土掩体",公寓的外形展现出设计师对野兽派建筑的偏爱。主要意图是创造一个极简的几何空间,并融合社区内的工业气质。
朝西的开放式公寓设有开放式厨房、夹层卧室和小露台。从上层可以俯瞰客厅空间。阁楼充满了来自通高玻璃墙的光线,宁静又温馨。
室内设计摒弃了老套的工业仓库美学,让"去物质化"成为核心概念,所有的元素都被缩减到最基本的部分,每一个设计决策都根植于可持续性的理念
整个公寓像形一个类似洞穴的庇护所,同时又私密、温暖、实用,充满家庭气息。
值得一提的是,项目在建造过程中其实鲜少使用水泥。"固体"混凝土元素是玻璃增强水泥(GRC),重量比传统的混凝土要轻得多。
Floor Plan
▼
▲一层平面图
▲二层平面图
往期建筑设计专题回顾
点击图片,阅读全文
💡
Send to Author