位于深圳市福田区的福强小学创办于2002年,原有24个班级。在近20年的时间里,随着学校的发展和由“升学教育”到“创新教育”的改革推进,原本的校园已经无法满足对培养创造性人才及其创新驱动能力的需求。因此,校方于2018年开始进行校园整体升级,除了要求增加12个班级外,还要具备更加现代的、可全方位进行创新教育的教学与活动空间。
彼时,北京的众建筑设计团队已经取得B Corp认证,并持续深耕于教育、办公、居住和城市更新等领域,以多学科交叉的创新设计方式实现社会影响力。他们认为教育类建筑改造可以回应并解决一定的社会议题,于是接下了福强小学扩建设计的指挥棒。在该项目中,他们专注在化解传统校园布局与新教育理念、城市界面及社区之间的矛盾,在变革中寻找教育建筑的新范式,最终完成“学习层台”这一支持创新学习模式的全新校园。
改造前的校园主要由L形布局的传统教学楼、体育馆及操场等组成,整体场地被占据较满。但由于前期未进行系统的规划设计,校园更像是将基础功能块简单拼搭后的封闭围合,空间布置利用率较低,也缺乏校园的全局性观感。众建筑所面对的有机更新既非大拆大建也非单纯去垒砌更多功能,而是以当下语境和眼光对既有事物重新审视和梳理、探讨学习空间的多种结构形态,进而在空间有限的条件下扩建,并能保障甚至获得更理想的空间质量。
学习层台——设计推演
在扩建之前,首先要处理场地困境。众建筑将位于东北侧的体育馆及其附属部分拆除,在尝试了各种可能性之后,原本南北向的操场被旋转了90度与原教学楼平行,这是一步较大的改变,为接下来的扩建设计留出足够可以被重新整理和利用的场域。被保留的建筑部分依然作为基础教育的空间,但设计做出了“补笔”,将从前稍显不完整的部分填充,并以“日”字形的平面形态连接,让交通组织贯穿整个的教学楼空间。
上图:总平面图
下图:鸟瞰图
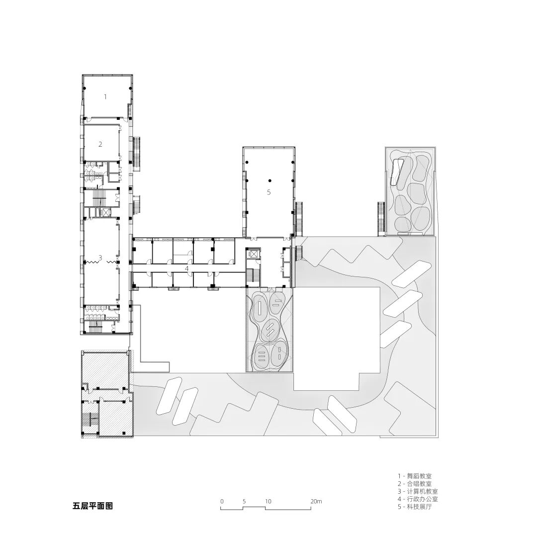
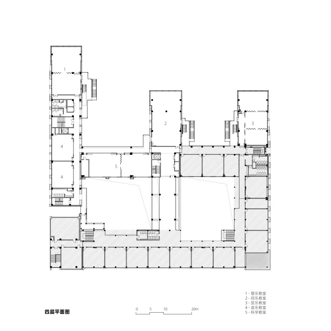
设计扩展的重要一步便是将经过完形处理后“日”字中的三条“横线”向北延伸,其中西侧部分完全伸展至校园红线边缘,而中间面北一侧则将底层架空,上层探出至操场上方。这些增加的空间主要被用作综合及特殊教育场地,例如音乐舞蹈室、图书馆、学生活动中心等,在功能方面保证了全面素质教育的物理载体需求,同时也自然流畅地与原有建筑新旧衔接。
上图:鸟瞰图
中图:北侧庭院
下图:从操场看向悬挑玻璃教室
建筑体块分布确定后,在内向的立面上有机添加了露台等灰空间,让从前完全上下对齐的走廊式布局增加了凹凸错动和灵活变化,丰富建筑层次的同时,在多维的视线交流中也让体块的不同部分之间产生更多联系与呼应的机会。
上图:教学楼窗洞立面
中图:屋顶观景鸟瞰
下图:不同层台活动
学习层台在没有扩充用地红线的基础上,增加校园规模和教学空间,这样的改造势必会导致空间密度的增加。从传统观点来看,低密度的校园由于空间足够,设计通常可以将所有功能条分缕析地各归一处,排布得异常清晰;而高密度的校园则是一个相对“不利”的基础条件,因此必须有意识地考虑将不同功能空间集中放置在一起。众建筑则抱持积极视角,高密度空间对改造设计带来挑战的同时,也提供了做出更“有意思”的设计机会。
轴侧爆炸图
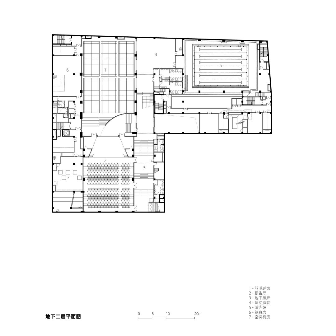
为提高校园整体使用率,设计将旋转后的操场向上抬高约3m,向下深挖约6m,形成地下一层完整的空间,主要用于游泳馆、羽毛球馆、报告厅等功能。9m的净高,可满足学生们在室内部分的体育综合活动尽情发挥,而周围高侧窗和楼梯间隙也将自然光和通风引入地下活动场域。多层立体的体育活动空间不仅为学生们提供了更加多样的体育运动选择,同时也以开放的姿态与城市共享,定期面向社会开放。
地上新扩建的部分主要包括特色悬挑教学教室,例如:民乐、美术、书法和手工教室,被保留的南侧建筑部分则多作为固定的传统教室,保证充足的自然采光,也明确了校园的动静分区。
上图:南北区透视图-朝西
下图:南北区透视图-朝东
下图:鸟瞰图
“混合空间”的理念也在众建筑团队的屡次推敲中诞生:为激发师生的探索热情、好奇心与想象力,设计将不同的课程、活动在空间中并置交叉,提供跨层的全新联系。除了标准教室、特色教室与运动场相邻以支持跨学科互动之外,与地下层羽毛球馆相邻的空间全部设置窗口连通视线:学生在游泳馆中畅游换气的一瞬,可以看见同伴抛起的羽毛球恰好升至空中弧线的顶点;在羽毛球场挥汗的健儿也可以看见对面多功能厅正在排练剧目朋友们的表演。这些原本并无关联的功能被连接在一起,为使用者的感官提供了另一种可能,即在同一的时空中,存在着不同的类型,同样的精彩,而这些精彩与活跃是可以互动交流、因原有严格分明的空间界限被打破可以共同分享的。
上图:运动场
下图:报告厅
“我们希望将原本不利的条件转化为对创新教育有利的情况,在不同的教学阶段可以碰撞出新的火花。”众建筑联合创始人何哲这样回答,“例如科技和艺术的碰撞会产生什么?体育活动和阅读碰撞会产生什么?我们并不知道结果,但学生们在这里自发交流,也许会看到独属于他们的惊喜与奇景。”
上图:多空间联通关系
下图:西侧局部轴侧爆炸图
大尺度的屋顶花园、中尺度的内院、小尺度的天台都是不同的户外学习空间,此外还有内向连接各个功能的台阶、平台与通道,例如轻盈的外挂楼梯可以让学生迅速从教室到达操场,在奔跑间望见伙伴们正在进行的活动。整个校园的气脉被打通,形成了一套可以独立循环又息息相关的生长中的校园景观,多样的空间使得师生能够根据不同的年龄和兴趣,灵活的开展教学体验活动——每一处都值得驻留学习,而学习的内容不仅仅是教育的基础知识,还有通过观察与感受所能获得的自信心建立、对自然的善意好奇和对集体的归属感与凝聚力。
上图:屋顶绿化与层台关系
下图:走廊与窗洞活动发生
扩建后的福强小学受到了体育老师们的一致钟爱,他们可以根据自己的课程选择最合适的教学空间:操场上方延伸出的架空部分投下一片阴影,雨天或烈日下可以在这里活动;当班级被分成小组运动或竞技时可以在户外任一小平台甚至半室外走廊进行;多个班级活动或队列演练时,大操场的整体情况也可以在校园内多个角度被看到。设计在校园内制造了可以穿越空间的、多层次的视线交流,孩子们可以耳闻目睹各种从前未参加过的活动,于是在不经意间寻找到新的兴趣点,众多“集体空间”的出现也为师生们广泛增加了能够真正展示自我和看见他人的机会。
上图:教学楼窗洞立面局部
下图:北侧庭院
福强小学被周边大量的住宅生活区包围,是一个与社区关系非常密切的学校。本着“校园并非孤岛,城市生活也是学习之重要部分”的理念,众建筑在扩建设计中也将校园与城市界面、交通连接、社区运动场等多方面的关系纳入考量。
上图:学校入口
下图:北侧城市立面
部分走廊空间被拓宽的平台上设计了许多规整排列、倒圆角的窗洞,这些窗洞尺度经过仔细推敲,设计为落座区域,可满足单人阅读静思、多人活动讨论等功能,学生可以自主选择、灵活使用,对喜欢独处或需要一对一研讨的学生而言,强烈的包裹感也提供了一定的私密性。
走廊与窗洞活动发生
设计以白色金属网统一立面上层,部分金属网将机电设备美化遮挡的同时,也影影绰绰透漏出原本被保留的部分,学校历史阶段的记忆并没有被消解,而是映照着这里每一天越来越丰饶的变化,不断向前。除此以外,自然被以多种方式邀请至校园:立面爬山虎等藤蔓植物的枝叶缠绕、东南侧主入口4层通高的叶片绿幕墙,以及屋顶以“地理园”为概念打造的第五立面景观空间,真正将设计与自然教育相结合,在天光的沐浴下,留有一隅让城市中的孩子们可观、可感、可触及的鲜活世界。蓝绿色系的基调统一校园的色彩,如同都市中一片生机盎然的绿洲。
上图:校园立面绿化
中图:西南侧庭院
下图:植物观察体验
在建筑向北延伸至端头的三个立面全部采用全景落地玻璃窗,这里提供了学生与城市街区环境真实联系的机会。强调动作、体验和表现力的创新学习,例如管弦乐与民乐排练的空间占据了悬挑玻璃教室,立体而动态地叠加出学习层台创造性的教学特色,音乐表演、艺术创作和舞蹈排练等活动自然展现在“观众”眼中。
城市即是教室,学生通过感知真实的、书本之外的知识以习得寻常生活的经验;教室也是城市,因为教室中所培育的是城市未来的建设者,他们所进行中的点滴也越来越获得社会的关切与正视。正如众建筑的联合创始人沈海恩所说,“我们想把社会、设计、学习、交流和玩耍串联在一起,这些综合的连结是对所处环境情况的反馈和演绎,同时也代表着我们在扩建改造时的积极态度和思维方式。”
西侧外立面
扩建后的福强小学投入使用已有近一年的时间,众建筑联合创始人臧峰几次现场回访时都观察到意外之喜,“我看到有学生在足球场直接喊话给对面教学楼在洞口休憩区的同学,而那个同学也竟然挥手欢呼着即时回应了他,也许孩子们作为使用者才是最知道怎样善用空间的人。”每天下午4点30分,学校的基础教学课程结束,课外兴趣社团活动也正式拉开帷幕,丰富多样活泼的形态映照在建筑北侧的落地窗上,校园外在福强路公交车站等车的人们透过这台雀跃的城市剧场,似乎可以隐约描绘出城市来日的轮廓。
臧峰补充说,“其实我们自己也是学生,周围的环境、使用者所提出的需求都是老师。可能我们无法直接想象或创造未来的图景,但作为建筑师,我们可以把能激发想象、交流与创造力的平台提供给他们,从而间接、积极地影响与承载社会的未来。”
在高低不同平台上交流的学生
卷宗Wallpaper*简称 W*
W*:众建筑摸索并形成了一套独特的指导原则,旨在营造创新的学习环境。众建筑为什么会将“创新”作为教育类空间特色的重要标准及学生成长的最重要品质之一?
PAO:信息时代新世界对人的要求是多元化、复合型、创新性,以面对多变、复杂、快速的社会挑战。因此,教育变革以改变原有工业革命时期兴起的标准化教育模式。个性化、体验式、合作式互动式的新教育方式纷纷涌现,教育形态也在积极创新。在这一背景下,作为教育的载体,空间也同样需要寻求创新,我们将灵活,开放,互动等角度置入到教育建筑的评价体系中,创新的目的是为了更好地促进教育的创新。
这样的环境与教育能够带来具有自驱力、好奇心、社交力强的孩子,而这些正是面对不确定勇于探索的人所具有的重要品质。
南北庭院链接阶梯
W*:为什么会形成“让校园与城市双向展示”的设计理念?
PAO:学生应该学习抽象的概念和想法,但也要与现实世界保持联系。教育应与社会联系在一起,并与社会互动。学生不仅在校内学习,也在校外社会学习。
学校有许多面向公众的空间,也在节假日向社会开放,共同分享使用公共资源。同时设计也认识到学生的不同需求,提供了许多亲密和安静的空间。
北侧庭院
W*:“混合空间”的概念是否是“STEAM教育理念”在建筑设计中的具体反馈?
PAO:STEAM的目标是解决现实问题,其中重要的想法是培养跨领域综合创新的能力,打破学科边界,提出针对真实问题的解决方法。而国内多数学校将STEAM被简化为机器人、乐高等短期小范围的学习项目。
我们在福强小学尝试了将各个功能空间混合放置,以增加行为或视线的联系、促发交流、引发好奇心与驱动力,进而产生学习与社交的动力。例如图书馆与操场、普通教室与特色教室的便捷到达,剧场与羽毛球场、社区球场与游泳馆的视线连接等。这与STEAM的教育路径有相似之处,都在营造打破边界,跨越专业的环境。
此外,混合空间也是高密度城市空间关系在校园中的一种尝试。不同使用功能并置混杂在一起,会形成一种意想不到的空间活力。通过混合空间把高密度转化成一种优势。
滑动查看:完整平面图
W*:在扩建过程中,除了很好地完成现在的教学需求,设计是如何保留并尊重原有建筑部分并与之和谐统一的?
PAO:福强小学的新建部分缝合了原教学楼的平面网格结构,并从网格向南生⻓出三条逐层升高的新教学楼。原有校园空间关系得到延续,同时又实现了开放性的变化。
我们也利用色彩、金属网、空间尺度等方法,将新老两部分联系在一起,新旧两部分清晰辨识,学校的丰富历史不会丢失。同时学校呈现统一的设计。
也整理老建筑的功能布局,使老建筑空间更加聚焦于基础教育部分,新建建筑空间聚焦于特色教育部分,空间分区合理,交通便捷。
此外注重保留原有校园的元素,例如校园色彩,中庭榕树,尽可能使用原有校园元素,保留原有校园的记忆。
西南侧庭院
W*:教育改革已成为社会瞩目的议题,建筑师在此浪潮中将承担何种角色?怎样参与并促进教改的发生?
PAO:我们认为人们对空间如何影响学习知之甚少,在这个话题上还有很多值得探索的地方。我们希望学生和教育工作者充分利用空间来支持所有不同形式的学习,而不仅仅是阅读、写作和听力。如果学生能够了解环境如何影响他们的教育,那么作为成年人,他们将希望学习如何改善他们的环境。全球变暖,城市化和公共卫生是我们这个时代最紧迫的问题。希望教育的进步将使我们更好地应对这些环境挑战。
卷宗Wallpaper*简称 W*
深圳市福强小学党支部书记、校⻓柯坚林简称柯
W*:请问福强小学的办学理念是什么?
柯:福强小学的办学理念是“福果强根,绿色发展”。以此为根基,我们也提出了诸多方面的具体思路,例如“阳光课堂”、“生态校园”等。我们目标是培养“三好一有”的学生,即阅读好、运动好、习惯好、有特⻓;这四个方面是教学中侧重的核心能力,也是在当代教改发展环境下,为了学生们能够适应未来变化的综合素质。
北侧庭院
W*:扩建校园投入使用后,学校主要有哪些方面的提升?
柯:首先从教育者的角度而言,校园最大的改变是我们全新的课程教学有了承载的空间。无论是传统的基础文化课的学习或是综合性的体育、美育等新型内容,在校园中都可以找到恰当的物理空间落实教学活动;从学生角度来看,便捷性和实用性是改造后的很大提升,他们是空间的使用者也是第一受益者,在不同空间发展各自的兴趣爱好、进行丰富的课余活动、培养和同学们之间的友好关系,都成为真切可实现的内容;再从管理者的需求出发,便于管理也是升级后校园的一大特色,例如体育活动空间的集合性并置,消弭了很多管理上的安全隐患,同时也推进了学校与社会共享体育空间资源的初衷。
福强小学面向社会时有着相对开放的校园环境,我们更愿意把这看做是一个城市会客厅,抓住机会向大家展示在学校内发生的学习活动,因为教育是全社会都在关注的内容。
学校入口
W*:作为使用者,未来的教育变革生态将呼唤与期待怎样的建筑设计创新?
柯:第一是“好看”。好看的校园需要让传统与现代相结合,特别是对于改扩建的项目,不可以完全抛弃校园的历史记忆,保留它们才能够让学子们有归属感;但同时还要有符合现代理念的特色,因为教育本身在不断进步和改革,所以教育空间也要相应地承担起它的物理角色。
第二是“好用”。建筑师在考虑空间的时候,脑海中必须要有建筑被使用时的情景,明确知道课程的需求和目的是什么。这就意味着他们要将使用者的行为模式和感受真正带入,通过频繁而有效的对接沟通,让教学活动和建筑空间相结合,而非进行大量“标准化”的设计。
第三是“好管”。我们对于学生这一群体的安全要有足够的管理预案,因此建筑师还需要考虑到管理流线和方式,动静分区的设计足以让高密度校园仍然可承载丰富多样的课业活动的同时,保持有序良好的管理条件,这是我们作为使用者非常欣赏的。
教学楼走廊立面上逐渐丰茂的绿植
摄影:朱雨蒙
撰文:姜杳冥
编辑:Ruihan
编排:穆越彪