每年圣诞季来临,全世界都在等两件东西——John Lewis百货的催泪广告和伦敦Claridges's酒店的时装大师圣诞树。在老佛爷操刀的圣诞树现身Claridge's圣诞季大堂前,酒店传奇的棋盘格大理石地板已矗立过Dior、Lanvin、McQueens、Gabbana和Burberry加持的圣诞树。
▲ Burberry和Gabbana分别用雨伞和童话装点Claridge's圣诞树
不过,能在奢牌酒店竞争最激烈、客群最挑剔的伦敦稳居“第一梯队”近两个世纪,古老的Claridge's可绝不靠“倚老卖老”或耍弄“设计师圣诞树”等把戏胜出。趁老佛爷圣诞树刚刚点亮,和各位一同走这座“白金汉宫别馆”、BBC最佳纪录片主角、以及世间最会跨界的酒店。
BBC眼中的Claridge's
我看了几乎所有的酒店纪录片,但最爱的唯有NHK描绘东京大仓主楼闭馆前72小时的《别了,老字号酒店》和BBC跟拍一年完成的《Inside Claridge's》。NHK用短短25分钟把人看得热泪盈眶,而BBC眼中的Claridge's让人整整3小时都处于亢奋状态。
《Inside Claridge's》描绘了时任总经理Thomas Kochs统治下的Claridge's。其中记录了每天凌晨擦拭百万英镑身价吊灯的800个水晶部件的员工、即便喧闹也很悦耳的大堂等日常。
▲ 钱确实能砸出各种,但很难砸出比播音员还播音员的接线员、对付刁钻问题完胜新闻发言人的电梯操作员、姿态美若芭蕾舞演员的服务生......人们打电话到Claridge's为了听比广播更动听的天气预报、诉说他们的不悦、或者希望和女王通话。
也记录了接待天皇、大规模装修、奥运期间运作Noma快闪餐厅(让宾客吃丹麦蚂蚁)、启用Alber Elbaz操刀Lanvin圣诞树等华丽挑战。
▲ 为了只住几晚的客人而对浴室进行“砸旧迎新”,对Claridge's而言就像换个灯泡般轻快,片中的这个浴缸是为“日本布兰妮”准备的,带35个随从,她一定是滨崎步吧?
Claridge's才不用“保级”验证客人忠臣度,这里工作几十年的员工和从小住到老的客人都有好几打不说,很多常客退房时只带走随身物品,酒店会把余下的全数收走、清洗、入库,并为临走时的客房拍照存档。
待住客再次回到Claridge's,不管他续住3个月还是1晚,无论私人物件能堆几座山,一律全数搬回房内,按原照片分毫不差地归位,这样的酒店才配自称“家外之家”不是么。这样的住客包括出生在212房间的亚历山大二世王子;刚巧被记录下生前最后一次入住的加州老太太;以及62年来住过上千晚、给员工们买了一台冰激淋机的Pepe Fanjul先生。
你或许要反驳:有钱不就行了,有钱要和天后对唱也没啥稀奇啊。你砸个比播音员还播音员的接线员来试试,你倒是砸个回答刁钻问题像新闻发言人一样的电梯操作员给我看看。
▲ 坐在DVF套房里评价Claridge's的全球最高龄超模,Carmen和DVF都是Claridge's的拥趸
▲ DVF把自己的室内设计处女秀献给了年轻时长住的Claridge's
▲ 给客人写亲笔信的时任GM-Thomas Kochs时而像文豪、时而像书法家、时而像专心做作业的小男孩
我也看了描绘Claridge's劲敌的《这个酒店很英国》、《云端酒店》、《SAVOY》等纪录片,但在《Inside Claridge's》面前都枯燥又教条。一切归功于Claridge's华贵、精巧、从容和俏皮的底调,也归功于统领Claridge's如指挥乐团的时任GM-Thomas Kochs。这位德国老兄也是这间古董英国酒店开业以来最年轻的GM。
从“四大美女”到“三姐妹”
Claridge's的创建可绝不止让Lanvin、Burberry、Gabbana的设计总监操刀圣诞树;让3500位吃货在限期10天的NOMA快闪餐厅吃掉36公斤松露、10000片玫瑰花瓣和27000只蚂蚁。
▲ Alber Elbaz创作、以“Lanvin先生和夫人的圣诞”为主题的跨界圣诞树
当然,你还会看到由驻店艺术家为酒店的时尚常客绘制、挂满穿堂的画像;殿堂级常客DVF奉上的酒店客房设计处女作,无不折射着这间古董酒店爱时髦、爱跨界的天性,但全然没有如今很多酒店跨界项目弥漫的效仿、生硬和堆砌感。Claridge's的一切跨界都舒展自如,浑然天成,底气尽显。
▲ 成功进驻肖像廊的Valentino创意总监和收到气球迎宾式的Jo Malone
▲ 同为澳洲女神、同住Claridge's,但Naomi Watts和Nicole Kidman选用前后两门出入,你俩是冤家还是走后门碗儿更大?
当很多酒店停留在炫耀儿童备品和儿童俱乐部,Claridge's已经关爱起孩子的布娃娃,所有的玩偶都享有免费加床服务,甚至床品的用料和提花也完全一致,只是等比例缩小而已。
而Claridge's的两个妹妹Connaught和Berkeley无不是跨界高手+古董酒店玩潮典范。
▲ 二姐Connaught门前的水池是安藤忠雄的艺术创作“静默”,该作品每15分钟造雾15秒。2016年,酒店还用Antony Gormley爵士加持的圣诞树与水池作伴
Connaught用世间唯一不开在安缦酒店的安缦Spa、安藤忠雄设计的艺术水池“静默”、Tom Stuart Smith操刀的日式花园增强隐世感。
▲ 你可以借玩弹球点菜,也可以窝在房间里吃Jean-Georges的披萨外卖
此外,还让Burberry为门童操刀制服、在客房衣帽间挂上Burberry风衣供宾客对抗伦敦的多变天气、让员工接手John Lobb的擦鞋培训、在酒店内外开设美术大师班。
当然,Connaught也并非什么跨界都乐意,比如,她拒绝了Ralph Lauren把酒店主楼梯移植到Ralph Lauren之家的提议。
二姐Connaught让门童穿上Burberry外套令前门精神抖擞,小妹妹Berkeley则用Rob Angell操刀的温室入口令老店焕然一新。
这间老牌酒店是跨界下午茶的鼻祖(时装下午茶)、是设计师套房的忠实拥趸(傅厚民、John Heah、Helen Green都是幕后功臣)、圣诞还有空中圣诞村落和星空影院助阵。而早期的时髦致敬仍无过气之势,比如蓝吧、比如可开闭屋顶的空中泳池。
近年,Berkeley乐此不疲地用革新保持其“先锋”形象——蓝吧新添了“逃离蓝吧”室、客房的阳台上还安上了鸟屋、套房也在John Heah的加持下尽显治愈静邸相。
需要补充的是,Claridge's、Connaught和Berkeley构成的Maybourne家族三姐妹,原先是四姐妹,她们仨德高望重的大姐是谁?之前的伦敦酒店进化史有详细说过,回看请戳文末链接。
Claridge's的新计划
尽管Claridge's伦敦第一梯队的地位依旧稳固,但很多明星已经移师装备更为精良齐全的劲敌,《Inside Claridge's》中的总经理Thomas Kochs和二把手Michael Bonsor也已转投伦敦新宠Corinthia和瑰丽。
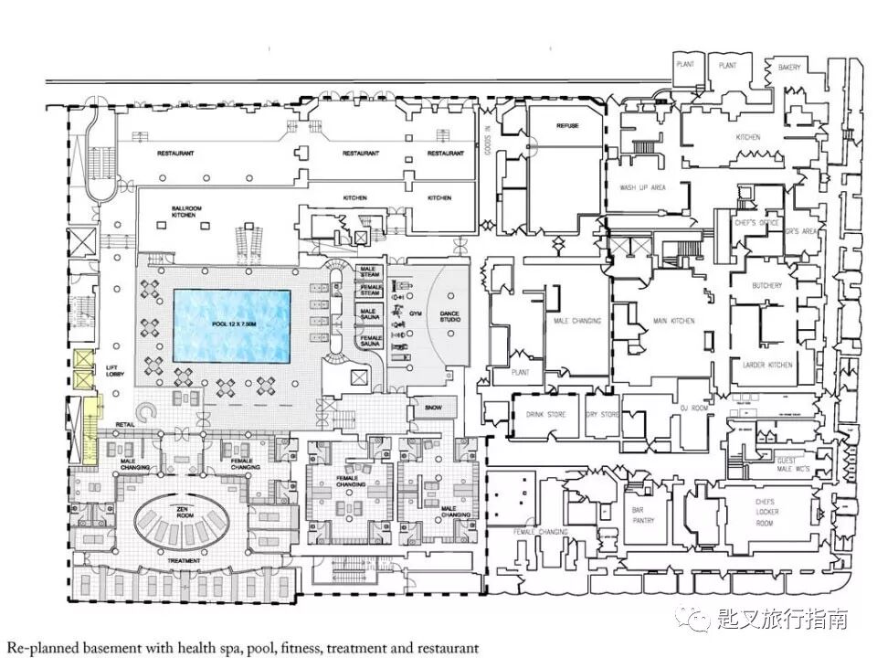
为了在竞争激烈的腐都保持优势,Claridge's正在预谋一场规模空前的扩建工程,顶部加盖两层,用更多新客房缓解过旺的住宿需求,加层工程将孕育一间带私人泳池的套房。
▲ 当下 VS. 扩建方案中的Claridge's
地下工程更为浩大,下挖整整五层地堡,将补足先前缺失的泳池,扩大水疗和餐饮体量。
最后,以老佛爷为Claridge's 2017圣诞奉上的圣诞树收尾,预祝各位圣诞季快乐的同时,我想用一句话浓缩Claridge's的致胜主旨——没有老酒店,只有懒酒店。酒店容颜老去丝毫不可怕,积极原创、大胆玩潮、保持未泯童心足以令其光芒四射。
- 2017圣诞季快乐 -
11月匙叉的生日月活动正在继续
别忘了在本月领取您的美食体验!
📧
kf@keyfork.cn
☎️
021 6438 0998
183 2116 1190
匙叉微信群
keyforkbb
点击原文链接亦可报名咨询
猜你喜欢
部分图片源自网络
更多旅行灵感, 请持续关注匙叉旅行指南
Go to "Discover" > "Top Stories" > "Wow"