如需详情,可长按下方二维码加微信(ID: chelsea121216)了解楼花或二手房购买信息:
2022年9月20日上新:
Hammersmith
伦敦西二区
一室一厅
二手房
位置:西伦敦二区,步行5分钟可达Hammersmith地铁站
地址邮编:Latymer Court, Hammersmith Rd, W6 7JZ
房型:一室一厅
面积:61.8平米
南朝向,6楼
产权:share of freehold
周边大学:地铁+步行,点对点20分钟可达帝国理工主校区
房子一直自住,保存完好整洁,下附看房视频
👉售价:55万英镑
看房实拍视频👇🏻
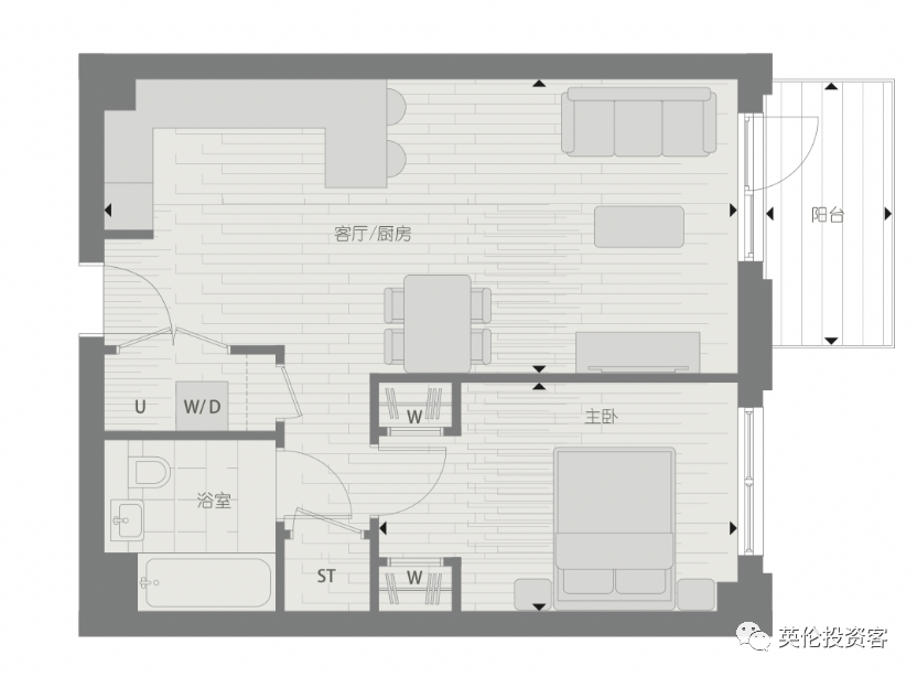
伦敦海德公园旁
南肯辛顿核心地段
二居室二手房
位置:伦敦西一区,步行10分钟到达海德公园,步行5分钟到达帝国理工主校区
地址邮编:Queen's Gate Gardens, South Kensington, London SW7 5NB
户型:两室一厅两卫,面积116.6平米
朝向:南
产权:961年
项目亮点:位于富人区南肯辛顿,属于伦敦最顶级的地段
👉 售价:195万英镑
项目位置:
项目外观和内饰:
户型图:
White City Living
西伦敦
一居室二手房
位置:位于伦敦西二区,靠近White City地铁站,旁边就是西伦敦最大的商场Westfeild,比邻帝国理工白城校区
地址邮编:54 Wood Ln, Shepherd's Bush, London W12 7RQ
一室一厅一卫
室内面积45.5平方米+阳台面积4.7平方米
朝向:西南
交房时间:现房二手房(2021年1月交房)
目前自住,可随时看房
👉售价:72.5万英镑
楼盘介绍视频:
Chelsea Creek
西伦敦
切尔西富勒姆交界处
曼哈顿楼花
位置:伦敦西二区富勒姆和切尔西交界处,从项目出发,走路2分钟可达帝国码头地铁站(Imperial Wharf)
地址邮编:9 Park St, London SW6 2FS
房型:曼哈顿(可改一室一厅),朝东南
面积:49平方米(带一个阳台)
交房时间:2023年5月
👉标价:69万英镑
2022年9月挂牌房源:
The Heron
伦敦一区老金融城楼王
Studio二手房
位置:伦敦老金融城,地标住宅楼王,一区核心地段,被各大银行和律所环绕,步行2分钟可达Moorgate地铁站(连通Liverpool Street女王线车站)。
地址邮编:5 Moor Ln, London, EC2Y 9BB
房型:Studio
面积:38.7平米
东朝向,20楼
带空调,大落地窗,家电齐全
交房时间:现房次新房,2013年建成
项目亮点:24小时前台安保,带健身房、屋顶花园、电影放映室。
周边大学:地铁11分钟到UCL,骑车11分钟到KCL和LSE。
房子一直自住,目前空置没有租客,可随时入住,私信索取看房视频
👉售价:55万英镑
Lexington Gardens
伦敦一区
交房不久的次新二手房
一居室
位置:位于伦敦一区Vauxhall,项目距离泰晤士河仅350米,可俯瞰河景及伦敦标志性建筑,旁边是美国新大使馆。
地址邮编:Lexington Gardens, 46 Ponton Road, London, SW8 5AX
一室一厅,面积:52.6平方米,3楼
交房时间:现房次新二手房,2020年12月收房
私信索取看房视频
👉售价:65万英镑
伦敦西二区
帝国理工宿舍旁
One West Point(楼花)
位置:伦敦西二区,North acton红线地铁站旁,走路1分钟
地址邮编:One West Point. Portal Way, London, W3 6RT
一室一厅,51.2平方米,朝西,19楼
交房时间:2022年10月底
小区隔壁就是帝国理工的学生公寓,乘坐地铁13分钟可快速到达帝国理工白城校区
👉 售价:51万英镑
London Dock
靠近塔桥、中国大使馆新馆、老金融城
两居室新房
(非楼花,开发商退回房源,来得及贷款)
位置:伦敦二区,紧邻塔桥、伦敦金融城、 圣凯瑟琳码头、中国大使馆新馆。
地址邮编: 9 Arrival Square, Vaughan Way, London E1W 2AA
两室一厅,西向
面积:87平米,阳台4平米
交房时间:刚建好的现房
项目亮点:伦敦塔桥旁新地标,中国大使馆新馆旁,步行8分钟到达塔桥地铁站,步行10分钟到Wapping高街,坐地铁可快速到达伦敦西区和金丝雀码头。
项目链接:伦敦一区塔桥新房!总价580万人民币起,绝美实景照曝光
👉 售价:145万英镑
往期房源:2022年8月
Grand Central
伦敦国王十字
一居室楼花
走路可达UCL
地址邮编:Ossulston St, London NW1 1DF
房型:一室一厅
交房时间:2022年第四季度
👉 售价:81万英镑
(购入价:796,100英镑)
户型图
Charrington Tower
伦敦金丝雀码头
Studio(二手房)
(已售)
位置:伦敦二区金丝雀码头,步行约12分钟可达金融区CBD,小区建在泰晤士河边。步行至地铁站约3分钟。
地址邮编:1 Fairmont Ave, London E14 9PF
Studio,独立厨房,带阳台。
面积35.32平方米
楼层:11楼
小区属于高档社区,房龄仅五年,有24小时物业和保安,小区内配有健身房、室内泳池,桑拿,蒸汽室及按摩水池。
参考租金£1350/月,租售比接近5%。
👉售价:32.5万英镑
北伦敦二手大House
👉 售价:87.5万英镑
Royal Eden Docks
东伦敦两居室楼花
👉 售价:£57万英镑
往期房源:2022年6-7月
Venice Court(已售)
伦敦西一区
一居室(带车位)楼花
位置:伦敦西一区,摄政公园和海德公园之间,靠近帕丁顿车站
地址邮编:Hall Pl, London W2 1NE
一室一厅,带车位
面积:50.8平+5平米阳台
东朝向,国内二楼
交房时间:现房 随时可交房(可延期至7月底)
项目亮点:地处伦敦小威尼斯,绝佳性价比,走路可达伦敦商学院LBS,骑行12分钟可达伦敦大学学院UCL
👉售价:68.5万(带车位)
(购入价:68.5万英镑)
Mill Hill East
伦敦北四区
二手House
👉 售价:57.5万英镑
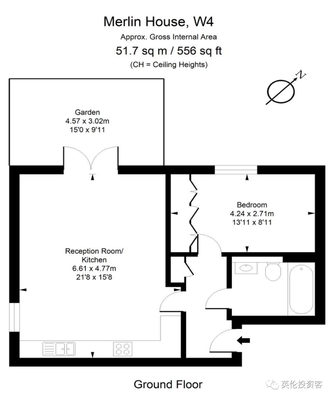
Chiswick Merlin House(已售)
伦敦西三区
二手Flat
位置:位于伦敦富人区Chiswick
地址邮编:10 Belmont Terrace, Chiswick, London W4 5UG
👉 售价:50万英镑
Cadence
伦敦国王十字核心区
两居室楼花
位置:伦敦北一区中心,位处国王十字核心区,邮编N1C,最近的地铁站是国王十字站。
地址邮编:Cadence, 4 Lewis Cubitt Walk, Kings Cross, N1C
👉 售价:154.72万镑
One Blackfriars
伦敦一区地标楼王
一居室二手房
位置:伦敦地标楼王,一区核心地段,泰晤士河畔,对面就是老金融城。
地址邮编:1-16 Blackfriars Rd, London SE1 9GD
房型:一室一厅
面积:50.8平+5平米阳台
东南朝向,四楼
带地暖,大落地窗,家电齐全
交房时间:现房,一年前刚交房
项目亮点:24小时前台安保,带健身房、室內恒温游泳池、温泉桑拿、电影院、模拟高尔夫球场、紅酒室、32楼全层行政酒廊。
周边大学:步行15分钟到KCL,步行20分钟到LSE,地铁22分钟到UCL
👉售价:105万英镑
Fulham Reach
西伦敦富勒姆
一居室楼花
位置:伦敦西二区,最近的地铁站是Hammersmith
地址邮编:Fulham Reach, Distillery Wharf, Parr's Way, Fulham, London, W6 9GD
一室一厅,朝西北
4楼
面积:52.1平方米(带一个阳台)
交房时间:2023年第一季度
楼盘详细介绍链接:西伦敦富人区新房,就在泰晤士河畔
👉标价:80万英镑
Royal Exchange Kingston
二居室楼花
位置:伦敦金斯顿,local中产聚居区
地址邮编:4 Ashdown Road,Kingston upon THams, KT1 2FQ
交房时间:2023年Q1/Q2
房型:两室一厅,面积73.7平方米,送7.8平方米阳台,西朝向,四楼(国内五楼)含一车位
项目亮点:1. 金士顿核心地带新盘,出门就是购物中心,伯克利品质保证。2. 伦敦传统学区,牛剑升学率高。3. 金士顿大学步行7min,联合利华新总部在旁。4. Crossrail 2 站点沿线,升值潜力大。
👉售价:68.5万英镑
Aspen
伦敦金丝雀码头
一居室楼花
位置:伦敦东二区,金丝雀码头中心位置
地址邮编:50 Marsh Wall, London E14 9TP
一室一厅,55平方米
10楼
交房时间:2023年第四季度
👉售价:62.5万英镑
Verdo
西伦敦一居室楼花
位置:伦敦西三区,靠近Brentford 球场和Kew Bridge站
地址邮编:Lionel Road South, Brentford, London TW8
一室一卫,面积50.3平米,阳台5平米
交房时间:2022年7-8月
项目亮点:伦敦传统富人区,优质学校资源,皇家植物园+泰晤士河,2分钟步行Kew Bridge站
👉 售价:£40万英镑
City Road
位置:伦敦一区,Old Street地铁站旁
地址邮编:250 City Rd, London EC1V 2QQ
户型:两居室,室内面积84平方米
交房时间:2023年初
项目亮点:伦敦科技城,伯克利集团高端王牌项目
👉 售价:125万英镑
Goodluck Hope
伦敦东二区
Studio楼花
位置:伦敦东二区,金丝雀码头金融城旁
地址邮编:Goodluck Hope, Orchard Place, E14 0JX
Studio,面积:39平方米
朝东,18楼
交房时间:2022年6月底
👉售价:39万英镑
(购入价:456,385英镑,房东资金周转问题,笋盘急出)
White City Living
西伦敦一居室楼花(已售)
位置:位于伦敦西二区,靠近White City地铁站,旁边就是西伦敦最大的商场Westfeild,比邻帝国理工白城校区
地址邮编:Water Garden, 54 Wood Ln, Shepherd's Bush, London W12 7RQ
一室一厅,英国3层(国内4层)
面积:52平方米
朝向:东
交房时间:2022年Q4/2023年Q1
👉售价:78万英镑
Discovery Dock East
伦敦金丝雀码头
一居室现房带车位
位置:位于伦敦金丝雀码头,步行5分钟即可达CBD金融区。
地址邮编:Discovery Dock Apartment East, 3 South Quay Square, London E14 9RU
👉 售价:60万镑
Bermondsey
伦敦南一区
三房叠墅现房
(非楼花,开发商退回房源,可贷款)
位置:伦敦南一区Southwark,邮编SE1
地址邮编:Bermondsey St, Bermondsey London SE1 3XF
👉 售价:£135万英镑带家具
交房时间:现房二手房
👉售价:75万英镑
West End Gate
伦敦西一区
一房二手房
位置:伦敦西一区,Edgware Road地铁站旁
地址邮编:1 Newcastle Pl, London W2 1EQ
一室一厅,内部净面积:50平方米
10楼
交房时间:现房(2021年刚交房)
楼盘详细介绍链接:伦敦西一区绝版新盘:总价£94万,比邻海德公园
👉售价:98.5万英镑
Battersea Power Station
三房楼花
位置:伦敦西南一区Battersea
地址邮编:巴特西发电站,188 Kirtling St, Nine Elms, London SW8 5BN
三室两厅三卫+车位
内部净面积125平方米
交房时间:2022年6月
项目亮点:新美国大使馆所在地,泰晤士河边,伦敦一区最大城市更新地块,交通便利。
👉售价:213万英镑
往期房源:2022年5月
Fulham Reach
西伦敦富勒姆
一居室楼花
位置:伦敦西二区,最近的地铁站是Hammersmith
地址邮编:Fulham Reach, Distillery Wharf, Parr's Way, Fulham, London, W6 9GD
一室一厅,朝东南,俯瞰社区花园
4层(国内5层)
面积:49.6平方米(带两个阳台)
交房时间:2023年第一季度
楼盘详细介绍链接:西伦敦富人区新房,就在泰晤士河畔
👉标价:79万英镑
楼盘实拍视频:
White City Living
西伦敦
两居室二手房
位置:位于伦敦西二区,靠近White City地铁站,旁边就是西伦敦最大的商场Westfeild,比邻帝国理工白城校区
地址邮编:Water Garden, 54 Wood Ln, Shepherd's Bush, London W12 7RQ
两室一厅一卫,
室内面积74平方米+阳台面积10平方米
朝向:东南
交房时间:现房二手房(2019年10月交房)
目前在租,租金3800英镑一个月,租售比3.8%
房东描述:
交通便利 (Wood Lane和 White City两个地铁站)
伯克利明星楼盘,地段,配套,增值潜力均具备
房屋出租供不应求,此房自交房起一个月内便租出,租金为880磅/周
👉售价:120万英镑
Royal Eden Docks
东伦敦一居室楼花
👉 售价:£45万英镑
楼盘介绍视频:
Clarendon
伦敦北三区楼花
一室一厅
位置:伦敦北三区,Wood Green地铁站旁
地址邮编:Mary Neuner Road, Hornsey, London N8 0ER
交房时间:2022年6-7月
房型:一居室,4楼,朝西南,看内庭花园
面积:48.3平方米+5.2平米阳台
楼盘详细介绍链接:伦敦小预算新房最新一期,18分钟直达市中心
👉 售价:43万英镑
楼盘实拍视频:
Keybridge
伦敦一区两居室
刚交房的次新二手房
位置:伦敦一区Vauxhall
地址邮编:80 S Lambeth Rd, Oval, London SW8 1RG
一室一厅,朝西,4楼
面积:室内51.3平方米+阳台5平米
交房时间:已交房
目前在租,租金2080英镑每月
👉标价:68万英镑
2022往期精选二手房&楼花
London Dock 楼花(已售)
靠近塔桥、中国大使馆新馆、老金融城
位置:伦敦二区,紧邻塔桥、伦敦金融城、 圣凯瑟琳码头、中国大使馆新馆。
地址邮编: 9 Arrival Square, Vaughan Way, London E1W 2AA
一室一厅,Merino Wharf,西朝向
交房时间:2022年5-7月
项目亮点:伦敦塔桥旁新地标,中国大使馆新馆旁,步行8分钟到达塔桥地铁站,步行10分钟到Wapping高街,坐地铁可快速到达伦敦西区和金丝雀码头。
👉 售价:77万英镑
Cadence
伦敦国王十字核心区
Studio楼花(已售)
位置:伦敦北一区中心,位处国王十字核心区,邮编N1C,最近的地铁站是国王十字站。
地址邮编:Cadence, 4 Lewis Cubitt Walk, Kings Cross, N1C
👉 售价:67万镑
9 Millbank
位置:伦敦中心一区Westminster(威斯特敏斯特),泰晤士河畔
地址邮编:9 Millbank, Westminster, London SW1P 3GE
一室一厅, 面积:44.5平方米
交房时间:2022年第一季度
项目亮点:河景豪宅,区域好,交通便利
👉售价:94万英镑
Saffron Square(已售)
伦敦Croydon
一室一厅(二手房)
位置:位于伦敦Croydon,火车20分钟到达London Bridge。
地址邮编:Wellesley Rd, Croydon CR0 2FT英国
一室一厅,朝南。
面积:室内44.3平方米+阳台3.5平方米
房子产权还剩:980年
房龄:约9年。
开发商:伯克利集团
租金目前£1170/月,租售比4.68%。
精装修带全部家具出售
👉售价:30万英镑
Three Waters
伦敦东二区
Studio(楼花)
位置:伦敦东二区,政府重点打造区域,Bromley-by-Bow地铁站旁
地址邮编:20 Gillender St, Poplar, London E3 3JX
Studio,39.8平方米+阳台8平方米
交房时间:2022年第二季度
项目亮点:
A:对比同地段其它开发商新开的项目,总价低,租金高,投资回报率高,小投入大收益
B:位于老金融城、金丝雀码头和斯特拉福德的中间,公司众多,大学众多,生活便利,非常容易出租
1、双地铁district line、Hammersmith &City线(Bromley-By-Row站)10分钟到达市中心老金融城
2、轻轨站Devons Road,5分钟到达新金融城金丝雀码头和斯特拉福德
👉售价:376,050英镑
(购入价:391,050英镑,笋盘急出)
Three Waters
伦敦东二区
两居室(楼花)
位置:伦敦东二区,政府重点打造区域,Bromley-by-Bow地铁站旁
地址邮编:20 Gillender St, Poplar, London E3 3JX
两居室,70平方米+阳台7平方米
交房时间:2022年4月
👉售价:50万英镑
London Dock 楼花
靠近塔桥、中国大使馆新馆、老金融城
位置:伦敦二区,紧邻塔桥、伦敦金融城、 圣凯瑟琳码头、中国大使馆新馆。
地址邮编: 9 Arrival Square, Vaughan Way, London E1W 2AA
两室一厅,Merino Wharf,西向,5楼
面积:85平米+阳台9平米
交房时间:2022年9月
项目亮点:伦敦塔桥旁新地标,中国大使馆新馆旁,步行8分钟到达塔桥地铁站,步行10分钟到Wapping高街,坐地铁可快速到达伦敦西区和金丝雀码头。
👉 售价:125万英镑
往期精选
伦敦二手房源推荐:
已交房的二手房
可自住可出租
Beaufort Park
北伦敦二手房
位置:伦敦北四区,靠近Colindale地铁站
地址邮编: Fairbank House, Beaufort Square, Beaufort Park, Colindale, NW9
一室一厅,2层,51.2平方米
交房时间:刚刚交房的二手新房
项目亮点:北伦敦高端社区,搭乘地铁黑线Northern Line出发,25分钟可达国王十字Kings Cross
私信索取看房视频
👉 售价:40万英镑
Harbour Central(已售)
伦敦金丝雀码头
(去年交房的二手房)
位置:伦敦东二区,金丝雀码头中心位置
地址邮编:Maine Tower,Harbour Central, Canary Wharf, London E14 9DX
Studio,34.8平方米
12楼
项目亮点:金丝雀码头CBD核心位置,通勤方便,项目高楼层,城市景观视野清晰
此前出租租金为£1520一个月,租售比4.4%
私信索取看房实拍视频
👉售价:42万英镑
Royal Wharf 一居室
(伦敦二手房)
位置:伦敦东三区,靠近展览中心Excel和伊丽莎白线Customs House站以及总部基地ABP,离金丝雀码头很近
地址邮编:Sienna House, Royal Wharf, E16 2SS
房型:一室一厅,面积:53.61平方米
完工时间:2018年11月,楼龄2年半
👉售价:43万英镑
现场实拍视频:
户型图:
外立面:
带租约的伦敦二手房
入手即可收租
8 Casson Square
二手房Studio
位置:伦敦一区,伦敦眼、大本钟附近
地址邮编:1 Southbank Place, London, SE1
Studio,面积:43.8平方米
交房时间:现房
👉售价:86万英镑
伦敦Hampstead
二手房三室两厅
位置:伦敦西北二区富人区Hampstead
地址邮编:Compayne Gardens, South Hampstead, London NW6 3DB
👉 售价:110万镑
伦敦Hampstead
二手房两室一厅
位置:伦敦西北二区West Hampstead,最近的地铁站是Kilburn和West Hampstead
地址邮编:Gondar Mansions, 29 Mill Lane, West Hampstead, London NW6 1NU
👉 售价:55万镑
看房视频
Harbour Central
伦敦金丝雀码头二手房
位置:伦敦东二区,金丝雀码头中心位置
地址邮编:Lighterman's Rd, Canary Wharf, London E14 9EZ
一室一厅,58平方米
33楼
项目亮点:金丝雀码头中心位置,通勤方便,项目高楼层,城市景观视野清晰
带租约,租金£1850一个月
👉售价:69万英镑
Ealing Filmworks
西伦敦优质学区
刚交房的二手房
位置:伦敦西三区Ealing
地址邮编:Filmworks, Ealing W5 5AH
👉售价:57万英镑
Ability Place
伦敦金丝雀码头
二手房(两居室)
位置:位于伦敦金丝雀码头,步行不到10分钟即可达CBD金融区,阳台俯瞰Millwall Inner Dock (泰晤士河景)。
地址邮编:Ability Place,37 Millharbour, Canary Wharf, London, E14 9HB
👉 售价:70.5万镑
伦敦一区二手房(两居室)
到UCL走路5分钟
步行10分钟到国王十字
(已售出)
位置:位于伦敦核心一区,最近地铁站是Russell Square,临近多所高等学府如UCL、LSE、KCL、UAL圣马丁。
地址邮编:39 Tavistock Place, London WC1H 9SA
👉 售价:75万镑
现场实拍视频:
房屋位置:
Prince Of Wales Drive
伦敦西南准一区二手房
位置:伦敦西南二区巴特西
地址邮编:Kensington House, Nine Elms, London SW11 4FA
一室一厅,面积:54平米+12平米的大院子
已交房出租,交房时间为2020年
租金:2002英镑一个月
👉 标价72.5万英镑
Kidbrook Village
伦敦别墅(次新二手房)
👉 售价:85万英镑
伦敦一区科技城二手房
The Atlas Building
位置:伦敦一区EC1,Old Street地铁站旁
地址邮编:145 City Road, London, EC1V 1AA
户型:一居室,一室一厅一卫,半露天阳台,8楼
总面积59.22平米,室内面积54.22平米,阳台面积5平米
交房时间:现房二手房,去年刚刚交房
带租客,租金每月2800英镑,租售比4.2%
项目亮点:伦敦科技城,距离Northern Line黑线 Old Street地铁站仅不到200米,与金融城一街之隔。
👉 售价:79.9万英镑
Elephant & Castle
伦敦一区二手房
(已售,成交价49万英镑)
位置:伦敦一区,Elephant & Castle地铁站旁
地址邮编:251 Southwark Bridge Rd, London SE1 6FJ
Studio,室内面积:42平方米
房东描述:
旁边就是伦艺LCC校区,租客从来没断过
目前带租约至2021年9月,疫情期间租金每个月1560英镑
往常租金在1700英镑一个月
👉标价49.95万英镑
Wardian London
伦敦金丝雀二手房
(已售)
位置:伦敦金融城金丝雀码头核心,正对着摩根斯坦利投行
地址邮编:Marsh Wall, Isle of Dogs, London E14 9TP
Studio开间, 室内面积36平米, 阳台面积10平米
27楼
配套健身房、游泳池、温室庭院交通便利,3分钟至DLR、Jubilee Line和新建的Crossrail
带租约,每月租金1600英镑
👉售价:50万英镑
伦敦东二区二手房
走路5分钟到达皇后玛丽大学Queen Mary
位置:伦敦东二区,最近地铁站Mile End(步行2分钟),伦敦皇后玛丽大学隔壁(步行5分钟)
地址邮编:College Terrence, Bow, London, E3
一室一卫,面积:50平方米
二手房,二级保护建筑
目前出租,租金1625一个月
👉售价:52万英镑,购入价:51万英镑
伦敦Stratford二手房
Skyview Tower
👉 标价60万英镑出
伦敦二居室
East Croydon
👉售价:35万英镑
伦敦高性价比楼花
伦敦一区
Lexington Gardens(已售)
伦敦一区楼花
一居室
位置:位于伦敦一区Vauxhall,项目距离泰晤士河仅350米,可俯瞰河景及伦敦标志性建筑,旁边是美国新大使馆。
地址邮编:Lexington Gardens, 46 Ponton Road, London, SW8 5AX
一室一厅,面积:52.4平方米,朝向西,6楼
交房时间:2022年4月
👉售价:63万英镑
Postmark
伦敦一区一居室
(核心地段,大英博物馆、UCL旁)
位置:伦敦市中心一区,邮编WC1和EC1,最近的地铁站是Russell Square(罗素广场)和Farrington(法灵顿)。
地址邮编:Postmark,Camden, London WC1X
👉售价:98.5万英镑
9 Millbank
伦敦一区大本钟旁
大一居室 (楼花)
位置:伦敦“心脏”西一区威斯敏斯特(Westminster),英国的政治中心
地址邮编:Millbank Quater, Westminster, London SW1P 3GE
👉 售价:£150万英镑;购入价:£150万英镑
Postmark
伦敦一区一居室
(核心地段,大英博物馆、UCL旁) (已售)
位置:伦敦市中心一区,邮编WC1和EC1,最近的地铁站是Russell Square(罗素广场)和Farrington(法灵顿)。
地址邮编:Postmark,Camden, London WC1X
👉 售价:91万英镑
Lancer Square
伦敦海德公园旁
二居室楼花
位置:伦敦海德公园旁,步行5分钟到达威廉王子居住的肯辛顿宫
地址邮编:5A Kensington Church St, London W8 4LD
户型:两室一厅,面积 96平米
朝向:东南,楼层:3楼
交房时间:2021年6月
项目亮点:位于伦敦顶级富人区肯辛顿,步行15分钟到达帝国理工学院,和威廉王子做邻居
👉 售价:224.5万英镑;购入价:224.5万英镑
(临近交房,原价急售,开发商在售房源起价500万英镑)
项目位置:
项目外观和内饰:
户型图:
Embassy Garden(楼花)(已售)
位置:伦敦一区九榆树Nine Elms,与美国驻英国新使馆区共享园区
地址邮编:Nine Elms, London, SW11 7AY
两室两卫,面积:64.5平方米,阳台:6.7平方米
交房时间:2021年12月
👉标价83.8万英镑
Battersea Power Station
位置:伦敦准一区Battersea
地址邮编:巴特西发电站,188 Kirtling St, Nine Elms, London SW8 5BN
Studio:42平方米包括阳台
交房时间:2022年底
项目亮点:新美国大使馆所在地,泰晤士河边,伦敦一区最大城市更新地块,交通便利。
👉售价:60万英镑
The Silk District
伦敦一区
一居室楼花
(已售)
位置:伦敦一区,Whitechaple地铁站旁,2022年会通女王线
地址邮编:132 Cavell St, Whitechapel, London E1 2JA
户型:一室一厅,室内面积51.28平方米,阳台5平方米,东朝向
4楼
交房时间:2022年2月
项目亮点:交通便利,位置优越,位于老金融城和金丝雀码头之间,4条地铁线交汇,女王线即将开通
👉 售价:52.5万英镑
The Silk District
伦敦东一区
Studio楼花
(已售)
位置:伦敦东一区,Whitechaple地铁站旁,2022年会通女王线
地址邮编:132 Cavell St, Whitechapel, London E1 2JA
户型:Studio,室内面积39平方米,阳台5平方米,东朝向
17楼
交房时间:2022年4月
项目亮点:交通便利,位置优越,位于老金融城和金丝雀码头之间,4条地铁线交汇,女王线即将开通
👉 售价:49.5万英镑
London Dock 楼花
靠近塔桥、中国大使馆新馆、老金融城
位置:伦敦二区,紧邻塔桥、伦敦金融城、 圣凯瑟琳码头、中国大使馆新馆。
地址邮编: 9 Arrival Square, Vaughan Way, London E1W 2AA
Manhattan房型,2层,41平方米,朝东
交房时间:2022年中
项目亮点:伦敦塔桥旁新地标,中国大使馆新馆旁,步行8分钟到达塔桥地铁站,步行10分钟到Wapping高街,坐地铁可快速到达伦敦西区和金丝雀码头。
👉 售价:71万英镑
伦敦二区
Western Circus
伦敦西二区,帝国理工附近
二居室楼花
位置:伦敦西二区,邮编W3,最近的地铁站是East Acton,步行5分钟就到
地址邮编:Western Avenue, London W3 7XX
👉 售价:60万镑
伦敦西二区
帝国理工宿舍旁
One West Point(楼花)
位置:伦敦西二区,North acton红线地铁站旁,走路1分钟
地址邮编:One West Point. Portal Way, London, W3 6RT
两室一厅,73平方米
交房时间:2022年第四季度
小区隔壁就是帝国理工的学生公寓,乘坐地铁13分钟可快速到达帝国理工白城校区
👉 售价:63万英镑
Woodberry Down(已售)
伦敦北二区一居室
位置:伦敦北二区
地址邮编:Willowbrook, Woodberry Down, Finsbury Park London N4
房型:一室一厅,带大花园。院子25平方米,房屋52平方米,总面积:77平方米。
交房时间:2021年第三季度
项目亮点:位于城市核心。周边配套成熟,皮卡迪利线站点边(步行四分钟)有游泳池,健身房和私人停车场。
👉 售价:49.7万镑
Goodluck Hope
东伦敦二居室现房
位置:伦敦东二区,金丝雀码头金融城旁
地址邮编:Goodluck Hope, Orchard Place, E14 0JX
两室一厅,面积:86.6平方米
交房时间:现房
👉售价:73万英镑
Sovereign Court
伦敦西二区
二居室现房
(非楼花,开发商退回房源,可贷款)
位置:伦敦西二区,邮编W6,属于Hammersmith&Fulham区
地址邮编:Sovereign Court, Hammersmith, London W6 0BT
👉 售价:£1,111,950(有折扣可谈)
看房视频
伦敦三区
West Ealing
西伦敦
一居室楼花
位置:伦敦西三区,West Ealing女王线地铁站旁
地址邮编:127 Gordon Road West Ealing, London, W13 8QD
交房时间:2022年Q1
房型:一室一厅,面积58平方米,朝南朝西,2楼
项目亮点:交通便利步行3分钟到西伊灵女王线口。 到希思罗仅需13分钟。15分钟至邦德街。 设施完善,环境优美,周围有17所杰出小学。
👉 售价:£485,200
Verdo
西伦敦两居室楼花
位置:伦敦西三区,靠近Brentford 球场和Kew Bridge站
地址邮编:Lionel Road South, Brentford, London TW8
两室两卫一厅,面积73.1平米,阳台7平米,东南向,4楼,带车库
交房时间:2022年Q2/Q3
项目亮点:伦敦传统富人区,优质学校资源,皇家植物园+泰晤士河,2分钟步行Kew Bridge站
👉 售价:£615,900
长按下方二维码加微信(ID: chelsea121216)了解楼花或二手房购买信息:
*部分房东可接受RMB,部分交房时间紧的项目偏好现金买家