Highlights 特点
● Former FireHouse Sub space (二代餐馆)
● Available: 1,600sf (面积: 1,600 尺)
● Anchors: Starbucks andAT&T Store (隔壁有星巴克和 AT&T)
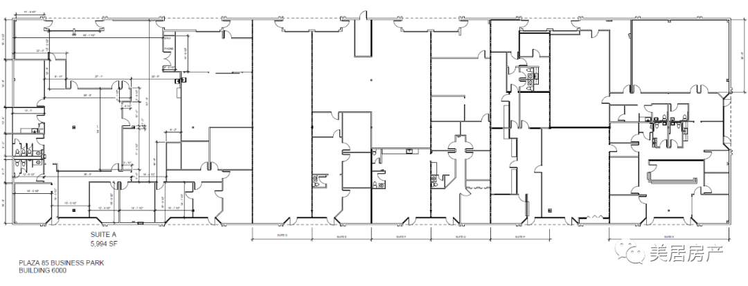
Industrial space for lease
Highlights 特点
● Flex Space 2,050 SF to11,428 SF Available (Flex space 面积 2,050尺 至11,428尺)
● Office Space 1,156 SF to 3,726 SF Available(办公室面积 1,156 尺 至3,726 尺)
● 11,428 SF to 25,964SF Building size (建筑面积11,428尺 至 25,964 尺)
● Build-out available (可按租客需求,建造内部)
● Flexspace with roll up doors (Flex space后面有铁卷门)
● 10'Ceiling Height / 办公室天花板高10 尺
● 14’Clear Height / 仓库净高 14尺
FOR MORE INFORMATION 更多详细资料:
M & J 地产团队在2018, 2019 及 2020 多次获得美国东南部销售前十名。M & J 是 Keller Williams 里最具有代表性的一支亚裔地产团队。我们致力帮助亚特兰大华人购买和租赁房地产; 以及帮助全美华人企业家商业地产投资。你的梦想就是我们前进的动力!
关于我们
Go to "Discover" > "Top Stories" > "Wow"