Highlights 特点
Industrial space for lease
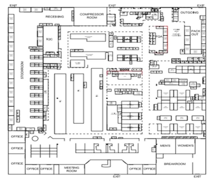
Highlights 特点
● 20,260 SF Available 总面积 20,260SF
● 4,000 SF Office 办公室面积 4,000SF
● 2 Drive-in bays 两个驶入式卸货口
● 15 Exterior dock doors 15个卸货门
● 20’ Clear height 20尺净高
● Great Access to GA-400 近400号公路
FOR MORE INFORMATION 更多详细资料:
M & J 商业团队在2018, 2019 及 2020 多次获得美国东南部销售前十名。M & J 是 Keller Williams 里最具有代表性的一支亚裔商业地产团队。业务覆盖南卡,北卡,阿拉巴马,佛州,德州,纽约和新泽西州等全美地区。我们致力帮助亚特兰大华人购买和租赁房地产; 以及帮助全美华人企业商业地产投资。你的梦想就是我们前进的动力!
关于我们
关注我们的公众号
Go to "Discover" > "Top Stories" > "Wow"