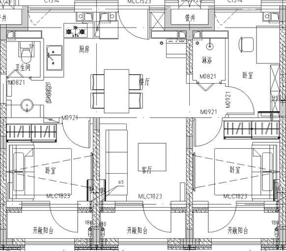
亦庄河西38套租赁住房来了

京房字 京房字