点击上方蓝色字,关注浙中指挥长
6月4日,金华市自然资源和规划局发布《金开服投•和悦邻里中心项目》公示。
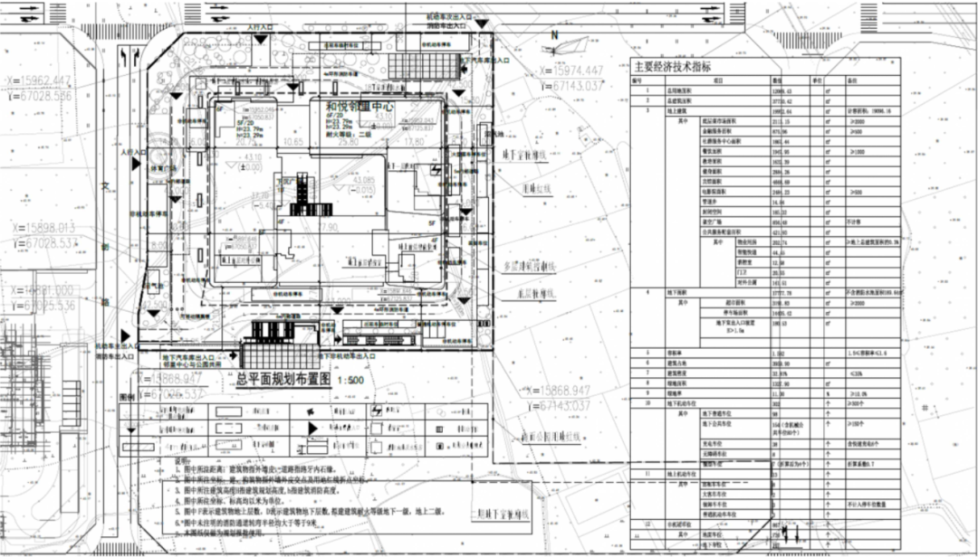
指挥长(微信公众号:浙中指挥长)注意到,项目位于规划道路以东、龙川路以北。项目用地面积12069.43平方米,总占地面积3959.90平方米、计容建筑面积19096.16平方米、不计容建筑面积18634.26平方米,容积率1.582,建筑密度32.81%。
据了解,邻里中心源于新加坡的社区服务理念,是集商业、文化、体育、卫生、教育、政务服务、家庭服务等一体的社区服务综合体。和悦邻里中心建成后,将为和悦社区居民打造步行一站式”社区服务15分钟生活圈,令其“足不出社区,尽享各类星级便民服务”。
往期相关重要内容文章:
总成交169亿,成交1742亩!2020年金华土地年报新鲜出炉!
来源:金华市资规局等
最终进展解释按官方实际发布为准
版权归属原创 侵删
编辑排版:指挥长
一并鸣谢
感谢你的每一次
转发 | 点赞 | 支持
你的支持是我不懈的动力