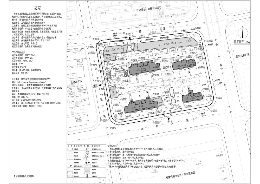
方案公示!17号线600米地铁盘【悦达青浦新城项目】案名即将公示,只有四幢!

住在上海信息 住在上海