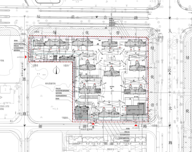
龙湖广富林项目案名曝光!【龙湖·御湖境】再续松江豪宅典范!

住在上海信息 住在上海