《外滩以西》前不久跨过外白渡桥,在黄浦路、百老汇路(东大名路)等地转悠了一圈,对礼查饭店做了重点介绍。链接点进去看看:《窝在屋里厢整理高清晰外滩历史照片 汇中和礼查两家百年奢华饭店的几个小故事》,也因此查阅了不少当地史料,在1925年上海行号录里,我们发现有些地名很奇怪,自然引起我们的浓厚兴趣:
百度没有什么线索可追查,杨阿伦小路 = Young Allen Terrace,这个Terrace字面意思是“露台”,我们发现这个字对应在上海房产字典,可以和XX 邨(新邨)、XX 坊和XX 里联系起来,有些“花园”也被归Terrace;还有个英语字Court也可以做差不多的理解,Court = XX 苑(花园)。如此这般,找这一条杨阿伦小路范围缩小很多,不在路名上纠结,而在XX 邨(新邨)、XX 里和XX 坊深究。
万宜坊= Auvergne Terrace
千里里=Cherry Terrace
凡尔登花园=Verdun Terrace
霞飞坊=Joffre Terrace
Verdun Terrace = 长乐邨(今名)
Linda Terrace=人民坊(今名)
Joffre Terrace= 淮海坊(今名)
下图为Linda Terrace,淮海中路833弄。研究俄侨在上海史迹的俄国汉学家张霞写过一个故事,她非常仔细从Jack Brins照片里发现他在Linda Terrace弄堂口与两位俄罗斯女生友好亲密互动,随手就在附近连拍了三张照片,比较直观地记录下了1947年林森中路、茂名南路街道状况和人物百态。关于伯恩斯,链接点进去看看:《[增补版]Jack Brins记录下1947-1949年的上海看似平静的街道图景》+《Jack Birns所摄的南京西路1288号旧影 新华社高级记者吴复民传来珍贵老照片》。
Linda Terrace(字林西报译为琳达排屋应该是不太了解上海实际情况)和旅居上海的俄侨生活密切相关,其23号曾是俄国贫童学校Russian Confraternity School (for Poor Children),Russian Confraternity=俄罗斯人联谊会,当时路牌号为霞飞路375号,375 M Avenue Joffre ,1925年1月-1926年1月登记在字林西报行号录上;街坊隔壁还有苏联海陆军战士联谊会(Union of Russian Army & Navy Men),1926年1月-1927年1月登记路牌号已变:583 Avenue Joffre, 13 Linda Terrace。这些变化了路牌号也正是我们需要的,对研究淮海中路历史有定位作用,再后来确定833号一直到现在。
凡尔登花园远近闻名也叫长乐邨,TA对马路的纪家花园=Kelmscott Garden,那里大花园、大洋房盖过长乐邨但没TA名气响亮,过一阵我们会去那里深扒一下,沙逊洋行控股的安利洋行开发建设的,出手比较大气。关于长乐邨,链接点进去看看:《今天的长乐邨曾经的凡尔登花园 但不要遗漏比佛利花园八联宅 金星11年前长乐邨卖房官司了解一下》;关于安利洋行,链接点进去看看:《安利洋行大班小安诺德兄弟楼曾被华懋公寓压顶 被沙逊兼并不是一件难为情的事情》+《从茂名南路59号出发 编写一篇安利洋行大班小安诺德兄弟上海滩行迹录》。
好了,通过字林西报检索,这条杨阿伦小路的历史故事一条条地从旧报纸里飞出来,TA迫不及待地想告诉上海人,我在哪里?我在那里!
杨阿伦小路=昆山花园路,昆山花园路,是一条位于上海市虹口区南部的道路。东起百官街,西至四川北路。全长仅100米,路宽8米,现为全天候人行道路。该路辟筑于1900年前后,因直抵昆山花园(今昆山公园)而得名。沿路主要为老式洋房,该路7号曾为女作家丁玲的寓所。1933年5月14日,作家应修人因与国民政府保密人员发生冲突而在此逝世(百度百科)。
再查应修人条目:1933年5月14日,应修人到虹口昆山花园路丁玲寓所联系工作,这时丁玲已因叛徒出卖而被捕,应修人被把守在楼梯口的特务发觉,他英勇地徒手与特务们展开激烈搏斗,不幸坠楼牺牲,时年34岁。
下图为1948年天地图。此地离开外滩不远,有不少大地产开发商曾在这扑下巨资,如今存留下的青、红砖+外廊结构建筑真要保护好,都是虹口的宝,雷士德、何东当年让建筑师996熬通宵做出来房子还能恢复原始屋况吗?百年老建筑看看筋骨还蛮好的,但已然是承受不起72家房客超负荷的重载。
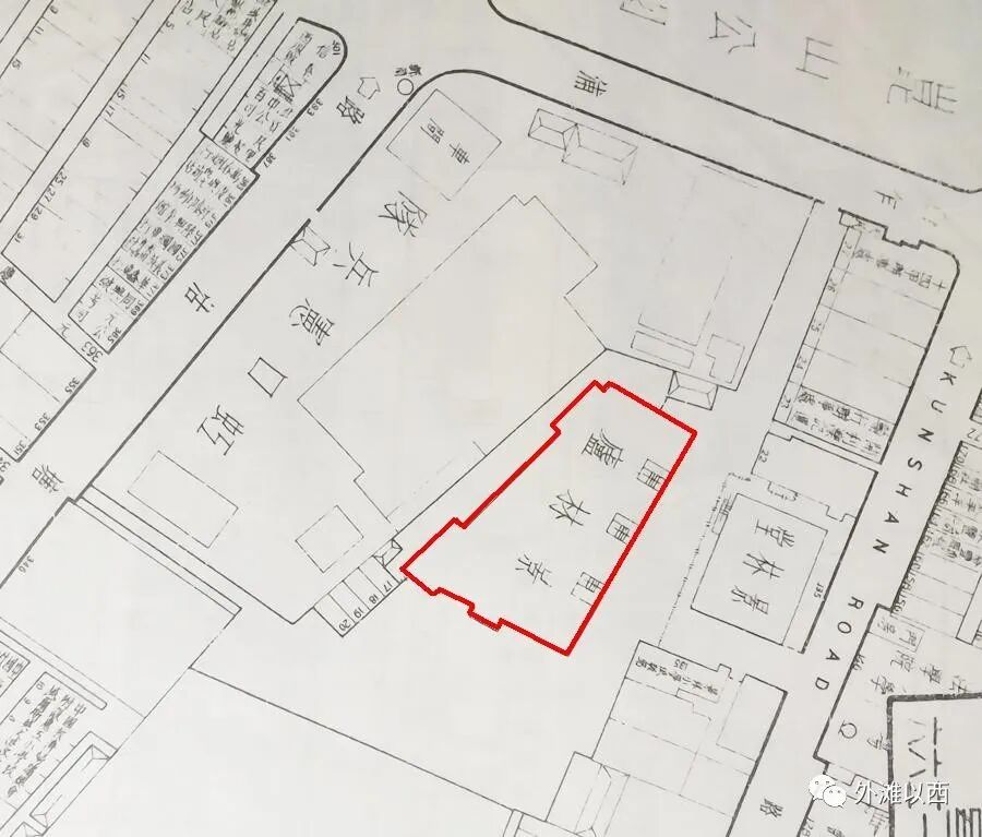
但看1947年上海行号路图录,问题来了:杨阿伦小路Young Allen Terrace和隔壁的景林庐是不是一回事,回答;不是的。景林庐英文名字对应Young Allen Court,景林两字还涉及到了此地最早的景林堂,景林堂=景仰林乐知之堂,林乐知是中国近代史上著名传教士、新闻记者(编辑);景林堂如今叫景灵堂,音同字不同,意思不一样。
喝口水,慢慢说,一直觉得虹口的四川北路、海宁路、吴淞路有深厚的文化底蕴,和他们关联的小马路更是老底子故事和传说的发生地。
一条乍浦路分开了Young Allen Terrace和Young Allen Court,有熟悉当地情况者称那里老土地是用外墙颜色区分两处房子,一个叫红房子景林庐Young Allen Terrace,一个叫白房子景林庐Young Allen Court。历史书上混淆了Terrace和Court,其实说的都是红房子景林庐。
我们将杨阿伦小路(Young Allen Terrace)换成如今比较容易理解的“景林坊”,一是区别“景林庐”,二是容易理解、方便阅读,小路是小路,里弄是里弄,街坊是街坊,新邨 ≠ 新村(上海作家马尚龙的考证)。景林庐是1923年建成,而景林坊更早建造,查阅字林西报发现最早被记录下来的时间是1913年,还可能更早,可能1900年随昆山路开辟就建成了。
Young Women's Christian
Association of Shanghai
上海基督教女青年会
Stafford, Mrs. R. O., National President
Brockman, Mrs. F. S., Sec. Sze, Miss V. T., Treas.
Time:1913- 7
National Headquarters:
4 Young Allen Terrace
来看一看当年景林坊里小故事,什么历史人物进进出出,忙忙碌碌?
九个门牌号码,11号有点奇怪,TA应该是1947年标明的10号吧。我们将如下1925年行号录刊载的房主(租户)名字输入字林西报检索系统以及近现代人物资讯整合系统搜索,4号Miss M.B.Bomar和6号Dev.A.P.Parker两户和教会有关。Miss M.B.Bomar曾配合林乐知管理Southern Meth. Women's Board of Foreign Missions;Dev.A.P.Parker是《兴华报Chinese Christian Advocate》首席编辑;11号也来自教会,待会说说,打字打错名字了。
从查阅到资料中发现7号业主J.H.Black是一位建筑师和工程监理师,字林西报行号录里出现地址混淆事情,或者说当时编辑们就认定了Young Allen Terrace和Young Allen Court是一回事。
Black, J. H洋行.
Black, J. H.
Time:1924- 1
Address:7 Young Allen Court North 3630
Black, J. H.洋行
Black, J. H.,
Consulting Engineer Architect & Surveyor
Time:1924- 7
Address:7 Young Allen Court North 3630
Artesian Well Co.
Black, J. H., mgr.
Eardley, P. P. J., drilling supt.
Time:1924- 1
Address:7 Young Allen Court North 3630
China Mission Architectural Bureau, M. E. C. S.
Black, J. H., dir.,
C. E. A. M. Am. soc. C. E. Hird, D. T., architect,
M. A. I. A. McGarvin, F. E., supervising eng.
Time:1924- 1
Address:7 Young Allen Court North 3630
Heen, M. L.摩西大律師
Khang Zaung Foo Tsu Lusun Cheu Baisin
Time:1923- 1
Address:7 Young Allen Terrace North 1609
(Source:The North China Desk Hong List)
Harvey, Charles Way,(Shanghai), o. Secretary,Y.M.C.A., Senior Secretary for China International Committee Y.M.C.A.: Associate General Secretary of National Committee of Y.M.C.A. of China: b. in Pennsylvania:educ. Bucknell University,A.B., 1900 Honorary D.D.,1923: arr. C. November 1902:clubs, American Associationof China; American University(Shanghai): r. add. 11 Young Allen Terrace: o. add.20 Museum Road: h. add. 347 Madison Avenue, New York,N.Y., U.S.A.: n. American.
1925年中国名人录和1925年行号录对照一看,行号录写错这位基督教青年会副秘书长的名字。Y.M.C.A.的管理层对住宅还是有要求的,链接点进去看看:《安福路233号巨泼莱斯公寓是1918年建成的吗?C. D.Kingsbury是谁?》,安福路7号也曾是Y.M.C.A.宿舍。
不纠缠,估计当年杨阿伦小路(景林坊)是地标性商住楼,除了教会人员居住和办公之外,也接受外来人员居住和办公,看看7号楼,以J.H.Black先生为主的洋行、协会都在一起还有律师在接案。而景林庐一开始纯粹为教会内部教士公寓,后来被逼无奈才出租纡难,请注意地址这一行上写着“昆山花园东”,1935年行号录开始刊登”Young Allen Court“,物业经理应该是专门接待和服务分租客人的。关于教士公寓,链接点进去看看:《新乐路55号丙 俄国东正教堂边不太被人注意的“教士公寓”》。
Young Allen Court
Cline, J. W., mgr.
Time:1935- 7
Address:East Quinsan-gdn
如今的上海优秀历史建筑也认定“景林坊”为景林庐,希望将来有机会改回来。
Associated Merchants Company
Coulter, S. H., mgr. Coulter, O. H. Weber, J.
Time:1923- 1
Address:6 Young Allen Court
Meth. Epis. Church South,
Woman's Missionary Council
Bomar, Miss M. B.
Time:1923- 7
Address:6 Young Allen Terrace
Meth. Epis. Church South,
Woman's Missionary Council
Bomar, Miss M. B. Pyle,
Miss M. E. Rankin, Miss L.
Time:1925- 1
Address:5 Young Allen Court North 372
Young Women's Christian Associations
中華基督敎女青年會全國恊會
Time:1925- 1
Address:1 Young Allen Court
North 4092-3
Methodist Church衞理公會
Time:1941- 7
Address:10 Young Allen-ct.
景林坊(红房子景林庐)1号、4号、5号、6号、7号、10号和11号单位名称和使用者身份查到了,大多和教会有关系。
行文至此,林乐知和上海的逸事要说一说,我们从findagrave.com里发现了一些他和太太以及儿女们两代人在上海的家族史料,林乐知在华47年,他太太旅沪时间更长,1927年,老太太在上海仙逝。老太太是美国卫斯理女子学院(Wellesley College)毕业生,她对宋氏三姐妹的大学择校、报名有较大影响力,她们也都是卫斯理女子学院毕业生。
MRS. YOUNG J. ALLEN
86th Birthday and 64 Years in China
林乐知太太刚过86岁生日,居中国64年
Time:1925 - 2 - 21
有关林乐知身世以及家族史,find a grave的网页上公布了百科条目里没有的内容,Son of Andrew Young John Allen and Jane (Wooten) Allen. His father died the November before his birth and his mother died twelve days after his birth.可怜的孤儿,1878年7月17日,埃默里大学在林乐知去中国后第一次返美时授予他法学博士学位:On July 17, 1878, during his first return to the US, Emory College conferred upon him the degree of Doctor of Laws.早在1860年,林乐知和他新婚太太带着幼女抵达上海:Married Mary Houston on July 22, 1858 in Atlanta, Georgia. Sailed with their infant daughter Malvina to China and arrived July 13, 1860 at Shanghai.
据说整个航程花了200多天。维基百科写道:林乐知以办报、办学、译书著称,对晚清时期的维新运动影响很大。
American wife of Methodist Episcopal missionary to China, Rev. Young John Allen. While the Allen's fought tirelessly for the human rights of women in China (concubinage, foot binding, education), the church did not recognize wives as equally serving as missionaries alongside their husbands. 这段话也有点绕的,话说林乐知太太也是高级知识分子,协助丈夫工作且为中国妇女受教育等大事奔忙和呼吁,教会并不承认教士妻子们拥有和丈夫相当的传教士地位。
一切历史的东西有很多已归置于土地之下,有些则被历史学者从故纸堆里挖掘出来,我们才知道1925年行号录上记着上海有一条小路叫杨阿伦小路还在,如今景林堂(景灵堂)还在,景林庐还在·····虹口要好好珍惜这一历史记忆。
如下是上海市中心城公共空间艺术设计袖珍广场竞赛/虹口区/四川北路昆山花园设计稿,有想法,来自上海城规院官网:https://www.supdri.com。
等不带口罩之后,我们会去那里走访,虹口也是我的出生地,小时候看电影去国际电影院和胜利电影院,四川北路上的上海书店也没少去。
拍攝於 2009年1月14日 胡搞百叶结
我们从坚持数年拍摄上海老建筑的摄影师陶钧先生影集里找到杨阿伦小路(景林坊)俯瞰照片,陶钧在无忌摄影论坛上做了15年的”上海优秀老建筑摄影“图文报道,佩服的。链接点进去看看:《上海历史建筑的那些个踏了几十年快百年的楼梯台阶 优秀历史建筑遇到了优秀摄影师》。
Send to Author