房屋信息
户型 3 室
使用面积 70 ㎡
装修花费 29 万元
房屋位置 上海 虹口
所有图片/描述均选自
好好住APP用户@天天的小房子
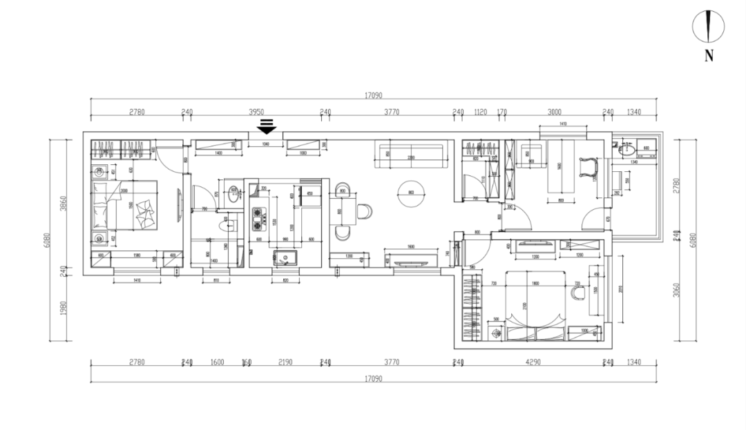
户型图
原始户型是典型的上世纪80年代流行的条头糕户型,全屋朝北,走廊狭长,动线单一。
屋主本来还试图爆改奇葩户型,但全墙承重的现实几乎限制了所有美好想象。
不仅实现卫浴干湿分离、扩宽玄关、餐厅独立、还多出个储藏室。
玄关
藤面鞋柜与白色墙面搭配,低调温润。鞋柜上方可以放置随手小物件,墙上简单贴几幅小画,添置上心动已久的黑胡桃弧形全身镜 ,打造出一个简单利落的玄关/过道空间。
鞋柜旁是次卧房门,门边墙体预留了 35 cm 的深度,鞋柜正好严丝合缝地贴合,完全不影响行走,内部收纳量也很充足。
卫生间
鞋柜对面就是卫生间干区,回家后的动线安排得十分合理。薄荷色长条砖与餐厅墙面色彩遥相呼应。双开门镜柜收纳各种日常用品,悬空台盆柜下刚好放下扫地机器人。
卫生间湿区用长条款白砖,在这个狭小空间里选择做减法,简单利落。挂壁马桶后的矮垛,放上香薰等物品,成了天然展示台。白色吊轨门,不仅节省空间,还很方便清洁。
比起打理起来相对麻烦的淋浴房,@天天的小房子更偏爱浴帘,「脏了直接扔,款式随心换。」
厨房
心心念念的开放式厨房,由于与客厅之间的墙体无法拆除,只好另辟蹊径,通过不装移门来实现。
U型厨房加上克制冷静的白色立面元素,整体显得非常明亮通透,各个角落一览无余。线条装饰的象牙白门板,搭配水槽上方的复古吊灯,明亮空间多了一丝复古气息。
客餐厅
@天天的小房子家的客餐厅与走廊连在一起,不算非常独立的空间。
属于客厅的空间不大,一张双人沙发,一张轻巧小茶几,足够夫妇俩人在这儿打盹儿追剧,散漫度过宅家时光。
长长的白色走廊尽头,也就是沙发上方,两幅充满意境的画,为这个普通角落注入了灵魂。
因为平时基本没有看电视的需求,于是舍弃电视,一组矮柜放在百叶窗下,用来摆上喜欢的装饰画和物件刚刚好。
原来的餐厅位置在厨房与走廊之间,非常影响动线。在设计师的改造下,把餐厅挪到了客厅。
相对完整且有衔接关系的两面墙,用柔和且低饱和的色调,一冷一暖配色「色号名:Apple Grove & Nepal Neutral 」,勾勒出餐厅角落。可伸缩 Norhor 小餐桌靠墙,拉开后坐下 7- 8 人完全没有问题。
阳光从百叶窗穿过时,餐厅区域的绿色墙面打到客厅白墙上,透着一点点薄荷蓝,绝对是意外的惊喜。
主卧
主卧靠窗和床头这两面墙刷了土黄色「色号名:Highland Plains 」,另外两面墙留白。为了契合如此扎实的色度,床选择了丝绒这种有厚重感的材质,搭配灵动感十足的吊灯,空间显得柔美许多。值得注意的细节是,她还用驼色窗帘来呼应墙面,灰色纱帘去呼应了床。
一把白色温莎椅,一张轻薄细巧的宜家书桌充当梳妆区,对于她来说完全足够。
次卧
次卧大胆尝试了梅子暗紫红色「色号名:Play House Plum 」,与主打白色和浅驼色的家具软装搭配,丝毫不跳脱。
宜家衣柜门板上的线条装饰和金色拉手,为房间营造出轻奢感,轻快活泼又不失典雅的氛围立马显露出来。
Vita 缎带缠绕一般的造型灯,充满女性气息。宜家铁艺床戏剧感的靠背设计,曲线呼应吊灯,直线呼应了温莎椅。
书房
经历了两次试验色才成功的书房,终于刷上了满意的浅蓝色「色号名:Oxford Blue 」,搭配木色家具,十分有质感。胡桃木玻璃门书柜和复古感装裱的装饰画的加入,让整个空间显得稳重但不沉闷。
但全部胡桃木的话,空间又会有些老气。于是挑选了黑色书桌椅来中和了整个空间。
储藏室+阳台
因为墙体结构关系,卧室都无法做定制衣柜,更别奢求衣帽间了。于是舍掉部分书房面积,在靠近客厅墙一侧,打造一个小小的储藏室。所有不知道该放哪里的东西通通塞进了这个小空间里。
而在书房另一侧则是一个小小的阳台。看着质朴但是非常实用,清洁工具归置,洗衣晾晒都在这里完成,地坪上的水龙头是留给未来迷你洗衣机的。
看完@天天的小房子的家,
不知道有没有朋友对自家墙壁蠢蠢欲动了。
最后,附上设计师的室内刷墙tips,
✨ 供大家参考参考 ✨
① 采光优秀的空间,选色不要怕低饱和度。色卡有迷惑性,放大面积后显色性会翻个好几倍,尤其采光好的空间,强光线会让色彩显得更艳更浅。
② 尽量选择相对完整,有衔接关系的墙面做文章。
③ 过渡区域、零碎墙面作留白处理。可用装饰画等小元素平衡白色的寡淡。
一键关注
好好住编辑部出品,未经许可不得转载。
商业合作请联系:ads@haohaozhu.com
新媒体合作请联系:edit@haohaozhu.com
喜欢今天这个家吗?
来🙌 分享、点赞、在看 🙌 三连击
Go to "Discover" > "Top Stories" > "Wow"