住友 @Joccer 的家,堪称强迫症的福音。
75㎡ 的两居室,坐拥 2 个衣帽间+洗衣区,全屋智能家居、卫生 0 死角、连瓷砖缝都得居中……各种细节,无懈可击。
对于他家,不光只有感叹「极致」的份儿,无论想从思路上获得启发,还是在实操上积累经验,都可以轻松从他家「抄!到!作!业!」
PS:
文末附装修笔记
回复 Joccer 即可获取智能家居清单
01
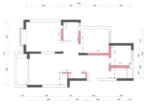
户型改造
△蓝色区域为储物空间
根据自身需求,家里所有柜子内部格局都是@Joccer 亲自设计。
△用PPT把需要的格局、尺寸确定好,再和全屋定制方沟通和确认最终方案,沟通效率特别高。
△这片区域也是暂时存放客人外套和包等物品的地方。
@Joccer 认为客厅是一个卸下所有压力的放松空间,要能看剧、听歌打游戏,找到一种安定感。
△85寸大电视是客厅的核心,它是整个家庭娱乐的中心。
所以电视柜采用了悬浮长柜,增添轻盈感。灯光洒下来,营造出舞台的效果。
△全屋采用加长无框风口,从墙的一头顶到另一头,顺带把新风的风口也藏在里面了。
豆腐块沙发,完全符合他心意。模块化的设计更具灵活性,小茶几也能随时搬动,客厅随时变身围坐交谈的互动空间。
△沙发墙用原木色饰面板贴皮,让空间有延伸感。墙上的壁龛用磨砂烤漆不锈钢材质,5mm 折边盖住KD板,完美解决收口问题。
阳台则是一个小小的生态区,没有晾衣架的束缚,空间变得更加自由。用 3 幅香格里拉帘,可分开、统一调节。
地面选择木纹砖,和客厅的木地板连成了一体。地砖和地板之间用 1.2 公分不锈钢色压条过渡,尽可能减少存在感。
△地砖填缝用了马贝 112 和 141,用 2:1 的比例调色。
拆除入户左侧的鸡肋小空间,挂上铁艺时钟,色调上采用黑白灰和原木色,减少不必要的元素,让餐厅更通透。
△客厅看向餐厅
虽然餐厅面宽比较窄,但还是选择了一张橡木长桌作为餐厅中心,紧挨着岛台。可以日常用餐,也可作为临时的办公桌。
△长条凳不占位置,必要时也可以靠墙作为换鞋凳使用。
餐边柜也是一个 mini 水吧,咖啡机、气泡水机、管线机,一应俱全。柜内预先开好了轨道插座槽位,可以随意调整位置,非常方便。
△PS:需要使用的电器预先规划好,确定尺寸规格,避免后期放不下。
厨房是黑白灰色调,做成顺手的 U 型设计,洗切炒盛动线合理。集成灶、嵌入式电器,节省空间。
为了让台面更简洁,水龙头左右分别开孔:左边装洗洁精,右边配了黑色的净水龙头,没有做挡水条。水槽台面与墙面直接连接,接缝处用硅胶密封。
△采用台下盆,花岗岩大单槽配上抽出式水龙头,颜值和实用性满分。
垃圾处理器、中央水处理和直饮机放在台盆底下的橱柜,旁边是西门子 13 套洗碗机,提前规划好设备的尺寸、进出水位置、插座数量……榨干每一寸空间。
平时无泡澡需求,卫生间只做了简单的干湿分离。把能嵌入的全部嵌入,能腾空的地方尽量腾空,为的是减少卫生死角。
干湿两区采用不同深度和颗粒度的水磨石风格瓷砖,形成细微对比。两个区域都打造同样高度的壁龛,既实现储物功能,又保持了空间整体感。
△强迫症如他,连瓷砖缝全部要求居中。
采用了隐形地漏,中间位置加高。使用下来,排水效率非常高。
△加高部分的拉槽使用颜色相近的马贝填缝,一定程度上也起到了「隐形」的效果。
卫生间门槛石选择和地砖相近的颜色,并根据门套线厚度预留了压条的位置,确保后期压条和门套线外沿齐平。
△四种材质相互衔接,整体感很不错。
把洗衣区安排在更靠近卧室衣帽间和卫生间的位置。换洗衣物丢进右下角的抽出式脏衣篮,左边的洗衣机洗完衣服,丢进上面的烘干机,最后直接拿到衣帽间挂起来。
△上层柜子用来囤清洁用品和猫咪物品。
大容量脏衣篮,抽屉一推直接藏到柜子里。双层抽屉下层放洗衣袋、清洁用品,上层抽出来是叠衣板。
侧面的柜子一方面作为客餐厅和卫生间之间的隔断,同时又兼顾储物功能。
△水泥色门板搭配水泥漆和旁边深灰色系衣柜,保持了整体感和层次感。
洗衣区和客厅之间藏了一扇大移门,在烘干的时候起到隔音作用,同时也是两个空间的「软隔离」。
卧室作为睡觉空间,格局上更加简单。不过,他在床底和床背后增加灯带,床头柜也做成悬浮式,营造出一种睡在云端的感觉。
床靠和床架保持一体,用可调节角度的壁灯提供夜读灯光。卧室门口的墙角嵌入感应踢脚灯,既可以引路还能烘托氛围。
床的另一侧,是通过右移卫生间获得的步入式衣帽间。把能挂起来的衣服全部挂起来,只留了一小部分隔板用来放不能挂的毛衣。
厨房旁边原来是次卧,改变了入口方向,餐边柜一体的隐形门一打开便是书房。
做了一张 2 米长的书桌,可供两人同时使用。转角处是打印机、NAS 等办公设备区,顶天立地书柜+吊柜,满足储物需求。
为了保证整洁,让厂商制作了 U 型活动板,把插线板的电线全部藏到桌洞里,只穿出线头。
最贴心的是,他还把书桌底下的插座反装,不用绕一圈就能插上插头,强迫症看了大呼过瘾!
在书桌对面的墙上装了一面白板玻璃,能够更清晰地进行组织想法、积蓄灵感。
- 客厅:
1. 外盖型微边框风口比无框风口好安装;
2. 电视柜用7孔+4孔&横向+竖向插座组合;
3. 电视线材通过预埋50管引到电视后;
- 厨房
4. 嵌入式厨电需要考虑门板和踢脚线高度;
5. 采用台下盆,水龙头两侧开孔放洗洁精;
6. 台面与墙面直接连接,接缝处用硅胶密封;
7. 不做挡水条;
8. 采用嵌入式壁龛,悬空马桶和洗漱台;
9. 淋浴系统+马桶水箱都入墙;
10. 喷枪软管定制 80cm PVC管更美观;
11. 用隐形地漏,抬高的拉槽使用马贝填缝;
12. 书桌桌面定制 U 型活动板,隐藏电线;
13. 书桌底下插座反装,桌面插板不用绕圈。
获取方法
Go to "Discover" > "Top Stories" > "Wow"